Продаж квартир: Кошова вулиця, 101, Софіївська Борщагівка
200 оголошень по 97 квартирах
3.2 млн грн
75 811 грн/м²
вулиця Академіка Шалімова, 65-А
Скопіювати посилання
Поскаржитися
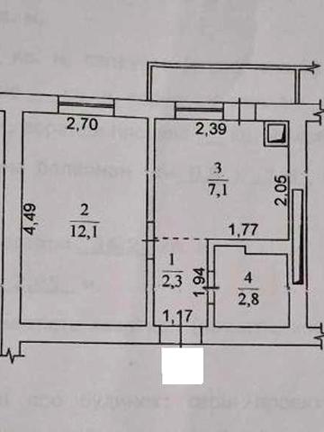
Пропонується до продажу євродвушка в ЖК «Софіївський квартал», за адресою: сел. Софіївська Борщагівка, вул. Шалімова, 65а. Будинок цегляний, утеплений, 2016 року забудови.
Квартира розташована на 4-му поверсі. Має загальну площу – 42 м².
Переваги:
* Чудове планування квартири: кухня-студія з виходом на засклену лоджію та зоною відпочинку з диваном, телевізором та спальня.
* Індивідуальне опалення (двоконтурний газовий котел).
* Тепла підлога в коридорі та у ванній кімнаті (електрична).
* Газова варильна поверхня.
Дуже затишна та охайна. Повний комплект меблів та техніки.
Умови продажу: 72000 $ + комісія АН.
Документам більше 3-х років, оформлення мінімальне.
Можливий продаж по державним програмам.
Інфраструктура:
• Закрита територія, контроль доступу, відеоспостереження
• Паркінг під охороною та зарядки для електрокарів
• Зелена зона відпочинку з фонтаном
• Затишна територія з алеями, газонами, лавочками, вечірнім освітленням
• Великий стадіон, дитячі та спортивні майданчики
• Поряд із ЖК простора паркова зона для прогулянок і відпочинку
В пішій доступності:
• Дитячий садочок
• Центр танцю «Грація»
• Дитяча клініка «Mail»
• Приватна клініка «Adonis»
• Пошта, салони краси
• Два торгові центри, кінотеатри
• Спортзал з басейном
• Супермаркети Сільпо, АТБ, Novus та багато інших магазинів
Транспорт:
Зупинка маршрутних таксі поруч із ЖК.
Прямі маршрути на Академмістечко та інші райони Києва
Це відмінний варіант як для власного проживання, так і для здачі в оренду!
1 кімната
з ремонтом
42 / 14 / 15 м²
монолітно-каркасна
поверх 4 з 13
2016 Рік будівництва
4.3 млн грн
78 995 грн/м²
вулиця Академіка Шалімова, 59
Скопіювати посилання
Поскаржитися
Продаж сучасної 2-кімнатної квартири з дизайнерським ремонтом у ЖК «Софіївський Квартал»
Пропонується стильна 2-кімнатна квартира з якісним дизайнерським ремонтом у популярному житловому комплексі ЖК «Софіївський Квартал».
📍 Адреса: Софіївська Борщагівка, вул. Академіка Шалімова, 59
🏢 Поверх: 2 / 12
Квартира повністю укомплектована меблями та преміальною технікою — можна заїжджати та жити одразу після покупки.
Основні переваги
• дизайнерський ремонт
• автономне живлення EcoFlow DELTA 2 Max
• броньовані вхідні двері із системою замків Multilock
• індивідуальне газове опалення
• квартира повністю мебльована
• преміальна побутова техніка
• 3 QLED телевізори Samsung
• швидкісний інтернет — ідеально для віддаленої роботи
Автономність під час відключень
У квартирі встановлена потужна зарядна станція EcoFlow DELTA 2 Max (2048 Вт·год) з автоматичним перемиканням.
Забезпечує до 10 годин автономної роботи газового котла, холодильника, освітлення та інтернету.
Є можливість розширення ємності до 6144 Вт·год.
Планування
Зручне та функціональне:
• дві окремі спальні
• простора кухня-студія
• суміжний санвузол
Техніка та комфорт
• інверторний кондиціонер Cooper&Hunter (керування через Wi-Fi)
• прально-сушильна машина LG з прямим приводом
• 3 QLED телевізори Samsung (55", 50", 43")
• гігабітний Wi-Fi роутер до 2976 Мбіт/с
Будинок та територія
• закрита територія
• відеоспостереження
• 2 ліфти
• облаштоване укриття у будинку
Інфраструктура
У пішій доступності: Novus, Сільпо, Фора, АТБ, дитячі садки, ТРЦ, відділення пошти.
Зручна транспортна розв’язка:
🚇 до метро Академмістечко — близько 15 хв.
Умови продажу
• право власності більше 3 років (мінімальні податки)
• квартира продається з меблями та технікою
💰 Ціна: 97 000 $
Можливий продаж через єВідновлення.
📞 Запрошую на перегляд — квартира варта вашої уваги.
2 кімнати
з ремонтом
54.3 / 29.9 / 11.7 м²
монолітно-каркасна
поверх 2 з 12
2017 Рік будівництва
Задайте ціну для пошуку
Переглядайте лише ті об'єкти, що вам цікаві.
грн
грн
3.8 млн грн
89 478 грн/м²
вулиця Свободи, Будинок 5
Скопіювати посилання
Поскаржитися
Продається нова 1-кімнатна квартира з ремонтом, меблями та побутовою технікою в Жк Софіївські Липки
Ключові характеристики:
Площа: 43м2
Поверх: 3 відкривається неймовірний панорамний краєвид
Стан квартири:
Сучасний дизайнерський ремонт завершено щойно — ви перший власник!
Заходь і живи: не потрібно нічого купувати чи доробляти
Меблі та техніка (все необхідне для комфортного життя):
Повністю облаштована кухня з вмонтованою технікою Gorenje та Samsung
Холодильник, духова шафа, варильна поверхня, витяжка, пральна сушарна машина, мікрохвильова піч
Ліжко з ортопедичним матрацом, розкладний диван, шафа-купе, обідній стіл і стільці
Облаштована ванна кімната з сучасною сантехнікою та дзеркалом з підсвіткою
Телефонуйте для перегляду!
1 кімната
з ремонтом
43 / 20 / 20 м²
поверх 3 з 10
2023 Рік будівництва
генератор
4.4 млн грн
80 411 грн/м²
вулиця Академіка Шалімова, 59
Скопіювати посилання
Поскаржитися
Продаж сучасної 2-кімнатної квартири з дизайнерським ремонтом у ЖК "Софіївський Квартал"
Пропонується до продажу стильна та повністю укомплектована 2-кімнатна квартира в одному з найпопулярніших житлових комплексів передмістя Києва — ЖК "Софіївський Квартал".
📍 Локація: Софіївська Борщагівка, вул. Академіка Шалімова, 59
🏢 Поверх: 3 з 12
🔹 Основні переваги
* сучасний дизайнерський ремонт із якісних матеріалів
* повна комплектація меблями та технікою — “заходь і живи”
* автономна система живлення EcoFlow DELTA 2 Max
* індивідуальне газове опалення
* броньовані вхідні двері з замками Multilock
* двотарифний електролічильник (день/ніч)
* швидкісний інтернет — ідеально для віддаленої роботи
⚡ Автономність та енергонезалежність
* потужна зарядна станція (2048 Вт·год) з автоматичним перемиканням до 10 годин автономної роботи (котел, холодильник, світло, інтернет)
* можливість розширення ємності до 6144 Вт·год
🏡 Планування
* дві окремі спальні
* простора кухня-студія
* суміжний санвузол
🛠 Техніка та комфорт
* інверторний кондиціонер Cooper & Hunter з Wi-Fi керуванням
* прально-сушильна машина LG (прямий привід)
* 3 телевізори Samsung QLED (55", 50", 43")
* Холодильник
* гігабітний Wi-Fi-роутер
🏢 Будинок і територія
закрита територія з контролем доступу
відеоспостереження
2 ліфти
обладнане укриття
генератор для підтримки водопостачання
освітлення місць загального користування навіть під час відключень
📍 Інфраструктура
У пішій доступності:
супермаркети (Novus, Сільпо, Фора, АТБ)
дитячі садки та школи
ТРЦ, аптеки, пошта
🚇 До метро Академмістечко — 15–20 хвилин
🚋 До швидкісного трамвая — близько 5 км
📑 Умови продажу
право власності більше 3 років (мінімальне оподаткування)
квартира продається з усіма меблями та технікою
💼 Ідеальний варіант як для власного проживання, так і для інвестиції під оренду.
2 кімнати
з ремонтом
55 / 35 / 11.7 м²
поверх 3 з 12
2017 Рік будівництва
4.9 млн грн
55 288 грн/м²
Райдужна вулиця, 137
Скопіювати посилання
Поскаржитися
Без комісії для покупця! 0%
В ЖК "Львівський Маєток" пропонується в продажу 3-на квартира -двуповерхова !
1-й поверх : кухня- вітальня, хол, санвузол(душова кабіна).
2-й поверх: дві окремі спальні кімнати, гардеробна кімната та санвузол.
Виконаний якісний ремонт, повністю укомплектована меблями по-індивідуальному замовленню та побутовою технікою.
Все залишається покупцеві!
Індивідуальне газове опалення (двухконтурний котел).
Будинок побудований з червоної цегли, утеплений зовні.
Квартира світла та простора!
Охайний під2їзд.
Прибудинкова територія під відеонаглядом 24/7, ландшафтні дизайни.
В самому ЖК розвинена інфраструктура: супермаркети : АТБ, Новус, Сільпо, ТЦ Софія Мол, ТЦ Маєток, кафе, ресторани, дитячий садочок Левенятко, медична клініка Адоніс.
Зручна транспортна розв"язка: маршрутні таксі з інтервалом у 2хвилини №742, №796 до ст.метро Академмістечко-20 хв.їзди, №374 до ст.метро ВДНХ.
ID: 72184
3 кімнати
з ремонтом
88 / 50 / 16 м²
монолітно-каркасна
поверх 4 з 5
2015 Рік будівництва
2.1 млн грн
50 511 грн/м²
Райдужна вулиця, 137
Скопіювати посилання
Поскаржитися
ВСТИГНІТЬ ПРИДБАТИ КВАРТИРУ по актуальній ціні 1150 $/м²!!!
ЧЕРГОВЕ ПІДНЯТТЯ ВАРТОСТІ з 21 березня 2026 року
Завершення будівництва планується в червні-липні 2026 року
Більшість квартир вже продано!!!
Без комісії !!! ПРОДАЖ КВАРТИР У НОВОМУ ЖК «ЛЬВІВСЬКІ ЗОРІ»
Софіївська борщагівка вул. Райдужна
1150 $/м² — на даному етапі будівництва
1300 $/м² — після введення в експлуатацію
В будинку активно ведуться внутрішні та зовнішні оздоблювальні роботи
Більша половина квартир вже продана і покупці на власні очі перевірили якість будівництва та відповідність заявленим термінам роботи.
1-кімнатні та 2-кімнатні квартири
Площі квартир однокімнатні від 42,28 м² до 45.5м² , 66,97м² , квартири доступні на 1, 3, 4, 5 поверхах.
Раціональні планування
Сучасний будинок у сформованому районі
Комплектація
У вартість квартири входить:
газовий котел
чистова машинна штукатурка стін
стяжка підлоги
заведені вода та каналізація
електрика
інтернет
виводи під радіатори
Цегляний будинок (червона цегла)
Ліфт
Бомбосховище
Паркінг
Комерційні приміщення на 1 поверсі
Поруч усе для комфортного життя:
дитячий садочок «Левенятко»
NOVUS
Нова Пошта
зупинки маршруток на Київ
Europark
лісова зона для прогулянок
Вигідна ціна, якісний цегляний будинок та близькість до Києва
Кількість квартир обмежена
Телефонуйте, щоб забронювати кращий варіант
Бучанський район
Києво-святошинський район
Софіївська борщагівка
Львівський маєток
Софіївська сфера
Софія клубний
Уквартал
Європейські липки
1 кімната
без ремонту
42.28 / 20.38 / 12.1 м²
монолітно-каркасна
поверх 3 з 5
2025 Рік будівництва
3.1 млн грн
49 936 грн/м²
вулиця Академіка Шалімова, 63-А
Скопіювати посилання
Поскаржитися
Вашій увазі пропонується затишна і тепла 2-кімнатна квартира в Софіївській Борщагівці
Адреса: вул. Академіка Шалімова, 63а
Загальна площа: 61,9 м²
Поверх: 10 / 12
Рік будівництва: 2016
Планування та характеристики
2 окремі кімнати, житлова площа — 35 м²
Кухня: 9,7 м²
Ванна кімната: 4,0 м²
Коридор: 7,8 м²
Інфраструктура ЖК
ЖК повністю забезпечений усім необхідним для комфортного життя:
- дитячі садочки, державні та приватні
- школи та підготовчі класи
- гуртки та секції для дітей
- аптеки, салони, кафе, кав’ярні
- супермаркети: NOVUS, АТБ, Фора, Сільпо, Треба та інші
- магазини одягу, товарів для дому, ремонту
- медичні заклади, стоматології
На території:
- 4 сучасні дитячі майданчики
- футбольне поле
- секції футболу для дітей і команда для дорослих
ЖК дуже комфортний для сімей, має розвинену інфраструктуру та затишну атмосферу.
Запрошуємо Вас на перегляд !
Комісію 5% агенціі сплачує покупець!
ID : 10340
2 кімнати
з ремонтом
62 / 35 / 10 м²
цегляна
поверх 10 з 12
2016 Рік будівництва
3.4 млн грн
50 865 грн/м²
Райдужна вулиця, 137
Скопіювати посилання
Поскаржитися
ВСТИГНІТЬ ПРИДБАТИ КВАРТИРУ по актуальній ціні 1150 $/м²!!!
ЧЕРГОВЕ ПІДНЯТТЯ ВАРТОСТІ з 21 березня 2026 року
Завершення будівництва планується на червень-липень 2026 року
Більшість квартир вже продано!!!
БЕЗ КОМІСІЇ !!! Продаж квартир у ЖК «Львівські Зорі»
Софіївська Борщагівка, вул. Райдужна
1150 $/м² — на даному етапі будівництва
1300 $/м² - на момент здачі в експлуатацію.
В будинку активно ведуться внутрішні та зовнішні оздоблювальні роботи
Більша половина квартир вже продана і покупці на власні очі перевірили якість будівництва та відповідність заявленим термінам роботи.
Пропонуємо квартири в сучасному житловому комплексі «Львівські Зорі» — малоповерховому будинку з червоної цегли, розташованому поруч із ЖК «Львівський Маєток», у повністю обжитому районі з розвиненою інфраструктурою.
• Будинок з червоної цегли
• 5 поверхів + цоколь
• 35 квартир
• Ліфт
• Власне бомбосховище у будинку
• Комерційні приміщення на першому поверсі
• Облаштована прибудинкова територія
• Дитячий майданчик
• 20 паркомісць
• Площі квартир двокімнатні 55.43 м² (житлова 31.71м² , кухня 10.99м²) та 66,97м² ( житлова 37.28 м² , кухня 16.03 м²) . Однокімнатні від 42,28 м² до 45.5м² , доступні на 1, 3, 4, 5 поверхах
• Раціональні планування
• Великі вікна та балкони
• Стан — під чистове оздоблення
Технічні характеристики:
• Стіни — гіпсова штукатурка
• Стяжка підлоги готова до чистових робіт
• Розведена електрика по всій квартирі
• Індивідуальне опалення: котел + розводка (радіатори не встановлені)
• Вікна та вхідні двері встановлені
• Розведені водопостачання та водовідведення
• Прямі договори на світло
• Газ, центральні комунікації
Переваги локації
• Поруч ЖК «Львівський Маєток»
• Усе необхідне — у пішій доступності:
• NOVUS
• «Нова Пошта»
• Europapark
• ТЦ «Маєток»
• ТРЦ Sofia Mall
• Клініка «Адоніс»
• Дитячий садок «Левенятко»
• Зупинка громадського транспорту — 2 хвилини пішки
• Поруч мальовничий ліс
Кому підійдуть квартири
• Для комфортного життя
• Для сімей з дітьми
• Для інвестиції та оренди
Телефонуйте — надам планування, актуальні ціни та організую перегляд.
Бучанський район
Києво-святошинський район
Софіївська борщагівка
Львівський маєток
Софіївська сфера
Софія клубний
Уквартал
Європейські липки
2 кімнати
без ремонту
66.97 / 37.28 / 16.03 м²
монолітно-каркасна
поверх 4 з 5
2025 Рік будівництва
можливий продаж по єОселя
3.7 млн грн
56 836 грн/м²
Кошова вулиця, 110
Скопіювати посилання
Поскаржитися
Продається квартира в ЖК Львівський маєток з сучасним ремонтом. Окрема спальна, кухня, гостьова кімната, просторий санвузол . Будинок обжитий , дружні сусіди. Усі коммунікації узаконені. Газовий котел на власне опалення та гарячу воду. Не великі комунальні. Є кладовка в тому ж під"їзді за окрему плату. Дитячий майданчик. Доглянутий двір. В п’яти хвилинах ходьби транспортна зупинка, магазини Новус, АТБ, Фора, Ресторани, Спорт зали, дитячий садок біля дому,10 хвилин пішки до кінотеатру в ТРЦ ЕВРОпарк. В п’яти хвилинах ходьби транспортна зупинка. До м. Академмістечко та м.Іподром на транспорті 15-20 хв.
2 кімнати
з ремонтом
65 / 38.6 / 15 м²
монолітно-каркасна
поверх 3 з 5
2015 Рік будівництва
можливий продаж по єОселя
1 млн грн
36 313 грн/м²
Пшенична вулиця, 51
Скопіювати посилання
Поскаржитися
Продається 1-кімнатна квартира | Софіївська Борщагівка | ЖК Oazis
вул. Пшенична 51 • 2 поверх • 28 м²
Продається світла 1-кімнатна квартира в сучасному ЖК Oazis.
Стан — після будівельників, можна робити ремонт під себе.
Переваги:
• Площа 28 м²
• Правильне планування, велике вікно
• Теплий будинок з газоблоку
• Новий сучасний комплекс
• Охайна територія, парковка
Локація:
• Софіївська Борщагівка — затишний район біля Києва
• Поруч магазини, зупинки, інфраструктура
• До метро Академмістечко/Житомирська — 15–20 хв на транспорті
1 кімната
без ремонту
28 / 10 / 10 м²
поверх 2 з 4
2019 Рік будівництва
можливий продаж по єОселя
1.5 млн грн
72 228 грн/м²
вулиця Академіка Шалімова, 65-А
Скопіювати посилання
Поскаржитися
Без комісії для покупця!
Продається смарт-квартира в ЖК «Софіївський квартал», Софіївська Борщагівка. Квартира розташована на 10-му поверсі 12-поверхового будинку, площею 20,2 м². Зроблений якісний ремонт, встановлений кондиціонер та газовий котел — що забезпечує комфорт і економію на опаленні.
• Планування: простора кімната з кухонною зоною, окрема ванна кімната.
• Стан: повністю готова для проживання чи здачі в оренду.
• Технічні переваги: автономне опалення (котел), сучасні комунікації.
Інфраструктура ЖК:
Територія комплексу закрита та під охороною, є дитячі майданчики, місця для відпочинку та паркування.
У пішій доступності:
• супермаркети Novus, АТБ
• аптеки, медичні центри
• відділення банків та пошти
• дитячі садки, школи, магазини
Транспорт
Зручне сполучення з Києвом — маршрутки ходять кожні 5 хвилин.
До м. Академмістечко та м. Теремки — близько 25 хвилин на транспорті.
Ідеальний варіант як для власного проживання, так і для інвестиції під оренду.
• відеотур квартири за запитом;
Це квартира, яка дозволить одразу заїхати та жити без додаткових витрат і клопотів. Або здавати одразу в оренду, щоб вона почала приносити дохід.
За деталями — телефонуйте.
З повагою, Антон Воронін, експерт з нерухомості.
1 кімната
з ремонтом
20.2 / 10 / 10 м²
монолітно-каркасна
поверх 10 з 12
2016 Рік будівництва
818 тис. грн
38 613 грн/м²
Пшенична вулиця, 51
Скопіювати посилання
Поскаржитися
Смарт --квартира в клубному будинку ЖК Оазис , без ремонту від забудовника .Електроопалення , центральна каналізація ,скважина .
1 кімната
без ремонту
21.2 / 15 / 5 м²
поверх 4 з 4
2019 Рік будівництва
5 млн грн
66 036 грн/м²
вулиця Академіка Шалімова, 69
Скопіювати посилання
Поскаржитися
Продаж 2-кімнатної квартири | ЖК «Софіївський квартал»
Локація: м. Софіївська Борщагівка, вул. Шалімова, 69
Поверх: 8
Загальна площа: 75 м²
Тип угоди: можливий продаж за сертифікатом
Планування:
дві житлові кімнати
кухня-студія
окрема гардеробна кімната
Опис квартири:
Квартира з якісним сучасним ремонтом у світлій нейтральній палітрі. Інтер’єр виконаний у преміальному стилі з використанням сучасних матеріалів.
Технічне оснащення та комплектація:
індивідуальне газове опалення
система теплої підлоги
вбудована кухонна зона
духова шафа, мікрохвильова піч
зона відпочинку з великим диваном
обідня зона
кондиціонер
камін
сучасна побутова техніка та сантехніка
Усі меблі та техніка, що представлені на фото, залишаються новому власнику.
Про житловий комплекс:
ЖК «Софіївський квартал» — закритий житловий комплекс із пішохідними зонами, дитячими майданчиками та розвиненою комерційною інфраструктурою.
Ціна: 112 000 $
2 кімнати
з ремонтом
75 / 30 / 25 м²
монолітно-каркасна
поверх 8 з 10
2014 Рік будівництва
можливий продаж по єОселя
3.1 млн грн
82 489 грн/м²
Гетьманська вулиця, 8
Скопіювати посилання
Поскаржитися
Продаж затишної та теплої однокімнатної квартири у ЖК «Львівський Маєток», Софіївська Борщагівка.
Квартира розташована на комфортному 3 поверсі малоповерхового будинку, що особливо зручно для щоденного життя — без залежності від ліфта та зайвого шуму.
Квартира укомплектована меблями та технікою, продумана для комфортного проживання без додаткових вкладень. Світла кімната, функціональна кухня, приємна атмосфера тепла й домашнього затишку. Завдяки індивідуальному газовому опаленню ви самостійно регулюєте температуру та витрати, що забезпечує економію та комфорт у будь-яку пору року.
ЖК «Львівський Маєток» — сучасний малоповерховий комплекс із доглянутими дворами, дитячими та спортивними майданчиками, магазинами, кав’ярнями, достатньою кількістю паркомісць та всією необхідною інфраструктурою поруч. У пішій доступності супермаркети, аптеки, зупинки транспорту, зручний виїзд до Києва. Комплекс заселений та обжитий, що створює атмосферу справжнього району для життя.
Квартира чудово підійде як для власного проживання, так і для вигідної інвестиції під оренду.
Маю інші варіанти квартир в Софіївській Борщагівці. Телефонуйте за додатковою інформацією.
1 кімната
з ремонтом
37 / 16 / 12 м²
монолітно-каркасна
поверх 3 з 5
2014 Рік будівництва
можливий продаж по єОселя
4.2 млн грн
63 072 грн/м²
проспект Героїв Небесної Сотні, 32/2
Скопіювати посилання
Поскаржитися
Стильна 2-кімнатна квартира в
Стильна 2-кімнатна квартира в ЖК «Львівський Маєток» с газовим опаленням
Пропонується простора та світла 2-кімнатна квартира в сучасному житловому комплексі ЖК Львівський Маєток.
Функціональне планування:
• 2 окремі кімнати
• Простора кухня-вітальня —
• Гардеробна
Квартира виконана с душею та увагою до деталей:
✔ Індивідуальне газове опалення
✔ Якісний ремонт у світлих тонах — робився для себе
✔ Тепла підлога (можна підключити через еко флоу)
✔ Меблі та техніка залишаються — готова до переїзду без додаткових витрат
✔ Все функціонує та працює, жодних «чистових» робіт
ЖК «Львівський Маєток» — затишний комплекс із продуманою інфраструктурою, комфортними зеленими зонами та безпекою.
Переваги комплексу:
Будинки з цегли та моноліту, що говорить про міцність та зберігання тепла
• сучасні під’їзди та контроль доступу
• дитячі та спортивні майданчики
• зручне транспортне сполучення
• поруч школа, дитячий садок, супермаркети та сервіси для щоденних потреб
Ця квартира — чудовий варіант для життя або інвестиції: готова, світла та максимально комфортна.
2 кімнати
з ремонтом
66.6 / 22.9 / 29.1 м²
монолітно-каркасна
поверх 1 з 10
2019 Рік будівництва
3.3 млн грн
42 815 грн/м²
Тарасівська вулиця, 1
Скопіювати посилання
Поскаржитися
Без комісії! 0% Продаж 2 кімнатної квартири 78м2 в ЖК «Київський маєток»! Зданий будинок
Оселя має дуже зручне планування: дві окремі просторі кімнати, великий коридор, санвузол роздільний, великий балком. В будинку вже роблять ремонти
На території комплексу розвинута інфраструктура - аптеки, магазини, кавʼярні та інше. У пішій доступності ТЦ «СофіяМол» та «Європаок»!
Поруч з будинком хороша транспортна розвʼязка. Поруч зупинка громадського транспорту: 20 хвилини до метро Академмістечко та Житомирська та 30 хвилин до метро Теремки.
За додатковою інформацією телефонуйте! СПП колегам
ID: 93856
2 кімнати
без ремонту
78 / 36 / 18 м²
цегляна
поверх 3 з 6
2017 Рік будівництва
2.3 млн грн
59 534 грн/м²
Соборна вулиця, 126/1
Скопіювати посилання
Поскаржитися
Продаж 1-кімнатної квартири в ЖК «Софіївська Сфера»!
Документам більше 3 років! Мінімальне оформлення!
Загальна площа — 39 м²
Поверх — 5
Квартира з ремонтом, повністю готова до проживання. Функціональне планування. Підходить як для власного проживання, так і для інвестиції
Житловий комплекс із розвиненою інфраструктурою: поруч магазини, аптеки, заклади харчування, зручне транспортне сполучення.
Зупинка громадського транспорту прямо біля будинку: 25 хвилин до метро Академмістечко, 30 хвилин до метро Теремки
Телефонуйте для отримання додаткової інформації та запису на перегляд.
ID: 93867
1 кімната
з ремонтом
39 / 15 / 12 м²
цегляна
поверх 5 з 10
2017 Рік будівництва
4.2 млн грн
65 549 грн/м²
проспект Героїв Небесної Сотні, 34/1
Скопіювати посилання
Поскаржитися
Продаж квартири без комісії для покупця!
Світло є завжди!!! (квартири з автономним живленням)
ЖК Львівський Маєток; Софіївська Борщагівка.
Квартира розташована на першому поверсі з десяти.
Загальна площа квартири - 64.10 кв.м.
Дві окремі кімнати: 17.10 кв.м. та 16.50 кв.м.
Площа кухні 16.90 кв.м.
Два санвузли.
Якісний та сучасний цегляний будинок. Дуже теплий.
Квартира облаштована індивідуальним опаленням. В квартирі виконано якісний ремонт. Тепла підлога кухня, коридор, санвузли. Квартира облаштована всім необхідним для проживання.
Житловий комплекс Львівський Маєток вже заселений та обладає розвитою інфраструктурою.
Зручна транспортна розвязка та сполучення громадського транспорту.
Перегляди квартири за домовленістю.)
2 кімнати
з ремонтом
64.1 / 33.6 / 16.9 м²
монолітно-каркасна
поверх 1 з 10
2019 Рік будівництва
можливий продаж по єОселя
1.6 млн грн
73 378 грн/м²
Пшенична вулиця, 51
Скопіювати посилання
Поскаржитися
Продаж смарт-квартири 22 м² з новим ремонтом | ЖК «Оазис» | вул. Пшенична 51
Будинок введений в експлуатацію. Можливий продаж по програмі «єОселя» ВПО.
Квартира ідеально підійде як для власного проживання, так і як готова інвестиція під орендний бізнес.
Характеристики
• загальна площа — 22 м²
• 1 поверх
• новий якісний ремонт
• у квартирі ще ніхто не проживав
Квартира укомплектована технікою
• холодильник
• телевізор
• бойлер
• мікрохвильова піч
• пральна машина
• кондиціонер
Можна одразу заїжджати та жити без додаткових витрат.
Переваги комплексу
• закрита територія
• в’їзд через шлагбаум
• відеоспостереження
• паркування біля будинку
Локація
Поруч з будинком:
• супермаркети Фора та NOVUS
• зупинка громадського транспорту
• до метро Академмістечко та Житомирська — близько 15 хвилин
Телефонуйте, щоб домовитися про перегляд.
1 кімната
з ремонтом
22 / 10 / 5 м²
поверх 1 з 4
2019 Рік будівництва
2.3 млн грн
49 892 грн/м²
вулиця Академіка Шалімова, 59
Скопіювати посилання
Поскаржитися
Опис
❗️Продаж❗️
Однокімнатна квартира.
🏡 ЖК «Софіївський Квартал» | Софіївська Борщагівка | Центр села
✨ 47,2 м² | 3 поверх
🍽 Кухня 17,1 м²
🛏 Окрема кімната 12.9
Ціна: 53000$
🔥 Індивідуальне газове опалення
Квартира майже з завершеним ремонтом.
Формат «заїжджай і живи» — з мінімальними вкладеннями.
✔️ Сучасний житловий комплекс
✔️ Доглянута територія, ліфти, чисті під’їзди
✔️ Спокійні та адекватні сусіди
✔️ Поруч підземний паркінг — бомбосховище
Інфраструктура: у пішій доступності: Фора, спортзал, Нова Пошта, школи, садочки, кафе, транспорт.
🏦 Розглядаємо продаж по державних програмах
💸 Комісія для покупця — 3%
1 кімната
з ремонтом
47 / 12.9 / 17 м²
монолітно-каркасна
поверх 3 з 12
2014 Рік будівництва
3.4 млн грн
50 865 грн/м²
Райдужна вулиця, 137
Скопіювати посилання
Поскаржитися
Продаж квартир у ЖК «Львівські Зорі»
📍 Софіївська Борщагівка, вул. Райдужна
У будинку розпочато внутрішні та зовнішні оздоблювальні роботи.
Пропонуємо квартири в сучасному малоповерховому житловому комплексі «Львівські Зорі», розташованому в повністю обжитому районі поруч із ЖК «Львівський Маєток». Розвинена інфраструктура, зручна транспортна доступність та комфортне середовище для життя.
⸻
Про будинок
• Будинок з червоної цегли
• 5 поверхів + цоколь
• 35 квартир
• Ліфт
• Власне бомбосховище
• Комерційні приміщення на 1 поверсі
• Облаштована прибудинкова територія
• Дитячий майданчик
• 20 паркомісць
⸻
Планування та площі
Однокімнатні квартири:
• від 42,28 м² до 45,5 м²
• доступні на 1, 3, 4, 5 поверхах
Двокімнатні квартири:
• 66,97 м² (житлова 37,28 м², кухня 16,03 м²)
Раціональні планування, великі вікна та балкони.
Стан — під чистове оздоблення.
⸻
Технічні характеристики
• Стіни — гіпсова штукатурка
• Стяжка підлоги готова до чистових робіт
• Розведена електрика по квартирі
• Індивідуальне опалення (котел + розводка, без радіаторів)
• Встановлені вікна та вхідні двері
• Розведені водопостачання та водовідведення
• Прямі договори на електроенергію
• Газ, центральні комунікації
⸻
Локація та інфраструктура
• Поруч ЖК «Львівський Маєток»
• NOVUS
• «Нова Пошта»
• Europapark
• ТЦ «Маєток»
• ТРЦ Sofia Mall
• Клініка «Адоніс»
• Дитячий садок «Левенятко»
• Зупинка транспорту — 2 хвилини пішки
• Поруч лісова зона для прогулянок
2 кімнати
з ремонтом
66.97 / 40 / 14.36 м²
монолітно-каркасна
поверх 3 з 5
2026 Рік будівництва
2.7 млн грн
60 286 грн/м²
вулиця Академіка Шалімова, 70/2
Скопіювати посилання
Поскаржитися
Елегантна кваритра з дизайнерським ремонтом в ЖК «Софіївський квартал»!
До продажу пропонується простора та світла 1-кімнатна квартира площею 45,5 м² у Софіївській Борщагівці за адресою: вулиця Академіка Шалімова, 70/2. Розташована на 11 поверсі 11-поверхового будинку, зведеного з високоякісної керамічної цегли.
Стан квартири ідеальний, виконано сучасний дизайнерський ремонт із використанням преміальних матеріалів. Великою перевагою є те, що квартира газифікована та продається в повній комплектації — абсолютно всі меблі та побутова техніка залишаються новим власникам, що дозволяє заїхати та насолоджуватися комфортом одразу після покупки. Продумане планування та увага до деталей інтер’єру формують гармонійний, стильний і водночас затишний простір.
Будинок розташований у тихому та доглянутому дворі житлового комплексу «Софіївський квартал» з дитячим майданчиком та занами відпочинку, що робить його ідеальним місцем для спокійного життя. Прямо біля будинку знаходиться ліс, що забезпечує чисте повітря та чудові можливості для прогулянок і активного відпочинку.
Інфраструктура району добре розвинена: у пішій доступності знаходяться ТЦ «Маєток» та ТРЦ «Sofia Mall», супермаркети «Novus», «АТБ», «Фора», «Еко-маркет», медичні центри «Адоніс» і «Амеда». Для активного дозвілля поруч є спортзали, студії танців, кафе, ресторани та облаштований парк. Безпосередньо у будинку — пункт видачі «Rozetka».
Зручна транспортна розв’язка дозволяє швидко дістатися маршрутними таксі до станцій метро «Академмістечко» та «Теремки», а також у напрямку Боярки й Білогородки. Відстань до межі Києва — лише 2 км.
Квартира стане ідеальним вибором для тих, хто цінує якість ремонту, комфорт та сучасний стиль життя!
Можливий обмін на вашу нерухомість. Усі подробиці про квартиру та про її придбання за телефоном.
Телефонуйте у будь-який час! Ми завжди раді вам допомогти!
Надаємо повний спектр послуг з купівлі та продажу квартир та будинків.
Великий досвід допомоги по купівлі квартир за державними програмами:
1) Є-оселя
2) Житло для ВПО та військових (постанова 280)
3) Сертифікат на зруйноване житло
З нами безпечно, якісно, вигідно!
1 кімната
з ремонтом
45.5 / 17 / 15 м²
цегляна
поверх 11 з 12
2020 Рік будівництва
2.9 млн грн
66 832 грн/м²
вулиця Академіка Шалімова, 70/2
Скопіювати посилання
Поскаржитися
Продаж просторої однокімнатної квартири, що розташована у с. Софіївська Борщагівка, вул. Академіка Шалімова 70, Київська область. Ближнє передмістя до Києва 3 км.
Загальна площа квартири 44 кв. м.
Квартира має комфортне планування, простора кухня-студія 15 кв.м., та окрема спальна кімната.
Документам права власності більше 3х років.
Квартира повністю обладнана меблями та технікою для комфортного проживання, а саме:
- кухонні меблі;
- варильна поверхня Hansa;
- духова шафа Hansa;
- холодильник;
- обідній стіл та крісла;
- диван;
- телевізор;
- дзеркальна шафа-купе;
- двоспальне ліжко;
- комод;
- пральна машина.
Чудова локація, поруч супермаркет АТБ, Еко маркет, кафе, продуктові магазини, салони краси, приватна клініка Adonis, зупинки громадського транспорту, дитячі навчальні заклади, у будинку знаходиться магазин Rozetka і це все у пішій доступності. Неподалік знаходить велика паркова зона із обладнаними альтанками з мангалами, де можна чудово відпочити всією сім’єю.
Закрита територія яка охороняється та під відеоспостереженням. У дворі є дитячий майданчик та місця для відпочинку.
Плюсом є паркомісце виділене під квартиру. У під’їзді знаходиться поштомат. Дружні сусіди, якщо потрібно можна залишати у загальному коридорі коляски, велосипеди.
Будується ще одна державна школа, 800 м. від будинку.
Громадський транспорт курсує кожні 5-10 хвилин, до метро Академмістечко 30 хвилин.
Телефонуйте домовимось про перегляд. Продаж без комісії!
1 кімната
з ремонтом
44 / 17.4 / 15 м²
цегляна
поверх 12 з 12
2020 Рік будівництва
можливий продаж по єОселя
4.6 млн грн
43 744 грн/м²
Райдужна вулиця, 100
Скопіювати посилання
Поскаржитися
Продаю дворівневу квартиру з дизайнерським ремонтом в ЖК Львівський маєток по вулиці Райдужна, на 4 поверсі із 5 поверхового будинку. Загальна площа 106,2 кв.м, 4 кімнати, житлова площа 67,3 кв.м, кухня 15 кв.м, вітальня 20,6 кв.м, два с/у, три окремі кімнати.
В квартирі індивідуальне газове опалення, вбудована кухня, плита газова, сучасні меблі та вся необхідна техніка, теплі поли.
4 кімнати
з ремонтом
106.2 / 67.3 / 15 м²
монолітно-каркасна
поверх 4 з 5
2016 Рік будівництва