Апарт-комплекс Sento by Ribas
Апарт-комплекс Sento by Ribas
1-кімнатні квартири
1 кімната
26.19 м²
В проєкті
1 кімната
27.75 м²
В проєкті
1 кімната
34.03 м²
В проєкті
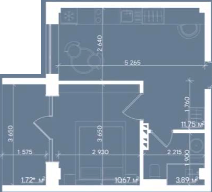
1 кімната
35.07 м²
В проєкті
2-кімнатні квартири
2 кімнати
57.52 м²
В проєкті
Найважливіші оновлення Апарт-комплекс Sento by Ribas
Акції, знижки та спецпропозиції
Нові фотографії з будівництва, аерообльоти
Оновлення цін від відділу продажу
Оновлення документів в реєстрах