1-кімнатні квартири від 1.39 млн грн
38 850 — 42 200 грн за м²
1 кімната
35.7-35.75 м²
Поверхи: 1-4
Секція 1
3 кв. 2027
Будується
38 850 — 42 200 грн за м²
1 кімната
36.52-36.56 м²
Поверхи: 5-7
Секція 1
3 кв. 2027
Будується
38 850 — 42 200 грн за м²
1 кімната
37-38.94 м²
Поверхи: 1-4
Секція 1
3 кв. 2027
Будується
38 850 — 42 200 грн за м²
1 кімната
38.05-38.94 м²
Поверхи: 5-7
Секція 1
3 кв. 2027
Будується
2-кімнатні квартири від 2.34 млн грн
38 850 — 42 200 грн за м²
2 кімнати
60.21 м²
Поверхи: 1-4
Секція 1
3 кв. 2027
Будується
38 850 — 42 200 грн за м²
2 кімнати
61.38 м²
Поверхи: 5-7
Секція 1
3 кв. 2027
Будується
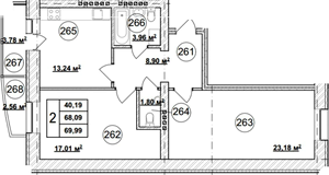
38 850 — 42 200 грн за м²
2 кімнати
69.99 м²
Поверхи: 1-4
Секція 1
3 кв. 2027
Будується
38 850 — 42 200 грн за м²
2 кімнати
72.93 м²
Поверхи: 5-7
Секція 1
3 кв. 2027
Будується
Найважливіші оновлення ЖК Оксамит
Акції, знижки та спецпропозиції
Нові фотографії з будівництва, аерообльоти
Оновлення цін від відділу продажу
Оновлення документів в реєстрах