Київ
Львів
Одеса
Вінниця
Дніпро
Житомир
Запоріжжя
Івано-Франківськ
Кропивницький
Луцьк
Миколаїв
Полтава
Рівне
Суми
Тернопіль
Ужгород
Харків
Херсон
Хмельницький
Черкаси
Чернівці
Чернігів
Так
Змінити місто
Головна
Новобудови
Продаж
Оренда
Мій ЛУН
Девелоперам: реклама на ЛУН
Рієлторам: розмістити оголошення
Власникам: розмістити оголошення через додаток ЛУН
Для ЗМІ
FAQ
Вакансії
Команда підтримки
Ми в соцмережах
Завантажити в
Завантажити в
Iнші проєкти
від
дослідження
міського простору
рієлторам: розміщення
оголошень на ЛУН
iOS App оренди
квартир
квартири у світі
від забудовника
спільнота девелоперів
житлових проєктів
подобова оренда
ЖК Costa fontana
ЖК Costa fontana
Про проєкт
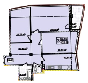
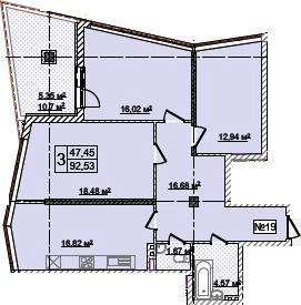
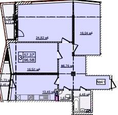
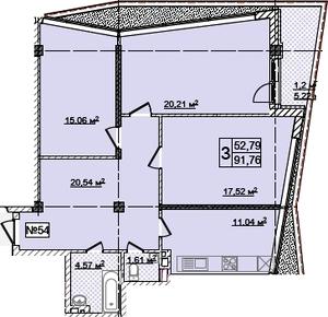
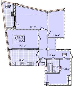
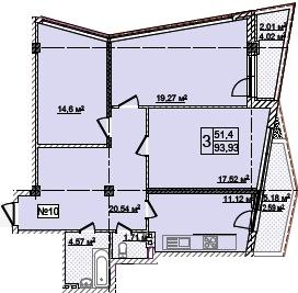
Планування
Моніторинг будівництва
Документи
Аерообліт 360
Контакти
Новини
По вашим запитам немає планувань.
Показати всі
Нерухомість Одеси від забудовника
Квартира в новобудові Київського району
Новобудови бізнес-класу
Будівельна компанія Київміськбуд
ЖК Costa fontana
Планування
Найважливіші оновлення ЖК Costa fontana
Акції, знижки та спецпропозиції
Нові фотографії з будівництва, аерообльоти
Оновлення цін від відділу продажу
Оновлення документів в реєстрах
Щоденні оновлення в телеграм
Планування