2-кімнатні квартири від 2.97 млн грн
44 050 — 46 250 грн за м²
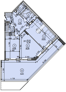
2 кімнати
62.4 м²
Поверхи: 2-15
Секція 4
3 кв. 2027
В проєкті
46 250 — 48 450 грн за м²
2 кімнати
64.32 м²
Поверхи: 3-5
Секція 1
2 кв. 2026
Будується
46 250 — 48 450 грн за м²
2 кімнати
91 м²
Поверхи: 3-15
Секція 1
2 кв. 2026
Будується
46 250 — 48 450 грн за м²
2 кімнати
99 м²
Поверхи: 2
Секція 1
2 кв. 2026
Будується
Найважливіші оновлення ЖК Київські Зорі-2
Акції, знижки та спецпропозиції
Нові фотографії з будівництва, аерообльоти
Оновлення цін від відділу продажу
Оновлення документів в реєстрах