Продаж квартир в вул. Хворостянка (Праці), 1
2 оголошення по 2 квартирах
власник
1.7 млн грн
30 519 грн/м²
вулиця Хворостянка, 1
Скопіювати посилання
Поскаржитися
Квартира з окремим плануванням, суміжним санвузлом та великою лоджією. Залишились фасадні роботи. Ремонт після будівельників.
В квартирі облаштоване автономне газове опалення (двоконтурний котел, алюмінієві радіатори). Будинок підключений до центральної каналізації, електрики, вивозу відходів, газу та центрального водопроводу.
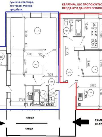
Можна придбати по програмі єОселя. При купівлі одночасно двох квартир (суміжна двокімнатна квартира площею 61.90 кв.м. також в продажу) тамбур між двома квартирами площею близько 8 кв.м. переходить у розпорядження одного власника. За запитом може бути надане відео огляду квартири, а також фото суміжної квартири.
Новобудова від АТ "Сумбуд". Цегляний будинок із зовнішнім утепленням. Будинок повністю побудований і зданий, квартири передані власникам для облаштування (ремонту). Під квартирою знаходиться цокольний поверх з комерційним приміщенням, а не підвал.
Поблизу розташовані дитяча та доросла поліклініка, стадіон "Авангард", школи №18 та №10, дитячий садочок, аптеки, супермаркет "Кошик", відділення Укрпошти, ринок, зупинка громадського транспорту, площа Незалежності, вул. Соборна.
Квартира кутова з великою лоджією, яку можна облаштувати під окремий вхід, використовувати для офісу, невеликого магазину, стоматологічного або лікарняного кабінету, нотаріальної контори, кондитерської, кав’ярні тощо.
2 кімнати
без ремонту
55.8 / - / 11.9 м²
цегляна
поверх 1 з 7
2024 Рік будівництва
власник
1.1 млн грн
23 664 грн/м²
вулиця Хворостянка, 1
Скопіювати посилання
Поскаржитися
Квартира під ремонт після здачі від забудовника. Повністю готова до ваших фантазій. Кімнати роздільні. Санвузол суміжний.
Автономне опалення.
Є можливість придбати облаштований підвал для зберігання важливих речей.
Квартира розташована в новому будинку. Будинок повністю утеплений, не кутовий. Є новий ліфт. Створене ОСББ. На першому поверсі є супермаркет Кошик.
Дуже зручне розташування. Центральний ринок 5 хвилин пішки. 1 хв до зупинок місткого транспорту. Поблизу є автостоянка. Біля будинку дитяча та доросла поліклініка. Також є стадіон Авангард (секції для дітей, бігові доріжки). До 5 хв до зеленої зони для відпочинку чи прогулянки з собакою.
Квартира має зручне розташування.
2 кімнати
без ремонту
48 / - / 8 м²
цегляна
поверх 6 з 7
2024 Рік будівництва
Задайте ціну для пошуку
Переглядайте лише ті об'єкти, що вам цікаві.
грн
грн