Квартира в 0-циклі, тобто без ремонту. Після будівельників. Планування вдале, двостороння.
Опалення індивідуальне газове, встановлений газовий котел. Є два санвузли.
Продаж по переуступці прав. Можливий обмін або розтермінування до 24 місяців.
Тип будинку - житловий фонд від 2021 р. На поверсі три квартири. Є підземний паркінг.
Поруч з будинком розташовані школа, дитячий садок, супермаркет, парк, відділення нової пошти, аптеки, зупинка громадського транспорту.
Хороша ціна.
Квартира має роздільне планування. Санвузол суміжний. В квартирі на стінах штукатурка, на підлозі стяжка. Встановлені металопластикові вікна.
Квартира обладнана лічильниками та газовим котлом. Система опалення індивідуальна газова.
Можливе розтермінування.
ЖК "ТИХИЙ ЛЬВІВ" - сучасний та комфортний житловий комплекс. Будинок з монолітно-каркасною конструкцією, стіни з цегли, утеплення пінопластом. Передбачена відпочинкова зона, дитячі майданчики. Є підземний паркінг, гостьовий паркінг, ліфт та комірки.
Квартира має балкон та лоджію.
Квартири з роздільним плануванням та роздільним санвузлом. Ремонт після будівельників. На стінах - штукатурка, на підлозі - стяжка. Встановлено металопластикові вікна.
Квартири оснащені лічильниками, індивідуальним газовим котлом. Є центральний водопровід, газ, електрика та центральна каналізація.
Забудовник пропонує розтермінування до двох років.
ЖК "ТИХИЙ ЛЬВІВ" - сучасний та комфортний житловий комплекс з монолітно-каркасною будовою. Стіни зроблені з цегли, газоблоків та утеплені пінопластом. У комплексі є підземний та гостьовий паркінги, відпочинкова зона, дитячі майданчики, комфортабельний ліфт та комори. Асфальтована дорога.
Квартира має роздільне планування. Санвузол також роздільний. Ремонт після будівельників. На стінах - штукатурка, на підлозі - стяжка. Встановлені металопластикові вікна.
Квартира обладнана індивідуальним газовим котлом. Встановлені лічильники.
Можливе розтермінування до двох років.
ЖК "ТИХИЙ ЛЬВІВ" - сучасний та комфортний житловий комплекс. Будинок монолітно-каркасної конструкції зі стін, збудованих із цегли та газоблоку. Будівля утеплена пінопластом. Передбачено підземний та гостьовий паркінги. На території комплексу облаштована відпочинкова зона з дитячими майданчиками. Встановлено комфортабельний ліфт. Додатково є комори.
Поблизу прокладена асфальтована дорога.
Квартира з роздільним санвузлом. Ремонт після будівельників. На стінах - штукатурка, на підлозі - стяжка.
В квартирі встановлені лічильники, котел індивідуального газового опалення. Є центральний водопровід, газ, електрика та центральна каналізація.
Можливе розтермінування до двох років.
ЖК "ТИХИЙ ЛЬВІВ" - сучасний та комфортний житловий комплекс. Передбачено підземний паркінг, гостьовий паркінг, відпочинкова зона, дитячі майданчики. Будинок з цегляними та газоблоковими стінами, утеплений пінопластом. Встановлений комфортабельний ліфт. Передбачені комірки.
ЖК розташований на вул. Відродження. Є асфальтована дорога.
Квартира має роздільне планування. Санвузол суміжний. Ремонт після будівельників. На стінах - штукатурка, на підлозі - стяжка. Встановлено металопластикові вікна.
Квартира оснащена індивідуальним електроопаленням. Встановлені лічильники. Є котел. Підключений центральний водопровід, газ, електрика та центральна каналізація.
Забудовник пропонує розтермінування до двох років.
ЖК "ТИХИЙ ЛЬВІВ" - сучасний та комфортний житловий комплекс. Будинок монолітно-каркасної будови зі стін з цегли та газоблоку. Зовнішнє утеплення виконано пінопластом. Встановлено комфортабельний ліфт. Передбачені підземний та гостьовий паркінги, відпочинкова зона, дитячі майданчики та комірки.
До ЖК прокладено асфальтовану дорогу.
Квартири здаються з післябудівельним ремонтом. На стінах - штукатурка, на підлозі - стяжка. Встановлені металопластикові вікна.
Квартири обладнані лічильниками, котлом та індивідуальним газовим опаленням. Підключено центральний водопровід, газ, електрику та центральну каналізацію.
Можливе розтермінування до двох років.
ЖК "ТИХИЙ ЛЬВІВ" - сучасний та комфортний житловий комплекс. Будинок монолітно-каркасної будови, стіни з цегли та газоблоку, утеплені пінопластом. Передбачено підземний та гостьовий паркінги, відпочинкову зону, дитячі майданчики. У комплексі є ліфт і комори. Асфальтована дорога.
Квартира має роздільне планування з роздільним санвузлом. Ремонт після будівельників. На стінах штукатурка, на підлозі стяжка. Встановлені металопластикові вікна.
У квартирі встановлені лічильники, котел та індивідуальне газове опалення. Підключені електрика, центральна каналізація та центральний водопровід.
Можливе розтермінування до двох років.
ЖК "ТИХИЙ ЛЬВІВ" - сучасний та комфортний житловий комплекс з монолітно-каркасною будівлею. Стіни виготовлені з цегли та газоблоку, утеплені пінопластом. Передбачено підземний паркінг, гостьовий паркінг, відпочинкову зону, дитячі майданчики та комірки. В будинку встановлено комфортабельний ліфт.
Поблизу прокладена асфальтована дорога.
Квартира має роздільне планування та суміжний санвузол. Ремонт після будівельників. На стінах - штукатурка, на підлозі - стяжка. Встановлені металопластикові вікна.
У квартирі є лічильники, котел та індивідуальне газове опалення. Комунікації включають центральний водопровід, газ, електрику та центральну каналізацію.
Можлива розтермінування до двох років.
ЖК "ТИХИЙ ЛЬВІВ" - сучасний та комфортний житловий комплекс. Будинок має монолітно-каркасну будову зі стін, викладених з цегли та газоблоку. Будинок утеплений пінопластом. У комплексі є комфортабельний ліфт, підземний паркінг, гостьовий паркінг, відпочинкова зона, дитячі майданчики та комірки.
До ЖК "ТИХИЙ ЛЬВІВ" прокладена асфальтована дорога.
Квартира з суміжним санвузлом. Ремонт 0-цикл. Виконано стяжку та штукатурку. Встановлені металопластикові вікна. Є балкон.
Квартира обладнана індивідуальним газовим опаленням.
Квартира розташована у новобудові, збудованій після 2021 року. ЖК Тихий Львів має підземний паркінг, ліфт та лоджію.
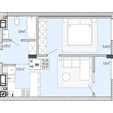
Квартира має 0-цикл. Планування роздільне. Санвузол роздільний.
У квартирі встановлені МП вікна, є балкон. Система опалення індивідуальна газова з газовим котлом. Є стяжка та штукатурка.
Квартира знаходиться в новобудові, житловому фонді від 2021 року. У ЖК Тихий Львів є ліфт та підземний паркінг.
Квартира з роздільним плануванням. На стінах - штукатурка, на підлозі - стяжка. Встановлені металопластикові вікна.
В квартирі встановлені лічильники. Опалення індивідуальне газове з газовим котлом.
Можливе розтермінування.
Сучасний та комфортний житловий комплекс "Тихий Львів" з монолітно-каркасною будовою. Стіни з цегли та газоблоків, утеплені пінопластом. В комплексі передбачені підземний та гостьовий паркінги, відпочинкова зона, дитячі майданчики. Також є ліфт, комірки.
Квартира має балкон та лоджію.
Квартира з роздільним плануванням, має два балкони. Ремонт 0-цикл, виконано стяжку та штукатурку. Встановлені металопластикові вікна.
Квартира обладнана індивідуальним газовим опаленням з газовим котлом.
Квартира розташована в новобудові, житловому фонді від 2021 року. ЖК Тихий Львів має ліфт та підземний паркінг.
Квартира має роздільне планування. Санвузол суміжний. На стінах - штукатурка, на підлозі - стяжка. Встановлені металопластикові вікна.
Квартира обладнана лічильниками. Опалення індивідуальне газове, встановлено газовий котел.
Квартира в новобудові від забудовника.
ЖК "ТИХИЙ ЛЬВІВ" - сучасний та комфортний житловий комплекс. Будинок монолітно-каркасної будови, стіни - цегла, газоблок, утеплення-пінопласт. Встановлено комфортабельний ліфт. Є підземний паркінг, гостьовий паркінг, відпочинкова зона, дитячі майданчики, комірки.
Квартира має балкон та лоджію.
Квартира з роздільним плануванням та роздільним санвузлом. На стінах - штукатурка, на підлозі - стяжка. Встановлені металопластикові вікна.
Квартира обладнана лічильниками та індивідуальним газовим котлом.
Можливе розтермінування.
ЖК "Тихий Львів" - сучасний та комфортний житловий комплекс з монолітно-каркасною будівлею. Стіни виконані з цегли та газоблоку, утеплені пінопластом. Передбачено підземний паркінг, гостьовий паркінг, відпочинкову зону та дитячі майданчики. У комплексі є ліфт та комірки.
Квартира має балкон і лоджію.
Квартира з роздільним плануванням та суміжним санвузлом. Ремонт потребує завершення. Наявні стяжка, штукатурка та МП вікна.
Квартира має індивідуальне опалення з газовим котлом.
Продаж.
Квартира розташована в новобудові, житловому фонді від 2021 року. ЖК Тихий Львів має ліфт, підземний паркінг та терасу.
Квартира має терасу.