Квартира з вільним плануванням. Виконано штукатурку стін. Ремонт під чистову обробку.
Індивідуальне газове опалення з газовим котлом Vaillant та радіаторами Purmo. Встановлено лічильники. Центральний водопровід та каналізація. Електрика та газ підведені.
Квартира без меблів.
Житловий комплекс OASIS преміум класу. Будинок побудований з червоної цегли, утеплено мінеральною ватою 100 мм. та облицьований вентельованим фасадом з керамо-граніту. Між квартирами в стіні закладена мінеральна вата 50 мм. для шумоізоляції та термоізоляції. В дворі є підземний та надземний паркінг, зона відпочинку з мангальною та дитячий майданчик. У будинку працює консєрж і є ліфт.
Квартира з балконом або лоджією та панорамними вікнами. Встановлено відеоспостереження.
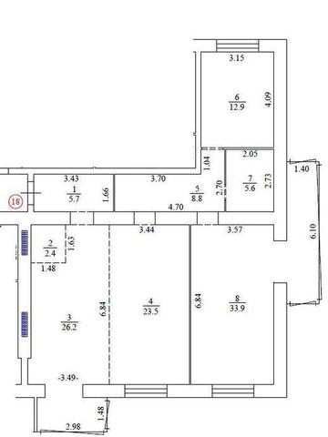
Квартира має круте планування з величезною кухнею-студією та двома окремими великими кімнатами. За бажанням можна переробити під три окремі кімнати. Ремонт під чистову обробку.
Квартира має індивідуальне газове опалення, центральну каналізацію, електрику, вивіз відходів, газ та центральний водопровід.
Квартира продається без меблів.
Якісний капітальний будинок, збудований після 2021 року. ЖК «ОАЗИС» має закриту територію, відеоспостереження, консьєржа, ліфт, підземний паркінг, панорамні вікна та гардероб.
Квартира розташована в самому центрі Кременчука поруч із центральним парком, набережною Дніпра та розвиненою інфраструктурою.
Квартира має роздільне планування, суміжний санвузол, балкон та лоджію.
Квартира має вільне планування з великою кухнею-вітальнею. Є можливість зробити додаткову кімнату. Санвузол суміжний. Ключові роботи вже виконані. Зроблена електропроводка, встановлена тепла підлога по всій квартирі, викладена плитка в кухні. Квартира в чистому стані після будівельних робіт, що є ідеальною базою для вашого дизайну.
Квартира має індивідуальне газове опалення з двоконтурним котлом Vaillant. Є центральна каналізація, електрика, газ, центральний водопровід та скважина.
Квартира не мебльована. Є матеріали такі як плитка, гіпсокартон, вініл та сантехнічні деталі.
Квартира розташована в житловому фонді від 2021 року.
Квартира світла, тепла, економна в утриманні та підходить як для життя, так і для інвестиції. Є балкон та лоджія. Додатково є кладове приміщення прямо на поверсі, яке продається окремо.
Квартира з роздільним плануванням, розроблена за дизайнерським проєктом. Ремонт на фінальній стадії готовності (90%%). Вже укладено дорогий ламінат, повністю проведена електропроводка та встановлено якісний електрощиток захисту. У ванній кімнаті покладена плитка та підведені всі комунікації. Залишилось обрати колір стін та шпалери у спальні.
Квартира обладнана індивідуальним газовим опаленням з вмонтованим газовим котлом. По всій квартирі облаштовані теплі підлоги. У підлозі змонтовані конвектори для захисту вікон від конденсату. Санвузол суміжний.
Квартира не мебльована.
ЖК Oasis - це новий сучасний житловий комплекс, побудований після 2021 року. Будинок має консьєржа.
ЖК Oasis розташований у районі з розвиненою інфраструктурою, зручним транспортним сполученням та комфортним середовищем для життя.
Квартира чудово підійде для сімей, які цінують простір, тишу та комфорт. Гнучке планування дозволяє облаштувати інтер’єр під власні потреби.
Встановлено котел та радіатори. Є можливість облаштувати теплу підлогу. Якісна термо- та шумоізоляція. Індивідуальне газове опалення.
ЖК "Оазіс" - це сучасний житловий комплекс, побудований у 2021 році. Він має зручну локацію та сучасні інженерні рішення. Підїзди та територія охайні. Є ліфт та підземний паркінг.
У квартирі є велика тераса, ідеальна для відпочинку, а також 2 санвузли. Встановлені панорамні вікна.
Квартира готова до фарбування та встановлення техніки. Санвузол суміжний. Авторський проект. Є готовий дизайн-проект, входить у вартість. Проект кухні готовий. Шумоізольована спальня. Лоджія може бути використана як робоча або релакс-зона.
Індивідуальне опалення Vaillant. Тепла підлога по всій квартирі. Преміальні вікна REHAU з УФ-захистом. Вінілова підлога комфортна влітку і тепла взимку. Щитова та автомати - Schneider Electric. Є швидкісний інтернет, Wi-Fi.
Квартира не мебльована. У вартість входить повний комплект преміальної сантехніки виробників Іспанії, Італії та Німеччини, а саме змішувачі Kludi, унітаз Cielo, гігієнічний душ, душова лійка та вся необхідна фурнітура.
Будинок житлового фонду від 2021 року. Є ліфт, консьєрж, відеоспостереження.
Є асфальтована дорога, центральна каналізація, електрика, вивіз відходів, газ, центральний водопровід, свердловина.
Є балкон, лоджія, госп. приміщення, комора. Є кладова на поверсі з вікном та електрикою.
Квартира готова до фарбування та встановлення техніки. У вартість входить готовий дизайн-проєкт. Є лоджія, яку можна облаштувати під робочу або релакс-зону.
Квартира має індивідуальне опалення Vaillant та теплу підлогу по всій квартирі. Встановлені преміальні вікна REHAU з УФ-захистом. Щитова та автомати - Schneider Electric.
У вартість входить повний комплект преміальної сантехніки: змішувачі Kludi, унітаз Cielo, гігієнічний душ, душова лійка та вся необхідна фурнітура. Виробники - Іспанія, Італія, Німеччина. Також є готовий проєкт кухні.
Квартира має вінілову підлогу, комфортну влітку та теплу взимку. Спальня шумоізольована. Бонус - кладова на поверсі з вікном та електрикою.