Продаж квартир в ЖК Q-4 "Quoroom Avenue"
14 оголошень по 9 квартирах
можливий продаж по єОселя
5.6 млн грн
68 563 грн/м²
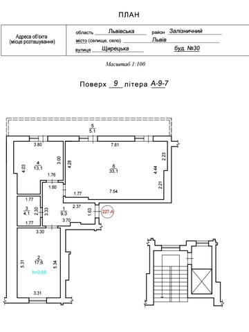
Щирецька вулиця, 30
Скопіювати посилання
Поскаржитися
Продаж 2к в ЖК Кворум
Право власності, переоформлення у нотаріуса
Єоселя, перерахунок!
Гарне планування, двостороння з виглядом у внутрішній двір та в бік Нової лінії, гарний краєвид
Величезна кухня-вітальня 33м, це родзинка цієї чудової квартири
Якість від надійного забудовника, побудований з цегли, зовнішнє утеплення, краща звукоізоляція, дах по новітнім технологіям, нічого не буде протікати наступні 50 років
На поверсі всього 2 квартири!
По наповненню:
Стяжка в кімнатах, штукатурка, радіатори, лічильники, німецькі вікна
Тераса вздовж всієї квартири
Ключі на руках, тож покажу в зручний для Вас час, також на вихідні
2 кімнати
без ремонту
82.3 / 32 / 33 м²
монолітно-каркасна
поверх 9 з 9
2024 Рік будівництва
6 млн грн
132 702 грн/м²
Щирецька вулиця, 30
Скопіювати посилання
Поскаржитися
Продаж нової 1 кімн.квартири з авторським якісним ремонтом в ЖК Quoroom Avenue по вул.Щирецькій.
Виконаний якісний сучасний авторський ремонт.
Заг. площа 45 м2
Поверх 6 з 9
Квартира повністю вмебльована і оснащена усією необхідною ПТ для комфортного проживання. Складається з кухні, спальні, суміжного санвузла, є балкон, а також відділена відпочинкова зона.
Виконаний якісний ремонт в теплих тонах, є багато шаф для зберігання особистих речей. В санвузлі електричний підігрів підлоги. З просторої кухні є вихід на балкон.
ЖК розташований у дуже зручній локації з максимально розвиненою інфраструктурою і транспортою розвязкою. В пішій доступності школи, садочки, спортзали, басейн, аптеки, супермаркети, Сільпо тощо. До ТРЦ Victoria Gardens 3 хв пішки.
Відеоогляд.
1 кімната
з ремонтом
45 / 14 / 12 м²
монолітно-каркасна
поверх 6 з 9
2024 Рік будівництва
Задайте ціну для пошуку
Переглядайте лише ті об'єкти, що вам цікаві.
грн
грн
власник
9.2 млн грн
124 917 грн/м²
Щирецька вулиця, 30
Скопіювати посилання
Поскаржитися
2-к квартира з дизайнерським ремонтом | ЖК «Кворум» | ВІД ВЛАСНИКА
Продаж 2-кімнатної квартири в
ЖК Кворум (вул. Щирецька, 30)
📐 Площа: 74 м² (фактично 86 м²)
🏢 Поверх: 4/9
✅ 2 ізольовані кімнати
✅ велика кухня-вітальня
✅ балкон + тераса
✅ гардеробна + госпблок
🔥 Переваги:
• дизайнерський ремонт (ніхто не жив)
• повністю укомплектована
• техніка Bosch, ТВ Samsung QLED
• фурнітура Blum, стільниця HPL
• ліжка Frankof з підйомним механізмом
• кондиціонер у кожній кімнаті
💡 Комфорт:
• тепла підлога у ванній
• трекове освітлення + підсвітки
• багато місць для зберігання
• пральна + сушильна машина
🌿 Балкон і тераса з меблями
🏠 Квартира готова до проживання - заїжджай і живи.
📞 ВІД ВЛАСНИКА
Без комісії
2 кімнати
з ремонтом
74 / 39 / 21 м²
монолітно-каркасна
поверх 4 з 9
2024 Рік будівництва
3.3 млн грн
79 002 грн/м²
Щирецька вулиця, 30
Скопіювати посилання
Поскаржитися
Квартира має роздільне планування. Стан ремонту - від будівельників, з чорновими роботами: стяжка у житловій площі та штукатурка по периметру квартири.
Будинок обладнаний власною котельнею. В квартирі встановлені лічильники на тепло, світло та воду. Комунікації включають: асфальтовану дорогу, центральну каналізацію, електрику, вивіз відходів, газ та центральний водопровід.
Продаж від забудовника. Без комісії для посередників (без СП).
Будинок відноситься до житлового фонду від 2021 року. Будинок зданий.
1 кімната
42 / - / 12 м²
поверх 3 з 10
2024 Рік будівництва
4.6 млн грн
108 462 грн/м²
Щирецька вулиця, 30
Скопіювати посилання
Поскаржитися
Квартира має роздільне планування та роздільний санвузол. Ремонт виконано за авторським проектом.
Система опалення забезпечується власною котельнею.
Квартира продається з меблями.
Будинок відноситься до житлового фонду від 2021 року. Створено ОСББ.
Поруч розташовані супермаркет Сільпо, ринок Південний, комплекс Три стихії, гімназія Дивосвіт, дитячий садок та гуртки для дітей, а також парк для прогулянок. Зручна транспортна розвязка.
Квартира затишна і світла.
1 кімната
з ремонтом
42 / - / 15 м²
цегляна
поверх 4 з 8
2024 Рік будівництва
3.5 млн грн
87 141 грн/м²
Щирецька вулиця, 30
Скопіювати посилання
Поскаржитися
Квартира має правильне та гарне планування з роздільними кімнатами. Стіни будинку з цегли. Ремонт відсутній.
Продаж квартири з правом власності. Будинок зданий.
Житловий фонд від 2021 року. Будинок має підземний та гостьовий паркінг. Передбачене місце під гардероб.
Одна з найрозвинутіших локацій у Львові. Поруч розташовані ТЦ Південний та ТЦ Вікторія Гарденс.
Балкон з кухні.
1 кімната
без ремонту
40.6 / - / 10.9 м²
цегляна
поверх 5 з 7
2024 Рік будівництва
5.6 млн грн
68 563 грн/м²
Щирецька вулиця, 30
Скопіювати посилання
Поскаржитися
Це унікальна багатофункціональна євро-трійка-трансформер у ЖК Quorum Avenue. Формат квартири дозволяє створити будь-яке планування під потреби сімї, з можливістю розміщення кухні у двох різних приміщеннях. Квартира двостороння, що забезпечує багато світла та свіжого повітря. Наповнення квартири включає стяжку по всій площі, штукатурку стін, встановлені вхідні двері та якісні вікна. До оголошення додається 9 можливих варіантів перепланування та розташування меблів. Квартира має велику кухню-студію 32,50 м², дві окремі спальні (17,5 м² та 14,3 м²) та два балкони.
Квартира має центральне опалення, централізоване гаряче водопостачання та газ. Встановлені лічильники.
Інформація про меблі та техніку не надана.
Можливість придбання за програмою "єОселя". Відсутні комісії та зайві витрати.
Сучасний комплекс комфорт-класу Q-4 "Quoroom Avenue" складається з шести секцій різної поверховості. Комплекс має закриту територію, монолітно-каркасну технологію будівництва, зовнішні стіни з керамічної цегли та сучасні ліфти. Передбачено підземний та гостьовий паркінг.
Житловий комплекс розташований у затишному районі з розвиненою інфраструктурою. Поруч знаходяться торговий центр Victoria Gardens, ринок "Південний", а також забезпечено зручний виїзд у будь-яку частину міста.
Квартира має панорамні вікна, балкон та лоджію. Передбачено підігрів підлоги та можливість встановлення кондиціонерів. Вхідні двері броньовані.
3 кімнати
без ремонту
81.9 / - / 32.5 м²
цегляна
поверх 7 з 7
2024 Рік будівництва
власник
6 млн грн
132 702 грн/м²
Щирецька вулиця, 30
Скопіювати посилання
Поскаржитися
Планування квартири - студія. Санвузол роздільний. Ремонт виконано за авторським проектом.
Система опалення централізована. Комунікації включають асфальтовану дорогу, центральну каналізацію, електрику, газ та центральний водопровід.
Квартира мебльована. В наявності телевізор.
Будинок житловий, збудований після 2021 року. В квартирі є ліфт.
Поруч розташовані Нова Лінія, ТЦ Вікторія Гарденс, Південний.
Квартира оснащена кондиціонером, балконом, лоджією, ванною та підігрівом підлоги. Меблі на кухні також присутні.
1 кімната
з ремонтом
45 / - / 12 м²
цегляна
поверх 6 з 9
2024 Рік будівництва
власник
4.6 млн грн
108 993 грн/м²
Щирецька вулиця, 30
Скопіювати посилання
Поскаржитися
Квартира має правильне планування. Ремонтні роботи можна починати.
Продаж за договором переуступки, документи будуть у вересні.
Будинок збудований.
Престижний район поруч з парком.
1 кімната
з ремонтом
41.8 / 16 / 16 м²
монолітно-каркасна
поверх 4 з 8
2024 Рік будівництва