ПРОДАЖ БЕЗ КОМІСІЇ ДЛЯ ПОКУПЦЯ!
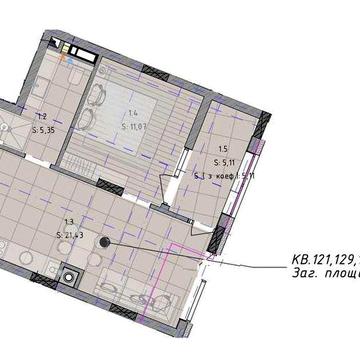
Продаж 2к квартири ЖК Кленовий двір по вул. Брюховицька 35. Планова здача 4 квартал 2027 року. У квартирі 0 цикл, індивідуальне опалення, кімнати ізольовані, є ТЕРАСА по периметру квартири.
Ціна дешевша, ніж у забудовника!
Можливе розтермінування!
Квартира має роздільне планування з суміжним санвузлом. Будинок монолітно-каркасний, утеплений пінополістиролом. Виконано штукатурку та стяжку. Встановлено МП панорамні вікна та вхідні двері.
Квартира обладнана індивідуальним газовим опаленням з котлом та всіма лічильниками.
Забудовник пропонує розтермінування.
ЖК Кленовий двір - це житловий фонд від 2021 року. На території комплексу розташовані дворівневий паркінг, комерційні приміщення, відпочинкова зона, дитячий майданчик. Територія озеленена.
Квартира має балкон, лоджію, терасу та гардероб.
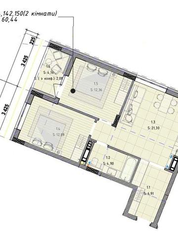
Квартири від забудовника. Планування роздільне. Санвузол роздільний. Стан ремонту включає штукатурку, стяжку, вхідні двері та МП панорамні вікна.
Індивідуальне газове опалення (котел). Встановлені всі лічильники.
ЖК Кленовий двір - це житловий фонд від 2021 року. Будинок монолітно-каркасний з утепленням пінополістриролом. На території є дворівневий паркінг, комерційні приміщення, відпочинкова зона, дитячий майданчик та озеленення.
Квартири мають балкони, лоджії, панорамні вікна та ліфт.
Квартири мають роздільне планування. Санвузол також роздільний. В квартирах виконано штукатурку та стяжку. Встановлено панорамні металопластикові вікна та вхідні двері.
Квартири обладнані індивідуальним газовим опаленням з котлом. Встановлено всі лічильники.
Квартири продаються забудовником з розтермінуванням.
ЖК Кленовий двір має монолітно-каркасну конструкцію з утепленням пінополістиролом. На території є дворівневий паркінг, комерційні приміщення, відпочинкова зона, дитяча площадка та озеленення. ЖК має ліфт.
Квартири мають балкон, лоджію та гардероб.
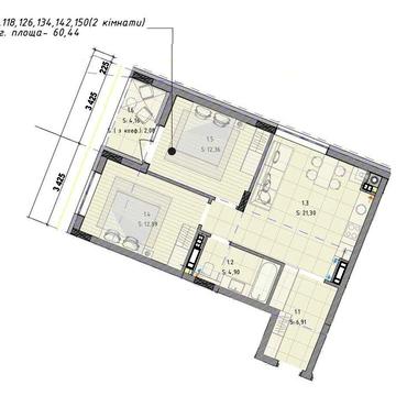
Квартири від забудовника з роздільним плануванням та санвузлом. Будинок монолітно-каркасний, з утепленням пінополістиролом. Виконана штукатурка та стяжка. Встановлені панорамні МП вікна та вхідні двері.
Квартири обладнані індивідуальним газовим опаленням з котлом. Встановлені всі лічильники.
Можливе розтермінування.
ЖК Кленовий двір з житловим фондом від 2021 року. На території розташовані дворівневий паркінг, комерційні приміщення, відпочинкова зона, дитячий майданчик. Територія озеленена.
Квартири з балконом, лоджією, терасою та гардеробом. Установлені панорамні вікна. Є ліфт. Наявний підземний та гостьовий паркінг.
Квартири мають роздільне планування з роздільним санвузлом. Планування роздільне. Виконана штукатурка та стяжка. Встановлені панорамні металопластикові вікна та вхідні двері.
Квартири обладнані індивідуальним газовим опаленням з котлом. Встановлені всі лічильники.
Квартири продаються від забудовника. Можливе розтермінування.
ЖК Кленовий двір - житловий фонд від 2021 року. Будинки з монолітно-каркасною конструкцією та утепленням пінополістиролом. На території розташовані дворівневий паркінг, комерційні приміщення, відпочинкова зона, дитяча площадка. Територія озеленена.
Квартири мають балкон, лоджію та терасу. У будинку є ліфт. Також є підземний та гостьовий паркінги.
Квартири мають роздільне планування з роздільним санвузлом. У квартирах виконано штукатурку та стяжку. Встановлені панорамні металопластикові вікна та вхідні двері.
У квартирах встановлено індивідуальне газове опалення з котлом. Також є всі лічильники.
Квартири здаються без меблів та техніки.
Квартири продаються від забудовника з можливістю розтермінування.
ЖК Кленовий двір побудований у 2021 році за монолітно-каркасною технологією з утепленням пінополістиролом. На території ЖК є дворівневий паркінг, комерційні приміщення, відпочинкова зона, дитячий майданчик та озеленення.
Квартири мають балкон, лоджію, гардероб. У будинку є ліфт.
Квартири мають роздільне планування з роздільним санвузлом. Виконано штукатурку та стяжку. Встановлені металопластикові панорамні вікна та вхідні двері.
Квартири обладнані індивідуальним газовим опаленням з котлом. Встановлені всі лічильники.
Можливе розтермінування.
ЖК Кленовий двір - житловий фонд від 2021 року. Будинки монолітно-каркасні, утеплені пінополістиролом. На території розташовані дворівневий паркінг, комерційні приміщення, відпочинкова зона, дитяча площадка, є озеленення.
Квартири мають балкон або лоджію.
Квартири з роздільним плануванням та суміжним санвузлом. Будинок монолітно-каркасний з утепленням пінополістиролом. Виконано штукатурку та стяжку. Встановлені панорамні вікна з металопластику та вхідні двері.
Квартири оснащені індивідуальним газовим опаленням з котлом та всіма лічильниками.
Квартири продаються від забудовника з можливістю розтермінування.
ЖК Кленовий двір - житловий фонд від 2021 р. На території ЖК розташовані дворівневий паркінг, комерційні приміщення, відпочинкова зона, дитячий майданчик та озеленені території.
Квартири обладнані балконом, лоджією та гардеробом. У будинку є ліфт та підземний паркінг.
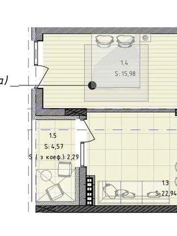
Планування роздільне, санвузол суміжний. Квартира з ремонтом після будівельників. Виконана стяжка в кімнатах та штукатурка. Є можливість вибрати різні типи планувань.
Індивідуальне газове опалення. Встановлені всі лічильники. Підключені центральна каналізація, електрика, вивіз відходів, газ, центральний водопровід.
Будинок на етапі будівництва. Є ліфт, підземний паркінг і гостьовий паркінг.
Прокладена асфальтована дорога.
Встановлені вхідні двері з МДФ накладками та металопластикові вікна.
Квартири мають роздільне планування з роздільним санвузлом. Виконані штукатурка та стяжка підлоги. Встановлені панорамні металопластикові вікна та вхідні двері.
Квартири оснащені індивідуальним газовим опаленням з котлом. Встановлені лічильники на всі комунікації.
Квартири продаються від забудовника з можливістю розтермінування.
ЖК Кленовий двір побудований за монолітно-каркасною технологією з утепленням пінополістиролом. На території комплексу розташовані дворівневий паркінг, комерційні приміщення, відпочинкова зона, дитячий майданчик та озеленені території.
Поблизу розташована вул. Брюховицька та вул. Шевченка.
Квартири оснащені балконом, лоджією, терасою та гардеробом. Доступний ліфт.
Квартири мають роздільне планування та санвузол. Встановлені панорамні вікна, вхідні двері. Виконана штукатурка та стяжка.
Встановлено індивідуальне газове опалення з котлом. Є всі лічильники.
Квартири продаються від забудовника з можливістю розтермінування.
ЖК Кленовий двір побудований у 2021 році. Будинок монолітно-каркасний з утепленням пінополістиролом. На території розташовані двориковий паркінг, комерційні приміщення, відпочинкова зона, дитячий майданчик. Територія озеленена.
Поблизу розташована вул. Брюховицька та вул. Шевченка.
Квартири обладнані балконом, лоджією та гардеробом. У будинку є ліфт та підземний паркінг.
Квартири мають роздільне планування. У квартирах виконано штукатурку та стяжку.
Квартири обладнані індивідуальним газовим опаленням (котел). Встановлені всі лічильники.
Квартири продаються від забудовника. Можливе розтермінування.
ЖК Кленовий двір - житловий фонд від 2021 року. Будинок монолітно-каркасний з утепленням пінополістиролом. Встановлені МП панорамні вікна та вхідні двері. На території ЖК розташовані дворівневий паркінг, комерційні приміщення, відпочинкова зона, дитячий майданчик. Територія озеленена.
Квартири мають балкон, лоджію та ліфт.
Квартири мають роздільне планування з суміжним санвузлом. Будинки зведені за монолітно-каркасною технологією, утеплені пінополістиролом. Є штукатурка, стяжка, панорамні вікна з металопластику та вхідні двері.
У квартирах встановлено індивідуальне газове опалення з котлом. Всі лічильники встановлені.
Квартири здаються без меблів та техніки.
Квартири продаються від забудовника з можливістю розтермінування.
ЖК Кленовий двір має дворівневий паркінг, комерційні приміщення, відпочинкову зону, дитячий майданчик та озеленену територію.
Квартири мають балкон або лоджію.
Квартири від забудовника з роздільним плануванням. Санвузол суміжний. Виконано штукатурку та стяжку. Встановлено металопластикові панорамні вікна і вхідні двері.
Квартири мають індивідуальне газове опалення (котел). Встановлені всі лічильники.
Квартири продаються в розтермінування.
Монолітно-каркасна будівля, утеплена пінополістиролом. Є дворівневий паркінг, комерційні приміщення, відпочинкова зона, дитячий майданчик та озеленення території.
Квартири мають комфортний балкон, лоджію, ліфт, підземний паркінг, гостьовий паркінг, панорамні вікна та терасу.
Планування роздільне. Санвузол суміжний. Квартира має штукатурку, стяжку, металопластикові панорамні вікна і вхідні двері.
Квартира має індивідуальне газове опалення з котлом. Встановлені всі лічильники.
Будинок побудований за монолітно-каркасною технологією з утепленням. ЖК Кленовий двір має дворівневий паркінг, комерційні приміщення, відпочинкову зону, дитячий майданчик та озеленену територію.
Квартира має балкон, лоджію, ліфт, підземний паркінг, гостьовий паркінг та панорамні вікна.
Квартира має кухню-вітальню площею 16 кв.м., спальню площею 13 кв.м. та суміжний санвузол площею 5 кв.м. Планування роздільне. Квартира здається з стяжкою, штукатуркою, панорамними металопластиковими вікнами та вхідними дверима.
Встановлено лічильники та індивідуальний газовий котел для опалення та підігріву води. Система опалення - індивідуальне газове. Доступні центральна каналізація, електрика, вивіз відходів, газ та центральний водопровід.
Квартира продається без комісії для покупця. Здача запланована на 3 квартал 2027 року. Можливе розтермінування.
Будинок монолітно-каркасний з керамоблочними стінами та утепленням пінополістиролом. У ЖК є дворівневий паркінг, внутрішня інфраструктура з багатьма комерційними приміщеннями, відпочинкова зона, дитячий майданчик та озеленена територія. У будинку є ліфт та підземний паркінг.
Поблизу розташовані вулиця Шевченка та ЖК Шенген, Веселка, Дольче Віта та ін.
Вікна квартири виходять на південь та захід. Є балкон та лоджія.
Квартири мають роздільне планування, роздільний санвузол. Виконано штукатурку та стяжку. Встановлені панорамні металопластикові вікна та вхідні двері.
Квартири оснащені індивідуальним газовим опаленням з котлом. Встановлені всі лічильники.
Квартири продаються від забудовника з можливістю розтермінування.
ЖК Кленовий двір побудований за монолітно-каркасною технологією з утепленням пінополістиролом. На території є дворівневий паркінг, комерційні приміщення, відпочинкова зона, дитячий майданчик та озеленення.
Квартири розташовані в житловому фонді від 2021 року.
Квартири мають терасу.
Квартири мають роздільне планування з суміжним санвузлом. Будинок монолітно-каркасний з утепленням пінополістиролом. Виконана штукатурка та стяжка. Встановлені панорамні МП вікна та вхідні двері.
Квартири обладнані індивідуальним газовим опаленням з котлом. Встановлені всі лічильники.
Можливе розтермінування платежу.
ЖК Кленовий двір побудований у 2021 році. На території є дворівневий паркінг, комерційні приміщення, відпочинкова зона, дитячий майданчик та озеленення.
Квартири мають балкон або лоджію. Будинок обладнаний ліфтом.
Квартири з роздільним плануванням та роздільним санвузлом. Виконано штукатурку та стяжку підлоги. Встановлені панорамні металопластикові вікна та вхідні двері.
Квартири оснащені індивідуальним газовим опаленням з котлом. Встановлені лічильники.
Квартири продаються від забудовника з можливістю розтермінування.
ЖК Кленовий двір - монолітно-каркасна будівля з утепленням пінопластом. На території розташовані дворівневий паркінг, комерційні приміщення, відпочинкова зона, дитячий майданчик та озеленені території.
Квартири мають балкон або лоджію. У будинку є ліфт.
Планування квартир роздільне. Санвузол суміжний. В квартирах виконана штукатурка та стяжка. Встановлені металопластикові панорамні вікна та вхідні двері.
Опалення індивідуальне газове з котлом. Встановлені всі лічильники.
Квартири від забудовника з можливістю розтермінування.
Житловий фонд від 2021 року. Будинок монолітно-каркасний з утепленням пінополістиролом. В ЖК є дворівневий паркінг, комерційні приміщення, відпочинкова зона, дитячий майданчик та озеленена територія.
Квартири мають балкон, лоджію, ліфт, підземний паркінг, панорамні вікна та гардероб.
Квартири від забудовника з роздільним плануванням. Стан ремонту включає штукатурку, стяжку, МП панорамні вікна та вхідні двері.
Індивідуальне газове опалення (котел), всі лічильники.
Можливе розтермінування.
Будинок житлового фонду від 2021 року, побудований за монолітно-каркасною технологією з утепленням пінополістиролом. Є дворівневий паркінг та комерційні приміщення. На території ЖК розташовані відпочинкова зона, дитячий майданчик та озеленення.
Квартири мають балкон, лоджію, ліфт, підземний паркінг, панорамні вікна та суміжний санвузол.
Квартири від забудовника з можливістю розтермінування. Планування роздільне. Санвузол роздільний. В квартирах виконана штукатурка та стяжка. Встановлені металопластикові панорамні вікна та вхідні двері.
Індивідуальне газове опалення з котлом. Встановлені всі лічильники.
ЖК Кленовий двір - це житловий фонд від 2021 року. Будинок монолітно-каркасний, утеплений пінополістиролом. Є дворівневий паркінг, комерційні приміщення, відпочинкова зона, дитячий майданчик, озеленення території. В будинку є ліфт, підземний паркінг та гостьовий паркінг.
В квартирах є балкон, лоджія та гардероб.
Планування роздільне. Санвузол роздільний. Квартири від забудовника. Є розтермінування. Виконано штукатурку та стяжку. Встановлено металопластикові панорамні вікна та вхідні двері.
Індивідуальне газове опалення (котел). Встановлені всі лічильники.
Монолітно-каркасна будівля з утепленням. Є дворівневий паркінг та комерційні приміщення. На території є відпочинкова зона, дитячий майданчик та озеленення.
Є балкон та лоджія.