Квартира з роздільним плануванням. Вона має простору кімнату площею 17,2 кв.м., кухню з виходом на засклену лоджію площею 5,1 кв.м., суміжний санвузол площею 5 кв.м. та коридор площею 4,8 кв.м. Стіни поштукатурені. Квартира під чистову обробку.
У квартирі встановлено індивідуальне газове опалення з котлом, радіаторами та теплою підлогою. Забудовник також встановив лічильники. Є центральне водопостачання та каналізація.
Квартира продається без меблів та техніки.
Можливе безвідсоткове розтермінування від забудовника з першим внеском 30%% від загальної вартості.
ЖК Comfort Hill - це житловий фонд від 2021 року. Будинок комфорт-класу, цегляний, з цегляними міжкімнатними перегородками. У будинку 2 підїзди, в кожному з яких по два ліфти - пасажирський та вантажний. На даху будинку встановлено автономне джерело безперебійного живлення. Є консьєрж-сервіс, зона відпочинку з диванчиками та столиками, гостьовий санвузол, кімната для зберігання дитячих візочків, підземний паркінг з укриттям та гостьовий паркінг. Територія закрита та охороняється. У ЖК є дитячий майданчик, зона для прогулянок із домашніми улюбленцями та велопарковка.
ЖК Comfort Hill розташований у тихому та комфортному районі, ближньому центрі. Поруч є магазини, школи, садочки, парк, озеро. Зручна транспортна розвязка.
Квартира світла з панорамними вікнами, з яких відкривається вид на все місто. Балкон засклений. Є відеоспостереження та пожежна сигналізація.
Квартира має роздільне планування. Вона тепла та сонячна. В квартирі велика кімната з заскленою лоджією площею 18,7/5,2 м.кв., встановлені панорамні енергозберігаючі вікна. Простора кухня з відкритим балконом площею 20,8/2,2 м.кв. виходить у двір будинку. Є функціональний коридор площею 9,3 м.кв. та суміжний санвузол площею 4,4 м.кв. Кімнати не прохідні, кухня та кімната не перетинаються, тому що розєднані коридором. Можливе перепланування, зокрема, приєднання лоджії до кімнати та розділення на дві smart-квартири.
Квартира має індивідуальне газове опалення. Встановлено підігрів підлоги. Є автономне джерело безперебійного живлення на даху будинку.
Без комісії. Можливе розтермінування. При 100%% оплаті діє знижка 15%% від загальної вартості.
ЖК Comfort Hill від Забудовника City Lviv Development - це житловий фонд, зданий у 3 кварталі 2025 року. Будинок бізнес-класу з двома підїздами, у кожному з яких по два ліфти - вантажний та пасажирський. На даху будинку встановлено автономне джерело безперебійного живлення. Є підземний паркінг, де можна придбати паркомісце зі знижкою 10%% при купівлі житла. Також є гостьовий паркінг. Територія ЖК закрита, під постійним відеонаглядом. На території розташовані дві зони відпочинку, дитячий майданчик, місце для прогулянки з домашніми тваринами. В будинку є консєрж-сервіс, диванчики з столиками, кімната для дитячих візочків та гостьовий санвузол.
ЖК розташований у ближньому центрі міста в районі, що швидко розвивається. Тут є вся необхідна інфраструктура, хороше транспортне сполучення, поруч зупинка громадського транспорту. Поруч з будинком знаходяться магазини, садки, навчальні заклади, АЗС, ресторани та інші заклади.
Квартира має панорамні вікна з чудовим видом на Високий Замок та вул. Під Голоском. Встановлені панорамні енергозберігаючі вікна.
Квартира має роздільне планування. Вона включає просторий коридор, кухню з виходом на відкритий балкон, велику кімнату, санвузол та гардеробну кімнату. Купуючи дану квартиру, враховується коефіцієнт відкритого балкону. Квартира здається під чистову обробку. Вона включає бетонну стяжку та штукатурку. У вартість квартири входить встановлення радіаторів в кімнаті та тепла підлога в кухні, санвузлі та коридорі. Можливе виконання додаткових робіт за попереднім погодженням.
Квартира має індивідуальне газове опалення. У вартість входить підведення комунікацій до квартири та встановлення всіх необхідних лічильників.
Доступне безвідсоткове розтермінування від забудовника до кінця року. Також доступні знижки при 100%% оплаті та для військовослужбовців. При купівлі квартири в даному ЖК діє знижка на купівлю паркомісця в підземному паркінгу. Здача в експлуатацію запланована на 3 квартал цього року.
ЖК Comfort Hill від забудовника City Lviv Development має 2 підїзди, в кожному з яких по два ліфти - пасажирський та вантажний. На території житлового комплексу є автономне джерело безперебійного живлення, що забезпечує світлом весь будинок у разі відсутності електроенергії. Територія будинку закрита, з цілодобовим відеоспостереженням, охороною території та консєрж-сервісом. На території встановлені сучасний дитячий майданчик, зони відпочинку, місце для вигулу домашніх улюбленців та велопаркова.
ЖК Comfort Hill розташований у Шевченківському районі на вулиці Під Голоском.
Квартира має панорамні вікна, які виходять на вулицю Малоголосківську та двір будинку. У вартість входить встановлення вхідних дверей та вікон зі склопакетами.
Квартира має гардеробну кімнату, суміжний санвузол, кімнату правильної форми, вмісткий коридор та кухню з виходом на відкритий балкон. Планування роздільне. Ремонт під чистову обробку.
Встановлені лічильники. Підведені комунікації до квартири. Встановлені радіатори в кімнаті та тепла підлога в кухні, санвузлі та коридорі. Є автономний електрогенератор, який запускається у разі вимкнення електроенергії.
Здача 3 квартал 2025 року. При купівлі квартири в ЖК Comfort Hill діє знижка на купівлю паркомісця в підземному паркінгу.
ЖК Comfort Hill має підземний паркінг, резервне джерело безперебійного живлення, укриття та консьєржа. Територія закрита, оснащена дитячим майданчиком, двома відпочинковими зонами, місцем для вигулу тварин та велопарковкою. У будинку є ліфт та ванна.
Поблизу ЖК є магазини, садочки, навчальні заклади, АЗС, ресторани та інші заклади.
Квартира простора, світла, з панорамними вікнами, які виходять у двір будинку та на вулицю Малоголосківську. Встановлені вхідні двері та вікна зі склопакетами. Зроблена бетонна стяжка та штукатурка. Квартира має лоджію.
Квартира має роздільне планування. Вона складається з просторої кімнати з заскленою лоджією, великої кухні з виходом на відкритий балкон, чималого коридору та суміжного санвузла. У квартирі вже проведені внутрішні штукатурні роботи. Квартира під чистову обробку.
Опалення - індивідуальне газове, котел встановлює забудовник. Встановлені необхідні лічильники.
Продаж від забудовника City Lviv Development. Без комісії. Доступне безвідсоткове розтермінування. Здача 3 квартал 2025 року. При купівлі квартири надається знижка 10%% на паркомісце в підземному паркінгу.
Будинок комфорт класу з сучасним плануванням, розвиненою інфраструктурою та високою якістю будівництва. Будинок майже збудований, ведуться завершальні роботи: облаштування фасаду та внутрішня штукатурка. Монолітно-каркасна основа з цегляними стінами та утепленням мінеральною ватою. У будинку два підїзди, в кожному з яких по два ліфти - пасажирський та вантажний. Є резервне джерело безперебійного живлення, яке забезпечує електроенергією ліфти та кожну квартиру. Також є підземний паркінг, який слугує як укриття, а ліфти спускаються одразу на парковку. На території житлового комплексу є місце для відпочинку, для вигулу домашніх тварин, дитячий майданчик. Територія закрита, цілодобовий відеонагляд та охорона.
ЖК "Comfort Hill" знаходиться в Шевченківському районі міста Львова по вулиці Під Голоском. Ближній центр, всього 10 хв на авто до центру.
Квартира на 16 поверсі з панорамним виглядом на все місто. Має засклену лоджію з якої відкривається вид на Високий Замок, а також відкритий балкон, що виходить у двір будинку. У вартість квартири входить підведення комунікацій до квартири без внутрішньої розводки, встановлення вхідних дверей та вікон зі склопакетами, влаштування бетонної стяжки та штукатурки. Можливе проведення інших робіт за попереднім погодженням.
Квартира з правильним плануванням. Простора кухня з панорамним виглядом на Високий Замок. Кімната з відведеною нішею для вмонтованої шафи або гардеробної. Санвузол суміжний. Коридор з нішею для прихожої. Ремонт під чистову обробку.
Квартира має індивідуальне газове опалення з котлом та радіаторами в кімнатах. Підігрів підлоги в коридорі, кухні та ванній. Підведення електрики до квартири. Встановлені лічильники електроенергії, води та газу.
Можливе розтермінування. При 100%% оплаті доступна знижка 5%%. Для військовослужбовців знижка 10%% при 100%% оплаті. Продаж від забудовника без комісії. При купівлі квартири в ЖК доступна знижка на паркомісце.
ЖК "Comfort Hill" - житловий комплекс комфорт-класу з 2021 року. Комплекс має закриту територію з відеонаглядом та охороною. На території розташовані зона відпочинку, дитячий майданчик та місце для вигулу домашніх тварин. Також є підземний паркінг, який слугуватиме укриттям, та гостьовий паркінг. Встановлено резервне джерело живлення, яке автоматично вмикається у разі відключення електроенергії.
ЖК розташований у сучасному мікрорайоні з розвиненою інфраструктурою, неподалік від центру міста (10 хвилин пішки). У пішій доступності є школи, дитячі садки, лікарня, супермаркети, ТРЦ, спортивні зали, церква, бібліотека, зупинка громадського транспорту та парк для прогулянок.
Квартира має панорамні вікна та балкон або лоджію. Встановлені енергозберігаючі вікна з двокамерним склопакетом та пятикамерним профілем. Є надійні вхідні двері. З квартири відкривається вид на місто.
Квартира з роздільним плануванням. В квартирі велика кухня площею 19,3 м.кв., простора кімната з панорамними вікнами та виходом на засклений балкон площею 16/3.5 м.кв. Також є гардероб площею 2,5 м.кв., суміжний санвузол площею 4.1 м.кв. та коридор площею 7.3 м.кв. Квартира здається під чистову обробку. Забудовник проводить штукатурні роботи, заливає стяжку, проводить комунікації до квартири, встановлює двері та лічильники.
Будинок газифікований. Забудовник встановлює котли у кожну квартиру. У будинку є резервне джерело безперебійного живлення, яке запускається у разі вимкнення світла.
Доступне безвідсоткове розтермінування. Без комісії.
ЖК "Comfort Hill" - житловий фонд від 2021 року. Будинок має два ліфти в кожному підїзді - вантажний та звичайний. В будинку є укриття та підземний паркінг. При купівлі квартири знижка на паркінг. Територія будинку закрита під цілодобовим відеонаглядом та охороною. На самій території житлового комплексу знаходиться місце для відпочинку, для вигулу домашніх улюбленців та дитячий майданчик. В будинку встановлені енергозберігаючі вікна з пятикамерними склопакетами.
ЖК розташований у ближньому центрі міста, всього 10 хв на авто від центру. Поблизу є магазини, садочки, навчальні заклади, АЗС, ресторани та інші заклади. Все необхідне в пішій доступності.
Квартира має панорамні вікна. У будинку є гостьовий паркінг. Територія будинку має цілодобовий відеонагляд та охорону. Квартира має балкон та лоджію. Також є підігрів підлоги, ванна, гардероб та пожежна сигналізація.
Квартира має роздільне планування. Вона знаходиться в новобудові, здача якої запланована на 3 квартал 2025 року. У квартирі вже проведені внутрішні штукатурні роботи.
Квартира оснащена індивідуальним газовим опаленням. Забудовник встановлює котли та проводить розведення теплої підлоги в коридорі, кухні та санвузлі. У вартість квартири входить підведення комунікацій до квартири без внутрішньої розводки, встановлення всіх необхідних лічильників, вхідних дверей та вікон зі склопакетами, влаштування бетонної стяжки та штукатурки.
Квартира продається без меблів та техніки.
Без комісії. Доступне безвідсоткове розтермінування. При купівлі квартири знижка на паркомісце. Можливе проведення інших робіт за попереднім погодженням.
Будинок має два підїзди, в кожному з яких по два ліфти - пасажирський та вантажний. На даху будинку розміщений генератор, що забезпечить електроенергією ліфти та квартири у разі відсутності електропостачання. На першому поверсі розташований просторий світлий хол із зонами відпочинку та стійкою консьєржа, гостьовий санвузол та місце для дитячих візочків. Територія ЖК оснащена дитячим майданчиком, двома відпочинковими зонами, місцем для вигулу домашніх тварин та велопарковкою. Територія закрита під цілодобовим відеонаглядом та охороною. В будинку є підземний паркінг, укриття та пожежна сигналізація.
Квартира розташована в тихому та спокійному районі з пішою доступністю до центру. Поблизу ЖК є магазини, садочки, навчальні заклади, АЗС, ресторани та інші заклади.
З квартири відкривається панорамний вигляд на все місто. Відкритий балкон виходить на Високий Замок. Квартира має великий коридор, простору вітальню з виходом на відкритий балкон, дві кімнати, ванну кімнату та санвузол.
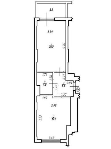
Квартира з правильним та зручним плануванням. Кухня та вітальня розділені просторим коридором площею 5,5 кв.м. Навпроти вхідних дверей знаходиться санвузол площею 4,3 кв.м. З лівої сторони - кухня площею 19 кв.м. з панорамним виглядом у двір будинку. З іншого боку - велика кімната площею 20,2 кв.м. з виходом на засклену лоджію площею 5,7 кв.м. Кімнати не прохідні, кухня та кімната не перетинаються, тому що розєднанні коридором. Можливе перепланування з приєднанням лоджії до кімнати та відмежуванням спальні і кімнати відпочинку. Квартира під чистову обробку.
У вартість входить підведення комунікацій до квартири, встановлення лічильників. Також передбачено індивідуальне газове опалення з встановленням котла та радіаторів, розведення теплої підлоги в кухні, коридорі та санвузлі. На даху будинку буде автономне джерело безперебійного живлення, що забезпечить світлом цілий будинок у разі відсутності електроенергії.
Квартира не мебльована.
Здача 3 квартал 2025 року. Без комісії. Можливе розтермінування.
ЖК "Comfort Hill" - це житловий фонд від 2021 року з роздільним плануванням та суміжним санвузлом. Територія ЖК закрита, під постійним відеонаглядом. На території є дві зони відпочинку, дитячий майданчик та місце для прогулянки з домашніми улюбленцями. Всередині будинку є консєрж сервіс, диванчики з столиками, кімната для дитячих візочків та гостьовий санвузол. В ЖК є підземний паркінг, де можна придбати паркомісце зі знижкою 10%% від загальної вартості при покупці житла. Будинок має 16 поверхів, два підїзди з двома ліфтами - вантажним та пасажирським.
Поблизу комплексу є магазини, садочки, навчальні заклади, АЗС, ресторани та інші заклади, що забезпечують максимальний комфорт для мешканців, оскільки все необхідне знаходиться в пішій доступності.
Квартира з енергозберігаючими вікнами (двокамерний склопакет, пятикамерний профіль) та вхідними дверима.
Квартира має роздільне планування. У ній є дві великі роздільні кімнати площею 17,5 кв.м. та 17,2 кв.м., простора кухня-вітальня з панорамним виглядом на місто та відкритим балконом з видом на Високий Замок (12,4/24,1/7,1 кв.м.), суміжний санвузол 5,5 кв.м., гардеробна кімната 3,9 кв.м. та коридор 16 кв.м. В квартирі вже проведені внутрішні штукатурні роботи. Можливий огляд наживо.
Квартира обладнана індивідуальним газовим опаленням з встановленим котлом та радіаторами в кімнатах. У кухні, санвузлі та коридорі тепла підлога. Встановлені лічильники. Проведено водопостачання, водовідведення, газ та електрику.
Квартира не мебльована.
Без комісії! Доступне безвідсоткове розтермінування від забудовника. Можливе виконання додаткових робіт за попереднім погодженням.
Квартира розташована в ЖК "Comfort Hill" від Забудовника City Lviv Development. Будинок зданий в 3 кварталі 2025 року. У вартість входить встановлення вхідних броньованих металевих дверей преміум класу, вікон та балконових конструкцій (згідно з проектом), високоякісна стяжка підлоги, облаштування сходової клітки плиткою. ЖК має дизайнерський хол з консьєрж сервісом, диванчиками та кавовим апаратом, кімнату для візочків та загальний санвузол. Прибудинкова територія благоустроєна: є дитячий майданчик, місця для відпочинку та озеленення. Територія закрита з цілодобовою охороною та відеоспостереженням. Є підземний паркінг з укриттям (доступна знижка при купівлі квартири), резервне джерело живлення та швидкісні ліфти (пасажирський та вантажний) в кожному підїзді. Фундамент будинку утеплений мінеральною ватою 150.
Квартира розташована в ближньому центрі міста з чудовими локаціями. Вся необхідна для комфортного життя інфраструктура знаходиться в пішій доступності.
Квартира світла та простора. З кухні-вітальні відкривається панорамний вид на місто. Балкон має вид на Високий Замок. У квартирі є гардеробна кімната. У будинку встановлено пожежну сигналізацію.
Квартира має роздільне планування. У квартирі виконані внутрішні штукатурні роботи, розведено теплу підлогу, встановлено радіатори, залито стяжку та змонтовано якісні вхідні двері. Ремонт під чистову обробку.
Опалення індивідуальне газове. Забудовник встановлює котли в кожну квартиру. У ЖК є резервне джерело безперебійного живлення, яке запускається у разі вимкнення світла.
Можливе розтермінування оплати. Квартира здається в 3 кварталі 2025 року.
Новобудова з підземним та наземним паркінгом, зручним доступом для вашого авто. На першому поверсі будинку буде хол з консєржем, місця для відпочинку, кімната для зберігання візочків і гостьовий санвузол. На території комплексу розташований дитячий майданчик, дві зони для відпочинку і місце для вигулу домашніх улюбленців. Будинок обладнаний пасажирським та вантажним ліфтами. Територія комплексу охороняється.
У безпосередній близькості до комплексу розташовані супермаркети, бізнес-центр, кафе, державні та приватні дитячі садки, школи, університет, аптеки, парки, стоматологія та державна поліклініка. Зручна транспортна розвязка - 10 хв до Оперного театру. ТЦ "Спартак" знаходиться в 5 хвилинах, парк 700-річчя Львова - в 3 хвилинах.
З квартири відкривається вид на місто. Засклений балкон виходить на вул. Під Голоском. Квартира має великий коридор, кухню, кімнату з виходом на балкон, ванну кімнату та гардеробну кімнату. У квартирі встановлені панорамні вікна.
Квартира має роздільне планування. У ній є простора кімната площею 16,3 кв.м, велика кухня з виходом на засклену лоджію площею 17,1/5,1 кв.м, суміжний санвузол площею 4,9 кв.м та коридор площею 4,8 кв.м. В квартирі вже проведені внутрішні штукатурні роботи. Планування включає панорамні вікна.
Квартира має індивідуальне газове опалення. Забудовник встановлює котли. У вартість квартири входить підведення комунікацій до квартири без внутрішньої розводки, встановлення всіх необхідних лічильників.
Можливе безвідсоткове розтермінування. Доступний огляд. Продаж здійснюється без комісії.
Квартира розташована в ЖК "Comfort Hill". Будинок має два підїзди, в кожному з яких по два ліфти - пасажирський та вантажний. Є підземний паркінг, резервне джерело безперебійного живлення та укриття. Територія ЖК закрита під цілодобовим відеонаглядом та охороною.
ЖК розташований у ближньому центрі міста. Поблизу є магазини, садочки, навчальні заклади, АЗС, ресторани та інші заклади.
З квартири відкривається вид на місто та Високий Замок. У вартість квартири входить встановлення вхідних дверей та вікон зі склопакетами, влаштування бетонної стяжки та штукатурки.
Квартира з роздільним санвузлом. Кімната площею 15,8 кв.м. має засклену лоджію площею 5,7 кв.м. Простора кухня площею 19 кв.м. має панорамне вікно. Коридор площею 7,6 кв.м. Санвузол складається з двох кімнат площею 4,3 кв.м. та 2,3 кв.м. Квартира здається під чистову обробку, яка включає внутрішні штукатурні роботи. Встановлені енергозберігаючі вікна з двокамерним склопакетом та пятикамерним профілем, а також вхідні двері.
Квартира обладнана індивідуальним газовим опаленням з встановленим котлом та радіаторами. У кухні, коридорі та санвузлі зроблено розведення теплої підлоги. Підведені комунікації до квартири, встановлені лічильники.
Продаж без комісії. Знижка на паркомісце -10%% при купівлі квартири.
ЖК Comfort Hill від забудовника City Lviv Development. Будинок буде зданий у 3 кварталі 2025 року. Має 16 поверхів та 2 підїзди. У кожному підїзді є по два ліфти: пасажирський та вантажний. ЖК має автономне джерело живлення – безперебійне електропостачання у разі відключення світла. Є підземний паркінг, який також слугуватиме укриттям.
ЖК розташований у ближньому центрі Львова, у Шевченківському районі. В пішій доступності є все необхідне: магазини, школи, садочки, аптеки, АЗС, ресторани.
Вікна квартири виходять на Високий Замок.
Квартира з роздільним санвузлом, гардеробною кімнатою та просторою кімнатою. Кухня має вихід на відкритий балкон. Внутрішні роботи виконані: стіни поштукатурені.
Опалення індивідуальне газове з встановленими котлами, радіаторами та теплою підлогою. Будинок має автономне джерело безперебійного живлення на даху.
Квартира продається без меблів та техніки.
Доступне безвідсоткове розтермінування від забудовника з першим внеском 30%% від загальної вартості. При 100%% оплаті діє знижка -5%%. Для військовослужбовців знижка -10%%.
Будинок цегляний, міжкімнатні перегородки також цегляні. Є два підїзди, в кожному з яких по два ліфти - пасажирський та вантажний. На даху будинку встановлено автономне джерело безперебійного живлення. Будинок має закриту територію з охороною та підземний паркінг з укриттям. На території є зона відпочинку з диванчиками та столиками, гостьовий санвузол, кімната для зберігання дитячих візочків, дитячий майданчик, зона для прогулянок із домашніми улюбленцями та велопарковка. Будинок має консєрж-сервіс.
ЖК розташований у тихому та комфортному районі з розвиненою інфраструктурою. Поблизу є магазини, школи, садочки, парк, озеро. Зручна транспортна розвязка.
Квартира має панорамні вікна з видом на вул. Малоголосківську, що наповнюють її світлом у будь-яку пору дня.
Квартира з правильним плануванням. Кімната має площу 20,4 кв.м. і засклену лоджію площею 5,7 кв.м., яку можна приєднати до кімнати. Кухня простора, площею 19 кв.м., з великим панорамним вікном, що виходить у двір. Коридор площею 5,5 кв.м. розділяє кухню та кімнату. Великий суміжний санвузол площею 4,2 кв.м. можна розділити на окремі ванну кімнату та санвузол. В квартирі проведені внутрішні штукатурні роботи, залита стяжка, проведено розведення теплої підлоги в кухні, санвузлі та коридорі.
Встановлені лічильники, котел, радіатори в кімнатах. Проведено комунікації до квартири. Є центральна каналізація, електрика, газ, центральний водопровід.
Квартира не мебльована.
Квартира продається без комісії. Доступне розтермінування від забудовника з першим внеском 30%% від загальної вартості. Здача запланована на 3 квартал 2025 року.
ЖК "Comfort Hill" від забудовника City Lviv Development. Будинок має 2 підїзди, по 2 ліфти (пасажирський та вантажний) у кожному підїзді. На даху встановлено автономне джерело безперебійного живлення, яке забезпечить електроенергією весь будинок у разі відключення світла. Є підземний паркінг, де можна придбати паркомісце в розтермінування. Для покупців квартири діє знижка 10%% від вартості паркомісця. Підземний паркінг також слугує укриттям. Територія ЖК оснащена дитячим майданчиком, двома відпочинковими зонами, місцем для вигулу домашніх улюбленців та велопарковкою. Територія закрита під цілодобовим відеонаглядом та охороною. В ЖК є консьєрж-сервіс з комфортними диванчиками, гостьовий санвузол та місце для дитячих візочків.
Квартира розташована в ближньому центрі Львова.
Квартира має панорамні вікна та чудовий краєвид. З кімнати відкривається вид на все місто і на Високий Замок. Забудовник встановлює вхідні двері.
Квартира правильної квадратної форми із роздільним санвузлом і панорамними вікнами. Планування роздільне. Внутрішні штукатурні роботи вже виконано, розведено теплу підлогу, підведено електрику та інтернет, встановлено радіатори та газовий котел, залито стяжку й змонтовано якісні вхідні двері. Квартира під чистову обробку.
Є індивідуальне газове опалення, центральна каналізація, електрика, газ та центральний водопровід.
Квартира не мебльована.
Здача запланована на 4 квартал 2025 року. При 100%% оплаті доступна знижка 5%%, для військовослужбовців при 100%% оплаті знижка становить 10%%.
ЖК Comfort Hill - новобудова, житловий фонд від 2021 року. У 2-му підїзді є два ліфти - пасажирський і вантажний. Є підземний і наземний паркінг, просторий хол із консьєржем, зоною відпочинку, кімнатою для дитячих візочків і гостьовим санвузлом. Наявне резервне джерело безперебійного живлення, закрита територія з дитячим майданчиком, двома зонами відпочинку та місцем для вигулу домашніх улюбленців.
У безпосередній близькості розташовані супермаркети, бізнес-центр, кафе, державні та приватні дитячі садки, школи, університет, аптеки, парки, стоматологія та державна поліклініка. Зручна транспортна розв’язка - лише 10 хвилин до Оперного театру. Поблизу знаходяться ТЦ "Спартак" (5 хв) і парк 700-річчя Львова (3 хв).
Квартира має правильну квадратну форму, роздільний санвузол і панорамні вікна. Є балкон.
Квартира з роздільним плануванням має великий коридор, кухню-вітальню з панорамними вікнами та виходом на відкритий балкон, дві окремі кімнати, гардеробну та суміжний санвузол. Можливе перепланування. Квартира здається під чистову обробку.
Квартира не мебльована.
Без комісії. Термін здачі - 3 квартал 2025 року.
Квартира розташована у ЖК "Comfort Hill" від забудовника City Lviv Development. Це житловий комплекс комфорт класу з закритою територією, відеонаглядом, паркуванням, підземним паркінгом, який слугуватиме укриттям, та резервним джерелом живлення. На території комплексу є зона відпочинку, дитячий майданчик, місце для вигулу домашніх улюбленців. ЖК має консьєржа та охорону.
Квартира розташована в тихому та спокійному районі з пішою доступністю до центру. Поблизу є вся необхідна інфраструктура.
З вікон квартири відкривається вид на місто. Встановлені вхідні двері та вікна зі склопакетами. Виконано бетонну стяжку та штукатурку. Підведення комунікацій до квартири та встановлення лічильників входить у вартість. Можливе виконання додаткових робіт за попереднім погодженням.
Квартира з чорновим ремонтом, виконано штукатурні роботи, залита стяжка, розведено теплу підлогу в кухні, коридорі та санвузлі. Встановлені вхідні двері, газовий котел, батарея у кімнаті. Заведено електрику та інтернет до квартири. Планування роздільне, санвузол суміжний. Квартира має кухню з виходом на терасу (15,5 кв.м. + тераса 13 кв.м.), кімнату (15,6 кв.м.), санвузол (3,7 кв.м.) та коридор (4,6 кв.м.).
Система опалення індивідуальне газове. Підключено центральну каналізацію, електрику, вивіз відходів, газ та центральний водопровід.
При 100%% оплаті надається знижка 5%%.
Цегляний будинок з цегляними перегородками, побудований у 2021 році. Є два ліфти: пасажирський і вантажний. У будинку є укриття та резервне живлення у випадку вимкнення світла. Територія ЖК закрита, під цілодобовим відеонаглядом і охороною. Є дитячий майданчик, дві зони відпочинку, місце для вигулу тварин, велопарковка та підземний паркінг з обмеженою кількістю місць.
Квартира розташована в ближньому центрі Львова. У пішій доступності є магазини, поліклініка, стоматологія, школи, садочки, АЗС, ресторан, зупинка транспорту.
Квартира має відкриту терасу, яка є ідеальним місцем для відпочинку на свіжому повітрі, ранкової кави або вечірніх посиденьок. Тераса дозволяє створити власну лаунж-зону з меблями, квітами, грилем чи зоною барбекю. Велика кількість денного світла додає затишку квартирі.
Квартира має роздільне планування. Санвузол суміжний. Квартира знаходиться під чистову обробку. Забудовник проводить штукатурні роботи, заливає стяжку, проводить комунікації до квартири, встановлює двері та лічильники.
Квартира продається без меблів.
Продаж без комісії. Доступне безвідсоткове розтермінування.
Будинок комфорт класу з сучасним плануванням та високою якістю будівництва. Монолітно-каркасна основа з цегляними стінами та утепленням мінеральною ватою. Будинок газифікований, забудовник встановлює котли у кожну квартиру. В будинку енергозберігаючі вікна з пятикамерними склопакетами. Наявність підземного паркінгу, кількість місць обмежена. У будинку є укриття. На території ЖК є місце для відпочинку, для вигулу домашніх улюбленців, дитячий майданчик. Територія закрита, цілодобовий відеонагляд та охорона території. В будинку по два ліфти в кожному підїзді - вантажний та звичайний, також є резервне джерело безперебійного живлення.
Будинок знаходиться в ближньому центрі, всього 10 хв на авто до центру. Поруч є всі необхідні комунікації: школа, садочок, нова та укр. пошта, аптеки, АЗС, лікарня, церква, супермаркети та заклади харчування. Всього за 10 хв їзди на авто ТЦ "Спартак", ТЦ "Форум" і Краківський ринок.
Квартира має відкритий балкон площею 2.2 кв.м., що виходить у внутрішній дворик, а також засклену лоджію площею 5.2 кв.м., що виходить на центр міста. З лоджії відкривається вид на Високий Замок. Кухня площею 20.7 кв.м. з відкритим балконом, простора кімната площею 18.7 кв.м. з заскленою лоджією, суміжний санвузол площею 4.4 кв.м. та великий коридор площею 9.1 кв.м. Житлова площа квартири становить 18.7 кв.м.
Квартира має роздільне планування. Є простора кімната з панорамними вікнами, кухня з виходом на відкритий балкон, просторий коридор і гардеробна кімната. Санвузол суміжний. Квартира здається під чистову обробку.
Встановлено газовий котел та радіатори в кімнаті. Є розведення теплої підлоги в кухні, коридорі і санвузлі. У будинку є укриття та резервне джерело безперебійного живлення.
Квартира не мебльована.
При купівлі квартири надається знижка на паркомісце (-10%% від вартості).
ЖК "Comfort Hill" - це сучасний житловий комплекс, здача якого запланована на третій квартал 2025 року. Територія будинку закрита, з цілодобовим відеонаглядом та охороною. Є підземний паркінг, гостьовий паркінг, ліфт пасажирський і вантажний. На території ЖК встановлений сучасний дитячий майданчик, зони відпочинку, місце для вигулу домашніх улюбленців та велопаркова.
ЖК розташований у новому активно розвивається районі Львова. До центру міста 8 хвилин на авто. В пішій доступності знаходяться школи, садочки, поліклініка, церква, ТРЦ, супермаркет, спортивні зали, парк, озеро та зупинка громадського транспорту.
Квартира має енергозберігаючі вікна з 5-камерними склопакетами та вхідні двері. В будинку є госп. приміщення, комора.
Квартира має роздільне планування. Вона включає великий коридор 9,1 кв.м, санвузол 4 кв.м, кухню з виглядом на місто 11,8 кв.м та простору кімнату з панорамними вікнами та виходом на відкритий балкон 27,3/5,7 кв.м. Вже проведені внутрішні штукатурні роботи, проведена тепла підлога і залита стяжка.
Встановлені всі необхідні лічильники. Підведено комунікації до квартири. В кімнаті встановлені радіатори, а в кухні, санвузлі та коридорі проведена тепла підлога.
Без комісії. Доступне безвідсоткове розтермінування від Забудовника. При купівлі квартири в даному ЖК діє знижка на купівлю паркомісця в підземному паркінгу. Здача 3 квартал 2025 року.
Будинок має два підїзди, в кожному з яких по два ліфти - пасажирський та вантажний. Є підземний паркінг, який також слугуватиме як укриття. На даху будинку встановлено резервне джерело безперебійного живлення для забезпечення електроенергією у разі її відсутності.
Квартира розташована в Шевченківському районі Львова, ближній центр. Хороша транспортна розвязка. Поруч є все необхідне: школа, садочки, парк, ТРЦ Спартак, продуктові магазини, салони краси, піцерія, стоматологія тощо.
Вікна квартири виходять на Високий Замок та місто. Квартиру можна перепланувати в маленьку двокімнатну квартиру. Встановлені вхідні двері та вікна зі склопакетами.