Продаж квартир в ЖК Q-smart
4 оголошення по 2 квартирах
1.3 млн грн
39 366 грн/м²
вулиця Оноре де Бальзака, Будинок 1
Скопіювати посилання
Поскаржитися
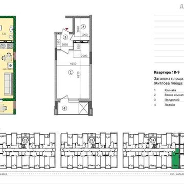
В продажі квартира на початку Троєщини в ЖК Q-SMART. Перший поверх високий, тобто по факту Ви отмуєте другий поверх. Досить зручне планування квартири-студії. При вході Вас буде зустрічати досить великий передпокій, як для цієї квадратури де можна зробити гардеробну. Зліва санвузол також хороших розмірів. Кімната квадратної форми з окремою кухонною зоною. Є французька лоджія майже 3 кв. Щодо самого ЖК, то він побудований по монолітно-каркосаною системою, стіни з газоблоку. В комплексі буде своє автомномне опалення. Незважаючи на невисоку поверхність будинків будинки обладнані ліфтом. На разі ведуться роботи по підключенням комунікацій. Єдиний комплекс де є свій підземний паркінг, доступ до якого є прямо з підїзду. В квартирах вже стоять радіатори, виведено електрику. Від будинків зручний виїзд на Північний міст, до центру можна доїхати до 30 хвилин. Також поруч зупинки транспорту. Біля входу квартири є достатньо місяця для особистих речей, так як на першому поверсі всього три квартири. Дзвоніть, більше інформації по телефону.
ID: 90986
1 кімната
з ремонтом
32 / 14 / 6 м²
поверх 1 з 6
1.3 млн грн
35 238 грн/м²
вулиця Оноре де Бальзака, Будинок 2
Скопіювати посилання
Поскаржитися
БЕЗ КОМІСІЇ% В продажу квартира на початку Троєщини в ЖК Q-SMART. Досить зручне планування квартири-студії. При вході Вас буде зустрічати досить великий передпокій, як для цієї квадратури де можна зробити гардеробну. Кімната квадратної форми з окремою кухонною зоною. Є французька лоджія майже . Щодо самого ЖК, то він побудований по монолітно-каркосаною системою, стіни з газоблоку. В комплексі буде своє автомномне опалення. Незважаючи на невисоку поверхність будинків будинки обладнані ліфтом. На разі ведуться роботи по підключенням комунікацій. Єдиний комплекс де є свій підземний паркінг, доступ до якого є прямо з підїзду. В квартирах вже стоять радіатори, виведено електрику. Від будинків зручний виїзд на Північний міст, до центру можна доїхати до 30 хвилин. Також поруч зупинки транспорту. Біля входу квартири є достатньо місяця для особистих речей, так як на першому поверсі всього три квартири. Дзвоніть, більше інформації по телефону.
ID: 92562
1 кімната
з ремонтом
37 / 20 / 10 м²
поверх 5 з 6
Задайте ціну для пошуку
Переглядайте лише ті об'єкти, що вам цікаві.
грн
грн