В продажі квартира на початку Троєщини в ЖК Q-SMART. Перший поверх високий, тобто по факту Ви отмуєте другий поверх. Досить зручне планування квартири-студії. При вході Вас буде зустрічати досить великий передпокій, як для цієї квадратури де можна зробити гардеробну. Зліва санвузол також хороших розмірів. Кімната квадратної форми з окремою кухонною зоною. Є французька лоджія майже 3 кв. Щодо самого ЖК, то він побудований по монолітно-каркосаною системою, стіни з газоблоку. В комплексі буде своє автомномне опалення. Незважаючи на невисоку поверхність будинків будинки обладнані ліфтом. На разі ведуться роботи по підключенням комунікацій. Єдиний комплекс де є свій підземний паркінг, доступ до якого є прямо з підїзду. В квартирах вже стоять радіатори, виведено електрику. Від будинків зручний виїзд на Північний міст, до центру можна доїхати до 30 хвилин. Також поруч зупинки транспорту. Біля входу квартири є достатньо місяця для особистих речей, так як на першому поверсі всього три квартири. Дзвоніть, більше інформації по телевізору. Пропозиція без комісії для покупця
Продаж здійснюється за договором та ціною, узгодженою з власником, без комісії для покупця.
ID: 90986
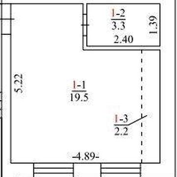
Планування квартири - студія з суміжним санвузлом. Ремонт після будівельників. Є балкон та лоджія.
Встановлені лічильники тепла, холодної води та електроенергії. Квартира обладнана бойлером. Вода та каналізація міські. Є автономна котельня.
Квартира не мебльована.
Продаж квартири по переуступці. Комісія агенству врахована.
Комплекс з трьох будинків з малоповерховою забудовою. Будинки завершено, ведуться роботи по запуску комунікацій та облаштування прибудинкової території, орієнтовний термін здачі 4 квартал 2025р. Державний замовник будівництва - комунальне підприємство Київської міської державної адміністрації "Київське інвестиційне агенство". Є своя територія та власний підземний паркінг. Встановлені вхідні двері та радіатори. Наявний вантажопасажирський ліфт.
Поблизу розташовані зупинки швидкісного трамвая, громадського транспорту та маршрутних таксі. Найближча станція метро - Почайна. У пішій доступності знаходяться школи, дитячі садки, поліклініка, торговельні центри та річка Десенка.
Квартира має металопластикові вікна з видом на масив Троєщина.