Киев
Львов
Одесса
Винница
Днепр
Житомир
Запорожье
Ивано-Франковск
Кропивницкий
Луцк
Николаев
Полтава
Ровно
Сумы
Тернополь
Ужгород
Харьков
Херсон
Хмельницкий
Черкассы
Чернигов
Черновцы
Да
Изменить город
Главная
Новостройки
Продажа
Аренда
Мій ЛУН
Девелоперам: реклама на ЛУН
Риелторам: разместить объявление
Собственникам: размещение через приложение ЛУН
Для СМИ
FAQ
Вакансии
Команда поддержки
грн
$
Другие проекты
от
грн
$
Безбарьерность и
комфорт городского
пространства
Тренды и инсайты от
экспертов недвижимости
Профессиональная риелторская сеть
Приложение для аренды квартир на 3D карте
Недвижимость
Грузии
Сообщество девелоперов
жилых комплексов
Мы в соцсетях
Скачать в
Скачать в
ЖК Зоряні
ЖК Зоряні
О проекте
Планировки
Мониторинг строительства
Документы
Контакты
Новости
2-комнатные квартиры от
2.58 млн грн
61 тыс. $
54 850 — 69 600 грн за м²
$ 1 300 — 1 650 за м²
2 комнаты
47.82 м²
Этажи: 13
Дом 1 (Секция 8)
4 кв. 2026
Строится
54 850 — 69 600 грн за м²
$ 1 300 — 1 650 за м²
2 комнаты
49.38 м²
Этажи: 12
Дом 1 (Секция 8)
4 кв. 2026
Строится
54 850 — 69 600 грн за м²
$ 1 300 — 1 650 за м²
2 комнаты
51.4 м²
Этажи: 6
Дом 1 (Секция 5)
4 кв. 2026
Строится
54 850 — 69 600 грн за м²
$ 1 300 — 1 650 за м²
2 комнаты
55.85 м²
Этажи: 6
Дом 1 (Секция 1)
4 кв. 2026
Строится
54 850 — 69 600 грн за м²
$ 1 300 — 1 650 за м²
2 комнаты
55.88 м²
Этажи: 2-5
Дом 1 (Секция 5)
4 кв. 2026
Строится
54 850 — 69 600 грн за м²
$ 1 300 — 1 650 за м²
2 комнаты
58.66 м²
Этажи: 2
Дом 1 (Секция 6)
4 кв. 2026
Строится
54 850 — 69 600 грн за м²
$ 1 300 — 1 650 за м²
2 комнаты
59.12 м²
Этажи: 3
Дом 1 (Секция 7)
4 кв. 2026
Строится
54 850 — 69 600 грн за м²
$ 1 300 — 1 650 за м²
2 комнаты
59.13 м²
Этажи: 2
Дом 1 (Секция 7)
4 кв. 2026
Строится
54 850 — 69 600 грн за м²
$ 1 300 — 1 650 за м²
2 комнаты
59.17 м²
Этажи: 7
Дом 1 (Секция 1)
4 кв. 2026
Строится
54 850 — 69 600 грн за м²
$ 1 300 — 1 650 за м²
2 комнаты
59.39 м²
Этажи: 8
Дом 1 (Секция 1)
4 кв. 2026
Строится
54 850 — 69 600 грн за м²
$ 1 300 — 1 650 за м²
2 комнаты
59.59 м²
Этажи: 3, 5
Дом 1 (Секция 5)
4 кв. 2026
Строится
54 850 — 69 600 грн за м²
$ 1 300 — 1 650 за м²
2 комнаты
59.8 м²
Этажи: 3
Дом 1 (Секция 3)
4 кв. 2026
Строится
54 850 — 69 600 грн за м²
$ 1 300 — 1 650 за м²
2 комнаты
60.44 м²
Этажи: 2, 4
Дом 1 (Секция 5)
4 кв. 2026
Строится
54 850 — 69 600 грн за м²
$ 1 300 — 1 650 за м²
2 комнаты
60.54 м²
Этажи: 6
Дом 1 (Секция 5)
4 кв. 2026
Строится
54 850 — 69 600 грн за м²
$ 1 300 — 1 650 за м²
2 комнаты
60.6 м²
Этажи: 2, 4
Дом 1 (Секция 3)
4 кв. 2026
Строится
54 850 — 69 600 грн за м²
$ 1 300 — 1 650 за м²
2 комнаты
60.79 м²
Этажи: 8
Дом 1 (Секция 6)
4 кв. 2026
Строится
54 850 — 69 600 грн за м²
$ 1 300 — 1 650 за м²
2 комнаты
61.49 м²
Этажи: 5
Дом 1 (Секция 7)
4 кв. 2026
Строится
54 850 — 69 600 грн за м²
$ 1 300 — 1 650 за м²
2 комнаты
61.78 м²
Этажи: 2, 4, 6
Дом 1 (Секция 2)
4 кв. 2026
Строится
54 850 — 69 600 грн за м²
$ 1 300 — 1 650 за м²
2 комнаты
62.18 м²
Этажи: 7
Дом 1 (Секция 6)
4 кв. 2026
Строится
54 850 — 69 600 грн за м²
$ 1 300 — 1 650 за м²
2 комнаты
62.19 м²
Этажи: 6
Дом 1 (Секция 5)
4 кв. 2026
Строится
54 850 — 69 600 грн за м²
$ 1 300 — 1 650 за м²
2 комнаты
62.34 м²
Этажи: 7
Дом 1 (Секция 1)
4 кв. 2026
Строится
54 850 — 69 600 грн за м²
$ 1 300 — 1 650 за м²
2 комнаты
62.36 м²
Этажи: 4
Дом 1 (Секция 7)
4 кв. 2026
Строится
54 850 — 69 600 грн за м²
$ 1 300 — 1 650 за м²
2 комнаты
62.36 м²
Этажи: 6
Дом 1 (Секция 7)
4 кв. 2026
Строится
54 850 — 69 600 грн за м²
$ 1 300 — 1 650 за м²
2 комнаты
62.63 м²
Этажи: 3, 5
Дом 1 (Секция 2)
4 кв. 2026
Строится
54 850 — 69 600 грн за м²
$ 1 300 — 1 650 за м²
2 комнаты
63.05 м²
Этажи: 7
Дом 1 (Секция 7)
4 кв. 2026
Строится
54 850 — 69 600 грн за м²
$ 1 300 — 1 650 за м²
2 комнаты
63.09 м²
Этажи: 3, 5
Дом 1 (Секция 2)
4 кв. 2026
Строится
54 850 — 69 600 грн за м²
$ 1 300 — 1 650 за м²
2 комнаты
63.18 м²
Этажи: 7
Дом 1 (Секция 7)
4 кв. 2026
Строится
54 850 — 69 600 грн за м²
$ 1 300 — 1 650 за м²
2 комнаты
63.21 м²
Этажи: 2, 4, 6
Дом 1 (Секция 7)
4 кв. 2026
Строится
54 850 — 69 600 грн за м²
$ 1 300 — 1 650 за м²
2 комнаты
63.37 м²
Этажи: 7
Дом 1 (Секция 2)
4 кв. 2026
Строится
54 850 — 69 600 грн за м²
$ 1 300 — 1 650 за м²
2 комнаты
63.82 м²
Этажи: 6
Дом 1 (Секция 4)
4 кв. 2026
Строится
54 850 — 69 600 грн за м²
$ 1 300 — 1 650 за м²
2 комнаты
63.88 м²
Этажи: 6
Дом 1 (Секция 2)
4 кв. 2026
Строится
54 850 — 69 600 грн за м²
$ 1 300 — 1 650 за м²
2 комнаты
63.89 м²
Этажи: 2, 4
Дом 1 (Секция 2)
4 кв. 2026
Строится
54 850 — 69 600 грн за м²
$ 1 300 — 1 650 за м²
2 комнаты
64.05 м²
Этажи: 2
Дом 1 (Секция 6)
4 кв. 2026
Строится
54 850 — 69 600 грн за м²
$ 1 300 — 1 650 за м²
2 комнаты
64.05 м²
Этажи: 3-6
Дом 1 (Секция 6)
4 кв. 2026
Строится
54 850 — 69 600 грн за м²
$ 1 300 — 1 650 за м²
2 комнаты
64.06 м²
Этажи: 3, 5
Дом 1 (Секция 7)
4 кв. 2026
Строится
54 850 — 69 600 грн за м²
$ 1 300 — 1 650 за м²
2 комнаты
64.12 м²
Этажи: 8-9
Дом 1 (Секция 8)
4 кв. 2026
Строится
54 850 — 69 600 грн за м²
$ 1 300 — 1 650 за м²
2 комнаты
64.13 м²
Этажи: 11
Дом 1 (Секция 8)
4 кв. 2026
Строится
54 850 — 69 600 грн за м²
$ 1 300 — 1 650 за м²
2 комнаты
64.14 м²
Этажи: 10
Дом 1 (Секция 8)
4 кв. 2026
Строится
54 850 — 69 600 грн за м²
$ 1 300 — 1 650 за м²
2 комнаты
64.29 м²
Этажи: 7
Дом 1 (Секция 8)
4 кв. 2026
Строится
54 850 — 69 600 грн за м²
$ 1 300 — 1 650 за м²
2 комнаты
64.55 м²
Этажи: 5-6
Дом 1 (Секция 8)
4 кв. 2026
Строится
54 850 — 69 600 грн за м²
$ 1 300 — 1 650 за м²
2 комнаты
64.7 м²
Этажи: 6
Дом 1 (Секция 1)
4 кв. 2026
Строится
54 850 — 69 600 грн за м²
$ 1 300 — 1 650 за м²
2 комнаты
65.33 м²
Этажи: 7
Дом 1 (Секция 3)
4 кв. 2026
Строится
54 850 — 69 600 грн за м²
$ 1 300 — 1 650 за м²
2 комнаты
65.45 м²
Этажи: 8
Дом 1 (Секция 6)
4 кв. 2026
Строится
54 850 — 69 600 грн за м²
$ 1 300 — 1 650 за м²
2 комнаты
65.7 м²
Этажи: 7
Дом 1 (Секция 4)
4 кв. 2026
Строится
54 850 — 69 600 грн за м²
$ 1 300 — 1 650 за м²
2 комнаты
66.04 м²
Этажи: 4, 6
Дом 1 (Секция 3)
4 кв. 2026
Строится
54 850 — 69 600 грн за м²
$ 1 300 — 1 650 за м²
2 комнаты
66.11 м²
Этажи: 3, 5
Дом 1 (Секция 4)
4 кв. 2026
Строится
54 850 — 69 600 грн за м²
$ 1 300 — 1 650 за м²
2 комнаты
66.47 м²
Этажи: 7-8
Дом 1 (Секция 2)
4 кв. 2026
Строится
54 850 — 69 600 грн за м²
$ 1 300 — 1 650 за м²
2 комнаты
66.66 м²
Этажи: 6
Дом 1 (Секция 3)
4 кв. 2026
Строится
54 850 — 69 600 грн за м²
$ 1 300 — 1 650 за м²
2 комнаты
66.77 м²
Этажи: 6
Дом 1 (Секция 4)
4 кв. 2026
Строится
54 850 — 69 600 грн за м²
$ 1 300 — 1 650 за м²
2 комнаты
66.82 м²
Этажи: 2
Дом 1 (Секция 4)
4 кв. 2026
Строится
54 850 — 69 600 грн за м²
$ 1 300 — 1 650 за м²
2 комнаты
66.88 м²
Этажи: 3, 5
Дом 1 (Секция 3)
4 кв. 2026
Строится
54 850 — 69 600 грн за м²
$ 1 300 — 1 650 за м²
2 комнаты
66.91 м²
Этажи: 4
Дом 1 (Секция 4)
4 кв. 2026
Строится
54 850 — 69 600 грн за м²
$ 1 300 — 1 650 за м²
2 комнаты
67.05 м²
Этажи: 3-4
Дом 1 (Секция 3)
4 кв. 2026
Строится
54 850 — 69 600 грн за м²
$ 1 300 — 1 650 за м²
2 комнаты
68.12 м²
Этажи: 8
Дом 1 (Секция 7)
4 кв. 2026
Строится
54 850 — 69 600 грн за м²
$ 1 300 — 1 650 за м²
2 комнаты
68.14 м²
Этажи: 2, 4
Дом 1 (Секция 5)
4 кв. 2026
Строится
54 850 — 69 600 грн за м²
$ 1 300 — 1 650 за м²
2 комнаты
68.49 м²
Этажи: 3
Дом 1 (Секция 4)
4 кв. 2026
Строится
54 850 — 69 600 грн за м²
$ 1 300 — 1 650 за м²
2 комнаты
68.52 м²
Этажи: 3
Дом 1 (Секция 6)
4 кв. 2026
Строится
54 850 — 69 600 грн за м²
$ 1 300 — 1 650 за м²
2 комнаты
68.52 м²
Этажи: 5
Дом 1 (Секция 6)
4 кв. 2026
Строится
54 850 — 69 600 грн за м²
$ 1 300 — 1 650 за м²
2 комнаты
68.58 м²
Этажи: 5
Дом 1 (Секция 4)
4 кв. 2026
Строится
54 850 — 69 600 грн за м²
$ 1 300 — 1 650 за м²
2 комнаты
68.67 м²
Этажи: 8
Дом 1 (Секция 7)
4 кв. 2026
Строится
54 850 — 69 600 грн за м²
$ 1 300 — 1 650 за м²
2 комнаты
68.88 м²
Этажи: 8
Дом 1 (Секция 3)
4 кв. 2026
Строится
54 850 — 69 600 грн за м²
$ 1 300 — 1 650 за м²
2 комнаты
68.99 м²
Этажи: 3, 5
Дом 1 (Секция 5)
4 кв. 2026
Строится
54 850 — 69 600 грн за м²
$ 1 300 — 1 650 за м²
2 комнаты
69.37 м²
Этажи: 2, 4, 6
Дом 1 (Секция 6)
4 кв. 2026
Строится
54 850 — 69 600 грн за м²
$ 1 300 — 1 650 за м²
2 комнаты
69.7 м²
Этажи: 2, 4
Дом 1 (Секция 4)
4 кв. 2026
Строится
54 850 — 69 600 грн за м²
$ 1 300 — 1 650 за м²
2 комнаты
69.79 м²
Этажи: 2-4, 6
Дом 1 (Секция 4)
4 кв. 2026
Строится
54 850 — 69 600 грн за м²
$ 1 300 — 1 650 за м²
2 комнаты
69.84 м²
Этажи: 5
Дом 1 (Секция 4)
4 кв. 2026
Строится
54 850 — 69 600 грн за м²
$ 1 300 — 1 650 за м²
2 комнаты
69.93 м²
Этажи: 7
Дом 1 (Секция 4)
4 кв. 2026
Строится
54 850 — 69 600 грн за м²
$ 1 300 — 1 650 за м²
2 комнаты
70.15 м²
Этажи: 7
Дом 1 (Секция 3)
4 кв. 2026
Строится
54 850 — 69 600 грн за м²
$ 1 300 — 1 650 за м²
2 комнаты
70.17 м²
Этажи: 2
Дом 1 (Секция 3)
4 кв. 2026
Строится
54 850 — 69 600 грн за м²
$ 1 300 — 1 650 за м²
2 комнаты
70.17 м²
Этажи: 3-4
Дом 1 (Секция 3)
4 кв. 2026
Строится
54 850 — 69 600 грн за м²
$ 1 300 — 1 650 за м²
2 комнаты
70.24 м²
Этажи: 8
Дом 1 (Секция 3)
4 кв. 2026
Строится
54 850 — 69 600 грн за м²
$ 1 300 — 1 650 за м²
2 комнаты
70.76 м²
Этажи: 2
Дом 1 (Секция 6)
4 кв. 2026
Строится
54 850 — 69 600 грн за м²
$ 1 300 — 1 650 за м²
2 комнаты
70.76 м²
Этажи: 3
Дом 1 (Секция 6)
4 кв. 2026
Строится
54 850 — 69 600 грн за м²
$ 1 300 — 1 650 за м²
2 комнаты
71.66 м²
Этажи: 7
Дом 1 (Секция 7)
4 кв. 2026
Строится
54 850 — 69 600 грн за м²
$ 1 300 — 1 650 за м²
2 комнаты
72.31 м²
Этажи: 8
Дом 1 (Секция 1)
4 кв. 2026
Строится
54 850 — 69 600 грн за м²
$ 1 300 — 1 650 за м²
2 комнаты
72.73 м²
Этажи: 7
Дом 1 (Секция 7)
4 кв. 2026
Строится
54 850 — 69 600 грн за м²
$ 1 300 — 1 650 за м²
2 комнаты
75.04 м²
Этажи: 7
Дом 1 (Секция 3)
4 кв. 2026
Строится
54 850 — 69 600 грн за м²
$ 1 300 — 1 650 за м²
2 комнаты
75.35 м²
Этажи: 6
Дом 1 (Секция 3)
4 кв. 2026
Строится
54 850 — 69 600 грн за м²
$ 1 300 — 1 650 за м²
2 комнаты
75.64 м²
Этажи: 2-4
Дом 1 (Секция 8)
4 кв. 2026
Строится
54 850 — 69 600 грн за м²
$ 1 300 — 1 650 за м²
2 комнаты
77.03 м²
Этажи: 5-6
Дом 1 (Секция 8)
4 кв. 2026
Строится
54 850 — 69 600 грн за м²
$ 1 300 — 1 650 за м²
2 комнаты
77.48 м²
Этажи: 11
Дом 1 (Секция 8)
4 кв. 2026
Строится
54 850 — 69 600 грн за м²
$ 1 300 — 1 650 за м²
2 комнаты
78.69 м²
Этажи: 10
Дом 1 (Секция 8)
4 кв. 2026
Строится
54 850 — 69 600 грн за м²
$ 1 300 — 1 650 за м²
2 комнаты
79.86 м²
Этажи: 8
Дом 1 (Секция 3)
4 кв. 2026
Строится
Контакты отдела продаж
Львов, пл. Старый Рынок, 8
Отдел продаж
Пн - Пт:
09:00 - 19:00
Сб:
10:00 - 15:00
Вс:
выходной
Записаться на визит
Показать
Написать
Квартиры в новостройках Львова
Новостройки Железнодорожный район
Новостройки бизнес-класса
Строительная компания Интергал-Буд
ЖК Зоряні
Планировки
Самые важные обновления ЖК Зоряні
Акции, скидки и спецпредложения
Новые фотографии со строительства, аэрооблеты
Обновления цен от отдела продаж
Обновление документов в реестрах
Обновления в телеграм
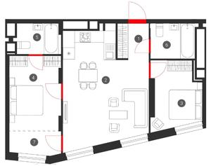
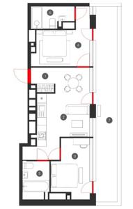
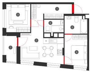
Планировка
Це російськомовна версія
Інколи пошукові системи вважають, що користувачам потрібна саме вона, але завдяки цьому повідомленню ви можете змінити мову в один клік
Російською
Українською