Київ
Львів
Одеса
Вінниця
Дніпро
Житомир
Запоріжжя
Івано-Франківськ
Кропивницький
Луцьк
Миколаїв
Полтава
Рівне
Суми
Тернопіль
Ужгород
Харків
Херсон
Хмельницький
Черкаси
Чернівці
Чернігів
Так
Змінити місто
Головна
Новобудови
Продаж
Оренда
Мій ЛУН
Девелоперам: реклама на ЛУН
Рієлторам: розмістити оголошення
Власникам: розмістити оголошення через додаток ЛУН
Для ЗМІ
FAQ
Вакансії
Команда підтримки
Ми в соцмережах
Завантажити в
Завантажити в
Iнші проєкти
від
дослідження
міського простору
рієлторам: розміщення
оголошень на ЛУН
iOS App оренди
квартир
квартири у світі
від забудовника
спільнота девелоперів
житлових проєктів
подобова оренда
КМ Грін-Хілс
КМ Грін-Хілс
Про проєкт
Типові проєкти
Новини
КМ Грін-Хілс — Тип 2
Ціна проєкту
— 3.93 млн грн
— 94 000 $
Збудований:
від 3.93 млн грн
від 94 000 $
Будується:
3.93 млн грн
94 000 $
128.57 м²
Квадрекс
3 спальні
2 поверхи
Планування
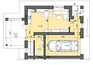
1 поверх, гараж
2 поверх
КМ Грін-Хілс
+38 067 ... Показати
Інші проєкти цього КМ
є збудовані
Тип 1
3.93 млн грн
94 000 $
3 спальні
128.57 м²
Квадрекс
2 поверхи
Найважливіші оновлення КМ Грін-Хілс
Акції, знижки та спецпропозиції
Статус будівництва, аерообльоти
Оновлення цін від відділу продажу
Нові типові проєкти
Щоденні оновлення в телеграм