Киев
Львов
Одесса
Винница
Днепр
Житомир
Запорожье
Ивано-Франковск
Кропивницкий
Луцк
Николаев
Полтава
Ровно
Сумы
Тернополь
Ужгород
Харьков
Херсон
Хмельницкий
Черкассы
Чернигов
Черновцы
Да
Изменить город
Главная
Новостройки
Продажа
Аренда
Мій ЛУН
Девелоперам: реклама на ЛУН
Риелторам: разместить объявление
Собственникам: разместить объявление через приложение ЛУН
Для СМИ
FAQ
Вакансии
Команда поддержки
Мы в соцсетях
Скачать в
Скачать в
Другие проекты
от
исследования
городского пространства
риелторам: размещение
объявлений на ЛУН
iOS App аренды
квартир
квартиры в мире
от застройщика
сообщество девелоперов
жилых комплексов
посуточная аренда
КГ Грин-Хилс
КГ Грин-Хилс
О проекте
Типовые проекты
Новости
КГ Грин-Хилс — Тип 1
Цена проекта
— 3.93 млн грн
— 94 000 $
Построен:
от 3.93 млн грн
от 94 000 $
Строится:
3.93 млн грн
94 000 $
128.57 м²
Квадрекс
3 спальни
2 этажа
Планировки
1 этаж, гараж
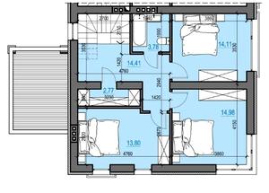
2 этаж
КГ Грин-Хилс
+38 067 ... Показать
Другие проекты этого КГ
есть построенные
Тип 2
3.93 млн грн
94 000 $
3 спальни
128.57 м²
Квадрекс
2 этажа
Самые важные обновления КГ Грин-Хилс
Акции, скидки и спецпредложения
Статус строительства, аэрооблеты
Обновления цен от отдела продаж
Новые типовые проекты
Ежедневные обновления в телеграм
Це російськомовна версія
Інколи пошукові системи вважають, що користувачам потрібна саме вона, але завдяки цьому повідомленню ви можете змінити мову в один клік
Російською
Українською