2-комнатные квартиры от 2.74 млн грн
41 550 — 42 850 грн за м²
2 комнаты
66.04 м²
Этажи: 2-4
Дом 3
4 кв. 2026
Подготовительные работы
41 550 — 42 850 грн за м²
2 комнаты
66.61 м²
Этажи: 5
Дом 3
4 кв. 2026
Подготовительные работы
41 550 — 42 850 грн за м²
2 комнаты
67.9 м²
Этажи: 2-4
Дом 3
4 кв. 2026
Подготовительные работы
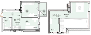
41 550 — 42 850 грн за м²
2 комнаты
72.33 м²
Этажи: 5
Дом 3
4 кв. 2026
Подготовительные работы
Самые важные обновления ЖК Riverside
Акции, скидки и спецпредложения
Новые фотографии со строительства, аэрооблеты
Обновления цен от отдела продаж
Обновление документов в реестрах
Це російськомовна версія
Інколи пошукові системи вважають, що користувачам потрібна саме вона, але завдяки цьому повідомленню ви можете змінити мову в один клік
Українською