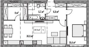
1-кімнатні квартири
            від
        800 тис. грн
        19 тис. $
    
            
        
             
            
                  Найважливіші оновлення ЖК Моя Баварія
                
                
            Акції, знижки та спецпропозиції
        
            
            Нові фотографії з будівництва, аерообльоти
        
            
            Оновлення цін від відділу продажу
        
            
            Оновлення документів в реєстрах
        
    
            Планування
        
         
             
             
            