Київ
Львів
Одеса
Вінниця
Дніпро
Житомир
Запоріжжя
Івано-Франківськ
Кропивницький
Луцьк
Миколаїв
Полтава
Рівне
Суми
Тернопіль
Ужгород
Харків
Херсон
Хмельницький
Черкаси
Чернівці
Чернігів
Так
Змінити місто
Головна
Новобудови
Продаж
Оренда
Мій ЛУН
Рієлторам: розмістити оголошення
Власникам: розмістити оголошення через додаток ЛУН
Для ЗМІ
FAQ
Вакансії
Команда підтримки
Ми в соцмережах
Завантажити в
Завантажити в
Iнші проєкти
від
дослідження
міського простору
рієлторам: розміщення
оголошень на ЛУН
iOS App оренди
квартир
квартири у світі
від забудовника
спільнота девелоперів
житлових проєктів
подобова оренда
КМ Oakwood
КМ Oakwood
Про проєкт
Типові проєкти
Новини
КМ Oakwood — Тип 3, 5, 7
Ціна проєкту
від 6.48 млн грн
від 155 680 $
Будується:
6.48 млн грн
155 680 $
194.6 м²
Дуплекс
3 спальні
3 поверхи
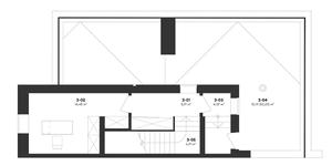
Планування
1 поверх
1 поверх
1 поверх, гараж
2 поверх
3 поверх
КМ Oakwood
+38 093 ... Показати
Інші проєкти цього КМ
Тип 1
від 7.29 млн грн
від 175 140 $
3 спальні
194.6 м²
Котедж
3 поверхи
Тип 2, 4, 6
від 6.48 млн грн
від 155 680 $
3 спальні
194.6 м²
Дуплекс
3 поверхи
Найважливіші оновлення КМ Oakwood
Акції, знижки та спецпропозиції
Статус будівництва, аерообльоти
Оновлення цін від відділу продажу
Нові типові проєкти
Щоденні оновлення в телеграм