Київ
Львів
Одеса
Вінниця
Дніпро
Житомир
Запоріжжя
Івано-Франківськ
Кропивницький
Луцьк
Миколаїв
Полтава
Рівне
Суми
Тернопіль
Ужгород
Харків
Херсон
Хмельницький
Черкаси
Чернівці
Чернігів
Так
Змінити місто
Головна
Новобудови
Продаж
Оренда
Мій ЛУН
Девелоперам: реклама на ЛУН
Рієлторам: розмістити оголошення
Власникам: розмістити оголошення через додаток ЛУН
Для ЗМІ
FAQ
Вакансії
Команда підтримки
Iнші проєкти
від
Безбарʼєрність та
комфорт міського
простору
Тренди та інсайти від
експертів нерухомості
Професійна рієлторська мережа
Застосунок оренди квартир на 3D-мапі
Нерухомість
Грузії
сообщество девелоперов
жилых комплексов
Ми в соцмережах
Завантажити в
Завантажити в
Дуплекси Vysoka Duplex
Дуплекси Vysoka Duplex
Про проєкт
Типові проєкти
Новини
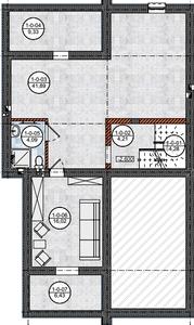
Дуплекси Vysoka Duplex — Тип 1
289.81 м²
Дуплекс
3 спальні
2 поверхи
Планування
Цокольний поверх
1 поверх, гараж
2 поверх
Тераса
Дуплекси Vysoka Duplex
Інші проєкти цього КМ
Продано
Тип 2
3 спальні
289.65 м²
Дуплекс
2 поверхи
Найважливіші оновлення Дуплекси Vysoka Duplex
Акції, знижки та спецпропозиції
Статус будівництва, аерообльоти
Оновлення цін від відділу продажу
Нові типові проєкти
Щоденні оновлення в телеграм