Київ
Львів
Одеса
Вінниця
Дніпро
Житомир
Запоріжжя
Івано-Франківськ
Кропивницький
Луцьк
Миколаїв
Полтава
Рівне
Суми
Тернопіль
Ужгород
Харків
Херсон
Хмельницький
Черкаси
Чернівці
Чернігів
Так
Змінити місто
Головна
Новобудови
Продаж
Оренда
Мій ЛУН
Девелоперам: реклама на ЛУН
Рієлторам: розмістити оголошення
Власникам: розмістити оголошення через додаток ЛУН
Для ЗМІ
FAQ
Вакансії
Команда підтримки
Iнші проєкти
від
Безбарʼєрність та
комфорт міського
простору
Тренди та інсайти від
експертів нерухомості
Професійна рієлторська мережа
Застосунок оренди квартир на 3D-мапі
Нерухомість
Грузії
сообщество девелоперов
жилых комплексов
Ми в соцмережах
Завантажити в
Завантажити в
ЖК МОККО
ЖК МОККО
Про проєкт
Планування
Моніторинг будівництва
Контакти
Новини
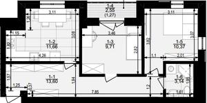
2-кімнатні квартири від
1.99 млн грн
48 тис. $
39 900 грн за м²
$ 950 за м²
2 кімнати
49.75 м²
Поверхи: 2-4
3 кв. 2027
Будується
39 900 грн за м²
$ 950 за м²
2 кімнати
49.96 м²
Поверхи: 2-4
3 кв. 2027
Будується
Контакти відділу продажу
Винники, вул. Галицька, 88
Відділ продажу
Пн - Пт:
10:00 - 18:00
Сб - Нд:
вихідний
Записатись на візит
Показати
Написати
Нерухомість Винників від забудовника
Житло комфорт-класу
Будівельна компанія REM100
ЖК МОККО
Планування
Найважливіші оновлення ЖК МОККО
Акції, знижки та спецпропозиції
Нові фотографії з будівництва, аерообльоти
Оновлення цін від відділу продажу
Оновлення документів в реєстрах
Щоденні оновлення в телеграм
Планування