Київ
Львів
Одеса
Вінниця
Дніпро
Житомир
Запоріжжя
Івано-Франківськ
Кропивницький
Луцьк
Миколаїв
Полтава
Рівне
Суми
Тернопіль
Ужгород
Харків
Херсон
Хмельницький
Черкаси
Чернівці
Чернігів
Так
Змінити місто
Головна
Новобудови
Продаж
Оренда
Мій ЛУН
Девелоперам: реклама на ЛУН
Рієлторам: розмістити оголошення
Власникам: розмістити оголошення через додаток ЛУН
Для ЗМІ
FAQ
Вакансії
Команда підтримки
Ми в соцмережах
Завантажити в
Завантажити в
Iнші проєкти
від
дослідження
міського простору
рієлторам: розміщення
оголошень на ЛУН
iOS App оренди
квартир
квартири у світі
від забудовника
спільнота девелоперів
житлових проєктів
подобова оренда
КМ NAVARIA LUX
КМ NAVARIA LUX
Про проєкт
Типові проєкти
Новини
4 фотографії
КМ NAVARIA LUX — Elysium
Ціна проєкту
від 30.1 млн грн
від 722 800 $
Будується:
30.1 млн грн
722 800 $
278 м²
Котедж
3 спальні
2 поверхи
Планування
1 поверх, гараж
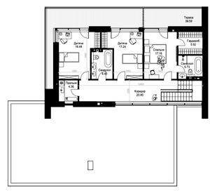
2 поверх
КМ NAVARIA LUX
+38 067 ... Показати
Інші проєкти цього КМ
Majestic
від 31.73 млн грн
від 761 800 $
3 спальні
293.28 м²
Котедж
2 поверхи
Elara
від 21.92 млн грн
від 526 400 $
3 спальні
188 м²
Котедж
1 поверх
Harmony
від 29.56 млн грн
від 709 800 $
3 спальні
273 м²
Котедж
1 поверх
Imperial
від 39.85 млн грн
від 956 800 $
4 спальні
368 м²
Котедж
2 поверхи
Lumiere
від 27.99 млн грн
від 672 000 $
3 спальні
240 м²
Котедж
2 поверхи
Frida
від 31.02 млн грн
від 744 800 $
3 спальні
266 м²
Котедж
2 поверхи
Дивитись ще 2 проєкти
Найважливіші оновлення КМ NAVARIA LUX
Акції, знижки та спецпропозиції
Статус будівництва, аерообльоти
Оновлення цін від відділу продажу
Нові типові проєкти
Щоденні оновлення в телеграм