КМ NARVILLE — Тип 1

Ціна проєкту від 7.9 млн грн
Будується:  7.9 млн грн
138.77 м²
Котедж
3 спальні
2 поверхи
КМ NARVILLE
Відділ продажу
КМ NARVILLE
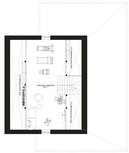
Планування
1 поверх, гараж
2 поверх
Тераса
КМ NARVILLE
КМ NARVILLE
Відділ продажу
Пн - Пт: 10:00 - 18:00
Сб: 11:00 - 15:00
Нд: вихідний
Інші проєкти цього КМ
Тип 2
Тип 2
від 8.71 млн грн
3 спальні
153.02 м²
Котедж
2 поверхи
Тип 3
Тип 3
від 9.35 млн грн
3 спальні
164.16 м²
Котедж
2 поверхи
Тип 4
Тип 4
від 10.53 млн грн
3 спальні
184.88 м²
Котедж
2 поверхи
Тип 5
Тип 5
від 10.11 млн грн
3 спальні
177.5 м²
Котедж
2 поверхи
Тип 6
Тип 6
від 7.74 млн грн
3 спальні
135.95 м²
Котедж
2 поверхи
Дивитись ще 1 проєкт
Найважливіші оновлення КМ NARVILLE
Акції, знижки та спецпропозиції
Статус будівництва, аерообльоти
Оновлення цін від відділу продажу
Нові типові проєкти