КМ на Тракті Глинянському

КМ на Тракті Глинянському — Тип 1

Ціна проєкту від 9.32 млн грн
Будується:  9.32 млн грн
120.34 м²
Котедж
5 спалень
2 поверхи
КМ на Тракті Глинянському
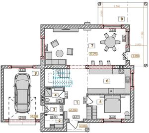
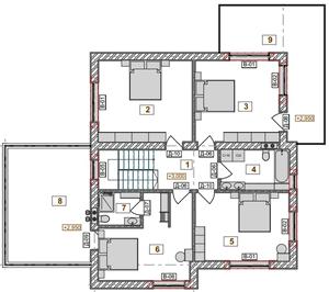
Планування
1 поверх, гараж
2 поверх
КМ на Тракті Глинянському
КМ на Тракті Глинянському
Інші проєкти цього КМ
Тип 2
Тип 2
від 6.78 млн грн
3 спальні
86.45 м²
Дуплекс
2 поверхи
Найважливіші оновлення КМ на Тракті Глинянському
Акції, знижки та спецпропозиції
Статус будівництва, аерообльоти
Оновлення цін від відділу продажу
Нові типові проєкти