КМ The LAGODA Mental Residence

КМ The LAGODA Mental Residence — Тип 1

Ціна проєкту від 6.42 млн грн
Будується:  6.42 млн грн
159 м²
Таунхаус
2 спальні
2 поверхи
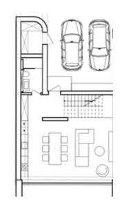
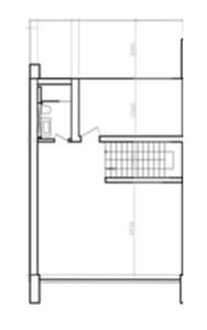
Планування
1 поверх
2 поверх
КМ The LAGODA Mental Residence
Інші проєкти цього КМ
Тип 2
Тип 2
від 6.82 млн грн
2 спальні
169 м²
Таунхаус
2 поверхи
Тип 3
Тип 3
від 6.78 млн грн
2 спальні
159 м²
Таунхаус
2 поверхи
Тип 6
Тип 6
від 6.7 млн грн
2 спальні
166 м²
Дуплекс
2 поверхи
Тип 7
Тип 7
від 6.17 млн грн
2 спальні
153 м²
Дуплекс
2 поверхи
Тип 7
Тип 7
від 9.68 млн грн
2 спальні
240 м²
Котедж
2 поверхи
Продано
Тип 5
Тип 5
2 спальні
193 м²
Таунхаус
2 поверхи
Дивитись ще 2 проєкти
Найважливіші оновлення КМ The LAGODA Mental Residence
Акції, знижки та спецпропозиції
Статус будівництва, аерообльоти
Оновлення цін від відділу продажу
Нові типові проєкти