Дуплекси Княгині Ольги

Дуплекси Княгині Ольги — Тип 2 (з ремонтом)

118.12 м²
Дуплекс
4 спальні
2 поверхи
Відділ продажу
Дуплекси Княгині Ольги
Працює за попереднім записом
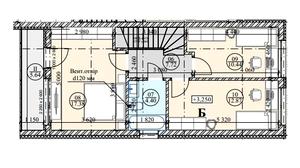
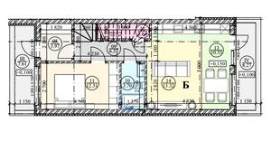
Планування
1 поверх
2 поверх
Дуплекси Княгині Ольги
Відділ продажу
Пн - Пт: 09:00 - 18:00
Сб - Нд: вихідний
Працює за попереднім записом
Інші проєкти цього КМ
Тип 1 (з ремонтом)
Тип 1 (з ремонтом)
від 8.23 млн грн
4 спальні
118.21 м²
Дуплекс
2 поверхи
Найважливіші оновлення Дуплекси Княгині Ольги
Акції, знижки та спецпропозиції
Статус будівництва, аерообльоти
Оновлення цін від відділу продажу
Нові типові проєкти