Київ
Львів
Одеса
Вінниця
Дніпро
Житомир
Запоріжжя
Івано-Франківськ
Кропивницький
Луцьк
Миколаїв
Полтава
Рівне
Суми
Тернопіль
Ужгород
Харків
Херсон
Хмельницький
Черкаси
Чернівці
Чернігів
Так
Змінити місто
Головна
Новобудови
Продаж
Оренда
Мій ЛУН
Девелоперам: реклама на ЛУН
Рієлторам: розмістити оголошення
Власникам: розмістити оголошення через додаток ЛУН
Для ЗМІ
FAQ
Вакансії
Команда підтримки
Iнші проєкти
від
Безбарʼєрність та
комфорт міського
простору
Тренди та інсайти від
експертів нерухомості
Професійна рієлторська мережа
Застосунок оренди квартир на 3D-мапі
Нерухомість
Грузії
сообщество девелоперов
жилых комплексов
Ми в соцмережах
Завантажити в
Завантажити в
Клубний будинок На Макіївській
Клубний будинок На Макіївській
Про проєкт
Планування
Моніторинг будівництва
Документи
Новини
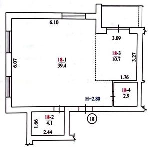
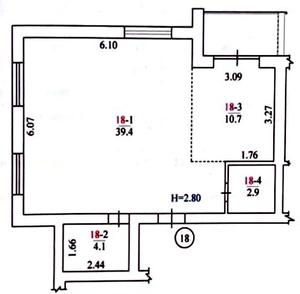
2-кімнатні квартири від
2.89 млн грн
69 тис. $
50 400 — 67 600 грн за м²
$ 1 200 — 1 610 за м²
2 кімнати
55 м²
Поверхи: 3
1 кв. 2021
Збудовано
50 400 — 67 600 грн за м²
$ 1 200 — 1 610 за м²
2 кімнати
55 м²
Поверхи: 4
1 кв. 2021
Збудовано
50 400 — 67 600 грн за м²
$ 1 200 — 1 610 за м²
2 кімнати
59 м²
Поверхи: 2-3
1 кв. 2021
Збудовано
50 400 — 67 600 грн за м²
$ 1 200 — 1 610 за м²
2 кімнати
59 м²
Поверхи: 2-3
1 кв. 2021
Збудовано
Усі ЖК Києва
Квартира в новобудові Оболонського району
Новобудови комфорт-класу
Квартири від забудовника Енергопроект-БРС
Клубний будинок На Макіївській
Планування
Найважливіші оновлення Клубний будинок На Макіївській
Акції, знижки та спецпропозиції
Нові фотографії з будівництва, аерообльоти
Оновлення цін від відділу продажу
Оновлення документів в реєстрах
Щоденні оновлення в телеграм
Планування