Київ
Львів
Одеса
Вінниця
Дніпро
Житомир
Запоріжжя
Івано-Франківськ
Кропивницький
Луцьк
Миколаїв
Полтава
Рівне
Суми
Тернопіль
Ужгород
Харків
Херсон
Хмельницький
Черкаси
Чернівці
Чернігів
Так
Змінити місто
Головна
Новобудови
Продаж
Оренда
Мій ЛУН
Девелоперам: реклама на ЛУН
Рієлторам: розмістити оголошення
Власникам: розмістити оголошення через додаток ЛУН
Для ЗМІ
FAQ
Вакансії
Команда підтримки
Ми в соцмережах
Завантажити в
Завантажити в
Iнші проєкти
від
дослідження
міського простору
рієлторам: розміщення
оголошень на ЛУН
iOS App оренди
квартир
квартири у світі
від забудовника
спільнота девелоперів
житлових проєктів
подобова оренда
Таунхауси Lisostepoville
Таунхауси Lisostepoville
Про проєкт
Типові проєкти
Новини
3 фотографії
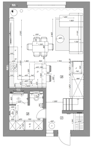
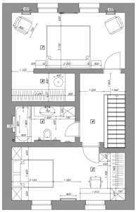
Таунхауси Lisostepoville — Тип 1
Ціна проєкту
— 3.12 млн грн
— 75 000 $
Збудований:
від 3.12 млн грн
від 75 000 $
92.34 м²
Таунхаус
2 спальні
2 поверхи
Планування
1 поверх
2 поверх
Таунхауси Lisostepoville
+38 096 ... Показати
Найважливіші оновлення Таунхауси Lisostepoville
Акції, знижки та спецпропозиції
Статус будівництва, аерообльоти
Оновлення цін від відділу продажу
Нові типові проєкти
Щоденні оновлення в телеграм