Київ
Львів
Одеса
Вінниця
Дніпро
Житомир
Запоріжжя
Івано-Франківськ
Кропивницький
Луцьк
Миколаїв
Полтава
Рівне
Суми
Тернопіль
Ужгород
Харків
Херсон
Хмельницький
Черкаси
Чернівці
Чернігів
Так
Змінити місто
Головна
Новобудови
Продаж
Оренда
Мій ЛУН
Девелоперам: реклама на ЛУН
Рієлторам: розмістити оголошення
Власникам: розмістити оголошення через додаток ЛУН
Для ЗМІ
FAQ
Вакансії
Команда підтримки
Iнші проєкти
від
Безбарʼєрність та
комфорт міського
простору
Тренди та інсайти від
експертів нерухомості
Професійна рієлторська мережа
Застосунок оренди квартир на 3D-мапі
Нерухомість
Грузії
сообщество девелоперов
жилых комплексов
Ми в соцмережах
Завантажити в
Завантажити в
КМ Wise Homes
КМ Wise Homes
Про проєкт
Типові проєкти
Моніторинг будівництва
Новини
2 фотографії
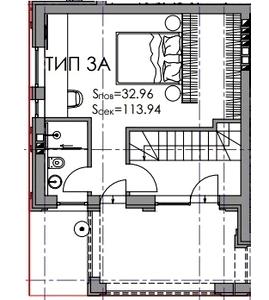
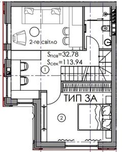
КМ Wise Homes — Тип 3А
113.94 м²
Таунхаус
3 спальні
3 поверхи
Планування
1 поверх
2 поверх
3 поверх
КМ Wise Homes
+38 050 ... Показати
Інші проєкти цього КМ
є збудовані
Тип 1В
5.91 млн грн
140 000 $
4 спальні
148.96 м²
Таунхаус
3 поверхи
є збудовані
Тип 2
5.48 млн грн
130 000 $
3 спальні
129.96 м²
Таунхаус
3 поверхи
є збудовані
Тип 3В
5.06 млн грн
120 000 $
3 спальні
120.9 м²
Таунхаус
3 поверхи
є збудовані
Тип 3С
4.85 млн грн
115 000 $
3 спальні
107.14 м²
Котедж
2 поверхи
є збудовані
Тип 4
5.69 млн грн
135 000 $
3 спальні
129.45 м²
Дуплекс
2 поверхи
Продано
Тип 1А
3 спальні
111.95 м²
Таунхаус
2 поверхи
Продано
Тип 1
3 спальні
111.13 м²
Таунхаус
2 поверхи
Дивитись ще 3 проєкти
Найважливіші оновлення КМ Wise Homes
Акції, знижки та спецпропозиції
Статус будівництва, аерообльоти
Оновлення цін від відділу продажу
Нові типові проєкти
Щоденні оновлення в телеграм