Таунхауси F12 — Тип 1

Ціна проєкту — 3.5 млн грн
Збудований:  від 3.5 млн грн
90.28 м²
Таунхаус
4 спальні
2 поверхи
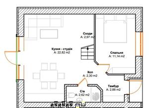
Планування
1 поверх
2 поверх
Таунхауси F12
Інші проєкти цього КМ
Продано
Тип 2
Тип 2
3 спальні
74.65 м²
Таунхаус
2 поверхи
Найважливіші оновлення Таунхауси F12
Акції, знижки та спецпропозиції
Статус будівництва, аерообльоти
Оновлення цін від відділу продажу
Нові типові проєкти