Київ
Львів
Одеса
Вінниця
Дніпро
Житомир
Запоріжжя
Івано-Франківськ
Кропивницький
Луцьк
Миколаїв
Полтава
Рівне
Суми
Тернопіль
Ужгород
Харків
Херсон
Хмельницький
Черкаси
Чернівці
Чернігів
Так
Змінити місто
Головна
Новобудови
Продаж
Оренда
Мій ЛУН
Девелоперам: реклама на ЛУН
Рієлторам: розмістити оголошення
Власникам: розмістити оголошення через додаток ЛУН
Для ЗМІ
FAQ
Вакансії
Команда підтримки
Ми в соцмережах
Завантажити в
Завантажити в
Iнші проєкти
від
дослідження
міського простору
рієлторам: розміщення
оголошень на ЛУН
iOS App оренди
квартир
квартири у світі
від забудовника
спільнота девелоперів
житлових проєктів
подобова оренда
КМ Secret Lake House
КМ Secret Lake House
Про проєкт
Типові проєкти
Контакти
Новини
КМ Secret Lake House — Дуплекс
Ціна проєкту
від 3.8 млн грн
від 90 950 $
В проєкті:
3.8 млн грн
90 950 $
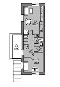
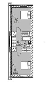
107 м²
Дуплекс
2 спальні
2 поверхи
Відділ продажу
КМ Secret Lake House
Працює за попереднім записом
Планування
1 поверх
2 поверх
КМ Secret Lake House
Відділ продажу
Пн - Нд:
10:00 - 18:00
Працює за попереднім записом
Записатись на візит
+38 067 ... Показати
Інші проєкти цього КМ
є збудовані
Scandi
від 5.27 млн грн
від 126 000 $
3 спальні
120 м²
Котедж
1 поверх
є збудовані
Тип 2
6.9 млн грн
165 000 $
3 спальні
165 м²
Котедж
2 поверхи
Тип 1
від 5.06 млн грн
від 121 000 $
2 спальні
110 м²
Котедж
1 поверх
Modern
від 5.71 млн грн
від 136 500 $
3 спальні
130 м²
Котедж
1 поверх
Тип 3
від 5.8 млн грн
від 138 650 $
4 спальні
147 м²
Котедж
3 поверхи
Дивитись ще 1 проєкт
Найважливіші оновлення КМ Secret Lake House
Акції, знижки та спецпропозиції
Статус будівництва, аерообльоти
Оновлення цін від відділу продажу
Нові типові проєкти
Щоденні оновлення в телеграм