Київ
Львів
Одеса
Вінниця
Дніпро
Житомир
Запоріжжя
Івано-Франківськ
Кропивницький
Луцьк
Миколаїв
Полтава
Рівне
Суми
Тернопіль
Ужгород
Харків
Херсон
Хмельницький
Черкаси
Чернівці
Чернігів
Так
Змінити місто
Головна
Новобудови
Продаж
Оренда
Мій ЛУН
Девелоперам: реклама на ЛУН
Рієлторам: розмістити оголошення
Власникам: розміщення через ЛУН додаток
Для ЗМІ
FAQ
Вакансії
Команда підтримки
грн
$
Iнші проєкти
від
грн
$
Безбарʼєрність та
комфорт міського
простору
Тренди та інсайти від
експертів нерухомості
Професійна рієлторська мережа
Застосунок оренди квартир на 3D-мапі
Нерухомість
Грузії
Спільнота девелоперів
житлових проєктів
Ми в соцмережах
Завантажити в
Завантажити в
ЖК GRONO Family Residence
ЖК GRONO Family Residence
Про проєкт
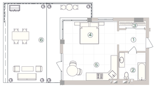
Планування
Моніторинг будівництва
Документи
Контакти
Новини
1-кімнатні квартири від
1.86 млн грн
44 тис. $
92 750 — 135 550 грн за м²
$ 2 190 — 3 200 за м²
1 кімната
46.86 м²
Поверхи: 1
Секція 1
2 кв. 2026
Будується
Контакти відділу продажу
Поляниця, урочище Прелуки
Відділ продажу
Пн - Пт:
09:00 - 18:00
Сб:
10:00 - 15:00
Нд:
вихідний
Записатись на візит
Показати
Написати
Усі ЖК Поляниці
Новобудови від забудовника Ковчег
ЖК GRONO Family Residence
Планування
Найважливіші оновлення ЖК GRONO Family Residence
Акції, знижки та спецпропозиції
Нові фотографії з будівництва, аерообльоти
Оновлення цін від відділу продажу
Оновлення документів в реєстрах
Оновлення в телеграм
Планування