Київ
Львів
Одеса
Вінниця
Дніпро
Житомир
Запоріжжя
Івано-Франківськ
Кропивницький
Луцьк
Миколаїв
Полтава
Рівне
Суми
Тернопіль
Ужгород
Харків
Херсон
Хмельницький
Черкаси
Чернівці
Чернігів
Так
Змінити місто
Головна
Новобудови
Продаж
Оренда
Мій ЛУН
Девелоперам: реклама на ЛУН
Рієлторам: розмістити оголошення
Власникам: розмістити оголошення через додаток ЛУН
Для ЗМІ
FAQ
Вакансії
Команда підтримки
Iнші проєкти
від
Безбарʼєрність та
комфорт міського
простору
Тренди та інсайти від
експертів нерухомості
Професійна рієлторська мережа
Застосунок оренди квартир на 3D-мапі
Нерухомість
Грузії
сообщество девелоперов
жилых комплексов
Ми в соцмережах
Завантажити в
Завантажити в
КМ Barn Hills
КМ Barn Hills
Про проєкт
Типові проєкти
Контакти
Новини
10 фотографій
КМ Barn Hills — Тип 2 (ділянка 5.4 сотки)
Ціна проєкту
— 4.56 млн грн
— 108 000 $
Збудований:
від 4.56 млн грн
від 108 000 $
136.5 м²
Котедж
4 спальні
2 поверхи
Відділ продажу
КМ Barn Hills
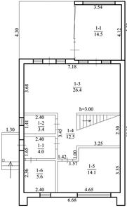
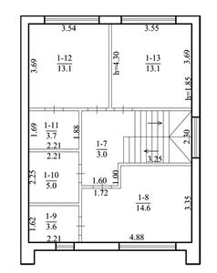
Планування
1 поверх
2 поверх
КМ Barn Hills
Відділ продажу
Пн - Нд:
08:00 - 20:00
+38 067 ... Показати
Інші проєкти цього КМ
Тип 1 (ділянка 4.6 сотки)
від 3.71 млн грн
від 88 000 $
4 спальні
136.5 м²
Котедж
2 поверхи
Найважливіші оновлення КМ Barn Hills
Акції, знижки та спецпропозиції
Статус будівництва, аерообльоти
Оновлення цін від відділу продажу
Нові типові проєкти
Щоденні оновлення в телеграм