Київ
Львів
Одеса
Вінниця
Дніпро
Житомир
Запоріжжя
Івано-Франківськ
Кропивницький
Луцьк
Миколаїв
Полтава
Рівне
Суми
Тернопіль
Ужгород
Харків
Херсон
Хмельницький
Черкаси
Чернівці
Чернігів
Так
Змінити місто
Головна
Новобудови
Продаж
Оренда
Мій ЛУН
Девелоперам: реклама на ЛУН
Рієлторам: розмістити оголошення
Власникам: розмістити оголошення через додаток ЛУН
Для ЗМІ
FAQ
Вакансії
Команда підтримки
Iнші проєкти
від
Безбарʼєрність та
комфорт міського
простору
Тренди та інсайти від
експертів нерухомості
Професійна рієлторська мережа
Застосунок оренди квартир на 3D-мапі
Нерухомість
Грузії
сообщество девелоперов
жилых комплексов
Ми в соцмережах
Завантажити в
Завантажити в
КМ VIVA-CHERNIVTSI
КМ VIVA-CHERNIVTSI
Про проєкт
Типові проєкти
Моніторинг будівництва
Аерообліт 360
Новини
3 фотографії
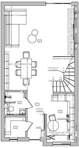
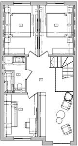
КМ VIVA-CHERNIVTSI — Тип 2
120 м²
Таунхаус
3 спальні
2 поверхи
Планування
1 поверх
2 поверх
КМ VIVA-CHERNIVTSI
Інші проєкти цього КМ
Продано
Тип 1
3 спальні
120 м²
Таунхаус
2 поверхи
Продано
Тип 3
3 спальні
120 м²
Таунхаус
2 поверхи
Продано
Тип 4
3 спальні
120 м²
Таунхаус
2 поверхи
Продано
Тип 5
3 спальні
120 м²
Таунхаус
2 поверхи
Продано
Тип 6
3 спальні
120 м²
Таунхаус
2 поверхи
Продано
Тип 7
3 спальні
120 м²
Таунхаус
2 поверхи
Продано
Тип 8
3 спальні
120 м²
Таунхаус
2 поверхи
Продано
Тип 9
3 спальні
120 м²
Таунхаус
2 поверхи
Дивитись ще 4 проєкти