Зараз 9:00 — хвилина мовчання
Будь ласка, зупинімось і вшануємо пам’ять усіх, хто загинув через війну росії проти України. Пам’ятаємо.
Новобудови
Продаж
Оренда
Мій ЛУН
Інше
Завантажити в
Завантажити в
Девелоперам: реклама на ЛУН
Рієлторам: розмістити оголошення
Власникам: розміщення через ЛУН додаток
Для ЗМІ
FAQ
Вакансії
Команда підтримки
грн
$
Iнші проєкти
від
грн
$
Безбарʼєрність та
комфорт міського
простору
Тренди та інсайти від
експертів нерухомості
Професійна рієлторська мережа
Застосунок оренди квартир на 3D-мапі
Нерухомість
Грузії
Спільнота девелоперів
житлових проєктів
Ми в соцмережах
Таунхаус Garden House
Таунхаус Garden House
Про проєкт
Типові проєкти
Новини
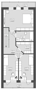
Таунхаус Garden House — Тип 1 (ділянка 3.5 сотки)
140 м²
Таунхаус
3 спальні
2 поверхи
Планування
1 поверх
2 поверх
Таунхаус Garden House