Таунхаус Солов'їний

Таунхаус Солов'їний — Тип 3

96.86 м²
Таунхаус
4 спальні
2 поверхи
Відділ продажу
Таунхаус Солов'їний
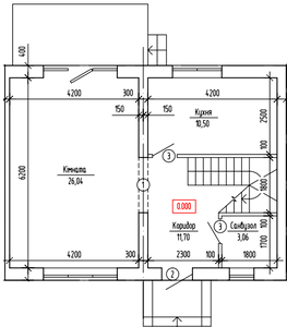
Планування
1 поверх
2 поверх
Таунхаус Солов'їний
Відділ продажу
Пн - Сб: 09:00 - 18:00
Нд: вихідний
Інші проєкти цього КМ
є збудовані
Тип 7 (газифікований)
Тип 7 (газифікований)
5.09 млн грн
4 спальні
105 м²
Таунхаус
2 поверхи
Найважливіші оновлення Таунхаус Солов'їний
Акції, знижки та спецпропозиції
Статус будівництва, аерообльоти
Оновлення цін від відділу продажу
Нові типові проєкти