Київ
Львів
Одеса
Вінниця
Дніпро
Житомир
Запоріжжя
Івано-Франківськ
Кропивницький
Луцьк
Миколаїв
Полтава
Рівне
Суми
Тернопіль
Ужгород
Харків
Херсон
Хмельницький
Черкаси
Чернівці
Чернігів
Так
Змінити місто
Головна
Новобудови
Продаж
Оренда
Мій ЛУН
Девелоперам: реклама на ЛУН
Рієлторам: розмістити оголошення
Власникам: розмістити оголошення через додаток ЛУН
Для ЗМІ
FAQ
Вакансії
Команда підтримки
Iнші проєкти
від
Безбарʼєрність та
комфорт міського
простору
Тренди та інсайти від
експертів нерухомості
Професійна рієлторська мережа
Застосунок оренди квартир на 3D-мапі
Нерухомість
Грузії
сообщество девелоперов
жилых комплексов
Ми в соцмережах
Завантажити в
Завантажити в
Таунхаус Веселка
Таунхаус Веселка
Про проєкт
Типові проєкти
Контакти
Новини
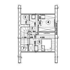
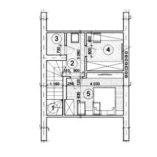
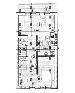
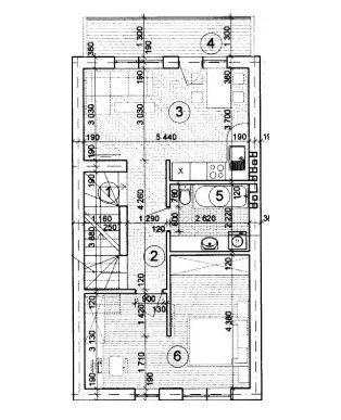
Таунхаус Веселка — Тип 3
Ціна проєкту
від 2.09 млн грн
від 49 800 $
Будується:
2.09 млн грн
49 800 $
89.09 м²
Таунхаус
2 спальні
2 поверхи
Відділ продажу
Таунхаус Веселка
Планування
1 поверх
2 поверх
Таунхаус Веселка
Відділ продажу
Пн - Пт:
09:00 - 17:00
Сб - Нд:
вихідний
Записатись на візит
+38 096 ... Показати
Інші проєкти цього КМ
Тип 1
від 3.18 млн грн
від 75 800 $
3 спальні
135.53 м²
Таунхаус
3 поверхи
Тип 2
від 1.37 млн грн
від 32 700 $
1 спальня
46.44 м²
Таунхаус
1 поверх
Найважливіші оновлення Таунхаус Веселка
Акції, знижки та спецпропозиції
Статус будівництва, аерообльоти
Оновлення цін від відділу продажу
Нові типові проєкти
Щоденні оновлення в телеграм