Новобудови
Продаж
Оренда
Мій ЛУН
Інше
Завантажити в
Завантажити в
Девелоперам: реклама на ЛУН
Рієлторам: розмістити оголошення
Власникам: розміщення через ЛУН додаток
Для ЗМІ
FAQ
Вакансії
Команда підтримки
грн
$
Iнші проєкти
від
грн
$
Безбарʼєрність та
комфорт міського
простору
Тренди та інсайти від
експертів нерухомості
Професійна рієлторська мережа
Застосунок оренди квартир на 3D-мапі
Нерухомість
Грузії
Спільнота девелоперів
житлових проєктів
Ми в соцмережах
Таунхауси Scandi House
Таунхауси Scandi House
Про проєкт
Типові проєкти
Аерообліт 360
Новини
3 фотографії
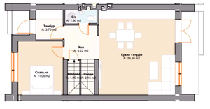
Таунхауси Scandi House — Тип 6
Ціна проєкту
— 2.84 млн грн
— 65 000 $
Збудований:
від 2.84 млн грн
від 65 000 $
117 м²
Таунхаус
4 спальні
2 поверхи
Планування
1 поверх
2 поверх
Таунхауси Scandi House