Київ
Львів
Одеса
Вінниця
Дніпро
Житомир
Запоріжжя
Івано-Франківськ
Кропивницький
Луцьк
Миколаїв
Полтава
Рівне
Суми
Тернопіль
Ужгород
Харків
Херсон
Хмельницький
Черкаси
Чернівці
Чернігів
Так
Змінити місто
Головна
Новобудови
Продаж
Оренда
Мій ЛУН
Девелоперам: реклама на ЛУН
Рієлторам: розмістити оголошення
Власникам: розмістити оголошення через додаток ЛУН
Для ЗМІ
FAQ
Вакансії
Команда підтримки
Iнші проєкти
від
Безбарʼєрність та
комфорт міського
простору
Тренди та інсайти від
експертів нерухомості
Професійна рієлторська мережа
Застосунок оренди квартир на 3D-мапі
Нерухомість
Грузії
сообщество девелоперов
жилых комплексов
Ми в соцмережах
Завантажити в
Завантажити в
Таунхауси Freya
Таунхауси Freya
Про проєкт
Типові проєкти
Аерообліт 360
Контакти
Новини
Таунхауси Freya — Тип 3
Ціна проєкту
від 3.07 млн грн
від 73 000 $
Збудований:
від 3.57 млн грн
від 85 000 $
Будується:
3.07 млн грн
73 000 $
102 м²
Таунхаус
2 спальні
2 поверхи
Відділ продажу
Таунхауси Freya
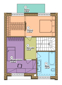
Планування
1 поверх
2 поверх
Таунхауси Freya
Відділ продажу
Пн:
вихідний
Вт - Сб:
10:00 - 18:00
Нд:
вихідний
Записатись на візит
Показати
Написати
Інші проєкти цього КМ
є збудовані
Тип 2
від 3.07 млн грн
від 73 000 $
2 спальні
102 м²
Таунхаус
2 поверхи
є збудовані
Тип 1
від 3.07 млн грн
від 73 000 $
4 спальні
102 м²
Таунхаус
2 поверхи
Тип 2
від 2.9 млн грн
від 69 000 $
2 спальні
94 м²
Таунхаус
2 поверхи
Тип 1
від 2.9 млн грн
від 69 000 $
4 спальні
94 м²
Таунхаус
2 поверхи
Найважливіші оновлення Таунхауси Freya
Акції, знижки та спецпропозиції
Статус будівництва, аерообльоти
Оновлення цін від відділу продажу
Нові типові проєкти
Щоденні оновлення в телеграм