Київ
Львів
Одеса
Вінниця
Дніпро
Житомир
Запоріжжя
Івано-Франківськ
Кропивницький
Луцьк
Миколаїв
Полтава
Рівне
Суми
Тернопіль
Ужгород
Харків
Херсон
Хмельницький
Черкаси
Чернівці
Чернігів
Так
Змінити місто
Головна
Новобудови
Продаж
Оренда
Мій ЛУН
Девелоперам: реклама на ЛУН
Рієлторам: розмістити оголошення
Власникам: розмістити оголошення через додаток ЛУН
Для ЗМІ
FAQ
Вакансії
Команда підтримки
Ми в соцмережах
Завантажити в
Завантажити в
Iнші проєкти
від
дослідження
міського простору
рієлторам: розміщення
оголошень на ЛУН
iOS App оренди
квартир
квартири у світі
від забудовника
спільнота девелоперів
житлових проєктів
подобова оренда
Таунхауси Перша лінія, 31
Таунхауси Перша лінія, 31
Про проєкт
Типові проєкти
Контакти
Новини
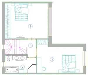
Таунхауси Перша лінія, 31 — Тип 4
112 м²
Таунхаус
3 спальні
3 поверхи
Відділ продажу
Таунхауси Перша лінія, 31
Планування
1 поверх
2 поверх
3 поверх
Таунхауси Перша лінія, 31
Відділ продажу
Пн - Пт:
11:00 - 18:00
Сб - Нд:
11:00 - 15:00
+38 063 ... Показати
Інші проєкти цього КМ
є збудовані
Тип 6
5.21 млн грн
125 000 $
3 спальні
116.5 м²
Таунхаус
3 поверхи
Продано
Тип 1
3 спальні
86 м²
Таунхаус
3 поверхи
Продано
Тип 2
3 спальні
99 м²
Таунхаус
3 поверхи
Продано
Тип 3
3 спальні
110 м²
Таунхаус
3 поверхи
Продано
Тип 5
3 спальні
121 м²
Таунхаус
3 поверхи
Продано
Тип 7
3 спальні
104.2 м²
Таунхаус
3 поверхи
Продано
Тип 8
3 спальні
117.9 м²
Таунхаус
3 поверхи
Дивитись ще 3 проєкти
Найважливіші оновлення Таунхауси Перша лінія, 31
Акції, знижки та спецпропозиції
Статус будівництва, аерообльоти
Оновлення цін від відділу продажу
Нові типові проєкти
Щоденні оновлення в телеграм