Київ
Львів
Одеса
Вінниця
Дніпро
Житомир
Запоріжжя
Івано-Франківськ
Кропивницький
Луцьк
Миколаїв
Полтава
Рівне
Суми
Тернопіль
Ужгород
Харків
Херсон
Хмельницький
Черкаси
Чернівці
Чернігів
Так
Змінити місто
Головна
Новобудови
Продаж
Оренда
Мій ЛУН
Девелоперам: реклама на ЛУН
Рієлторам: розмістити оголошення
Власникам: розмістити оголошення через додаток ЛУН
Для ЗМІ
FAQ
Вакансії
Команда підтримки
Iнші проєкти
від
Безбарʼєрність та
комфорт міського
простору
Тренди та інсайти від
експертів нерухомості
Професійна рієлторська мережа
Застосунок оренди квартир на 3D-мапі
Нерухомість
Грузії
сообщество девелоперов
жилых комплексов
Ми в соцмережах
Завантажити в
Завантажити в
КМ Viola Village
КМ Viola Village
Про проєкт
Типові проєкти
Контакти
Новини
3 фотографії
КМ Viola Village — Viola-3
Ціна проєкту
від 3.15 млн грн
від 75 000 $
Будується:
3.15 млн грн
75 000 $
114.4 м²
Таунхаус
3 спальні
2 поверхи
Відділ продажу
КМ Viola Village
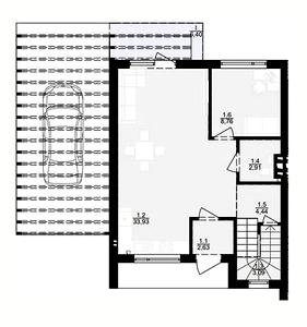
Планування
1 поверх
2 поверх
КМ Viola Village
Відділ продажу
Пн - Пт:
09:00 - 18:00
Сб - Нд:
вихідний
+38 066 ... Показати
Інші проєкти цього КМ
є збудовані
Viola-1
2.94 млн грн
70 000 $
3 спальні
114.4 м²
Дуплекс
2 поверхи
Viola-2
від 3.78 млн грн
від 90 000 $
3 спальні
134.4 м²
Котедж
2 поверхи
Viola-4
від 2.94 млн грн
від 70 000 $
3 спальні
126.2 м²
Таунхаус
2 поверхи
Viola-5
від 3.57 млн грн
від 85 000 $
3 спальні
114.6 м²
Котедж
2 поверхи
Найважливіші оновлення КМ Viola Village
Акції, знижки та спецпропозиції
Статус будівництва, аерообльоти
Оновлення цін від відділу продажу
Нові типові проєкти
Щоденні оновлення в телеграм