КМ SKOGUR — Тип 1а (черга 3)

110 м²
Котедж
1 спальня
2 поверхи
Відділ продажу
КМ SKOGUR
Працює за попереднім записом
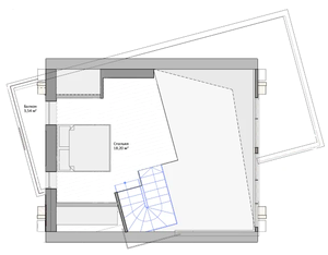
Планування
1 поверх
2 поверх
КМ SKOGUR
Відділ продажу
Пн - Нд: 09:00 - 18:00
Працює за попереднім записом
Інші проєкти цього КМ
є збудовані
Тип 3 (черга 2)
Тип 3 (черга 2)
13.87 млн грн
1 спальня
84 м²
Котедж
1 поверх
Тип 1
Тип 1
від 22.46 млн грн
2 спальні
121 м²
Котедж
1 поверх
Тип 2
Тип 2
від 25.55 млн грн
2 спальні
166 м²
Котедж
1 поверх
Тип 3
Тип 3
від 28.63 млн грн
2 спальні
164 м²
Котедж
2 поверхи
Найважливіші оновлення КМ SKOGUR
Акції, знижки та спецпропозиції
Статус будівництва, аерообльоти
Оновлення цін від відділу продажу
Нові типові проєкти