Київ
Львів
Одеса
Вінниця
Дніпро
Житомир
Запоріжжя
Івано-Франківськ
Кропивницький
Луцьк
Миколаїв
Полтава
Рівне
Суми
Тернопіль
Ужгород
Харків
Херсон
Хмельницький
Черкаси
Чернівці
Чернігів
Так
Змінити місто
Головна
Новобудови
Продаж
Оренда
Мій ЛУН
Девелоперам: реклама на ЛУН
Рієлторам: розмістити оголошення
Власникам: розмістити оголошення через додаток ЛУН
Для ЗМІ
FAQ
Вакансії
Команда підтримки
Ми в соцмережах
Завантажити в
Завантажити в
Iнші проєкти
від
дослідження
міського простору
рієлторам: розміщення
оголошень на ЛУН
iOS App оренди
квартир
квартири у світі
від забудовника
спільнота девелоперів
житлових проєктів
подобова оренда
КМ Millennium House
КМ Millennium House
Про проєкт
Типові проєкти
Новини
5 фотографій
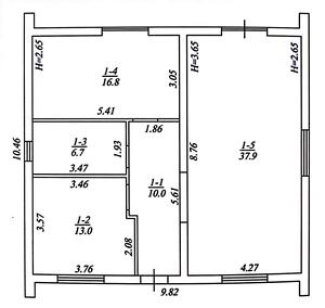
КМ Millennium House — Тип 1
84.4 м²
Котедж
2 спальні
1 поверх
Планування
1 поверх
КМ Millennium House
+38 098 ... Показати
Інші проєкти цього КМ
є збудовані
Тип 4 (вул. Липська, 23)
2.22 млн грн
53 000 $
2 спальні
75 м²
Дуплекс
1 поверх
є збудовані
Тип 5 (вул. Липська, 18)
3 млн грн
71 700 $
3 спальні
97 м²
Котедж
1 поверх
є збудовані
Тип 6 (вул. Липська, 16)
3.05 млн грн
72 900 $
3 спальні
95 м²
Котедж
1 поверх
Продано
Тип 2
3 спальні
95.2 м²
Котедж
1 поверх
Продано
Тип 3
3 спальні
97.2 м²
Котедж
1 поверх
Дивитись ще 1 проєкт
Найважливіші оновлення КМ Millennium House
Акції, знижки та спецпропозиції
Статус будівництва, аерообльоти
Оновлення цін від відділу продажу
Нові типові проєкти
Щоденні оновлення в телеграм