КМ Світлий Совіньон

КМ Світлий Совіньон — Тип 6

Ціна проєкту — 7.23 млн грн
Збудований:  від 7.23 млн грн
167.8 м²
Котедж
2 спальні
2 поверхи
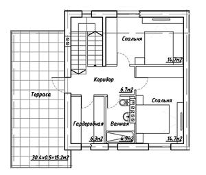
Планування
1 поверх, гараж
2 поверх
КМ Світлий Совіньон
Найважливіші оновлення КМ Світлий Совіньон
Акції, знижки та спецпропозиції
Статус будівництва, аерообльоти
Оновлення цін від відділу продажу
Нові типові проєкти