КМ Медовий — Тип 1

140 м²
Дуплекс
2 спальні
2 поверхи
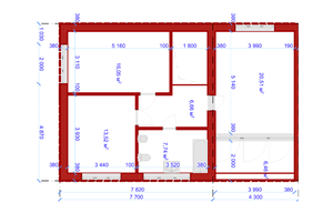
Планування
1 поверх, гараж
2 поверх
КМ Медовий
Інші проєкти цього КМ
є збудовані
Тип 1
Тип 1
4.08 млн грн
2 спальні
142 м²
Таунхаус
2 поверхи
є збудовані
Тип 2
Тип 2
3.82 млн грн
2 спальні
144 м²
Таунхаус
2 поверхи
Найважливіші оновлення КМ Медовий
Акції, знижки та спецпропозиції
Статус будівництва, аерообльоти
Оновлення цін від відділу продажу
Нові типові проєкти