Зараз 9:00 — хвилина мовчання
Будь ласка, зупинімось і вшануємо пам’ять усіх, хто загинув через війну росії проти України. Пам’ятаємо.

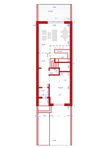
КМ Медовий — Тип 1

140 м²
Котедж
2 спальні
2 поверхи
Планування
1 поверх
2 поверх
КМ Медовий
Інші проєкти цього КМ
є збудовані
Тип 1
Тип 1
4.1 млн грн
2 спальні
142 м²
Таунхаус
2 поверхи
є збудовані
Тип 2
Тип 2
3.84 млн грн
2 спальні
144 м²
Таунхаус
2 поверхи
Найважливіші оновлення КМ Медовий
Акції, знижки та спецпропозиції
Статус будівництва, аерообльоти
Оновлення цін від відділу продажу
Нові типові проєкти