КМ Лісове-3 — Тип 1 (ділянка 2.5 сотки)

115 м²
Таунхаус
3 спальні
3 поверхи
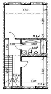
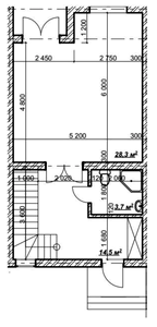
Планування
1 поверх
2 поверх
3 поверх
КМ Лісове-3
Інші проєкти цього КМ
є збудовані
Тип 1 (без підвалу)
Тип 1 (без підвалу)
4.44 млн грн
4 спальні
125 м²
Дуплекс
2 поверхи
є збудовані
Тип 1 (з підвалом)
Тип 1 (з підвалом)
5.11 млн грн
4 спальні
125 м²
Дуплекс
2 поверхи
є збудовані
Тип 2
Тип 2
3.69 млн грн
3 спальні
125 м²
Дуплекс
2 поверхи
є збудовані
Тип 1 (ділянка 1.7 сотки)
Тип 1 (ділянка 1.7 сотки)
3.55 млн грн
3 спальні
115 м²
Таунхаус
3 поверхи
є збудовані
Тип 2
Тип 2
3.2 млн грн
2 спальні
95 м²
Таунхаус
2 поверхи
Дивитись ще 1 проєкт
Найважливіші оновлення КМ Лісове-3
Акції, знижки та спецпропозиції
Статус будівництва, аерообльоти
Оновлення цін від відділу продажу
Нові типові проєкти