КМ Липові Роси — Тип Е

218.3 м²
Котедж
4 спальні
2 поверхи
Відділ продажу
КМ Липові Роси
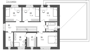
Планування
1 поверх, гараж
2 поверх
КМ Липові Роси
Відділ продажу
Пн - Пт: 10:00 - 18:00
Сб - Нд: вихідний
Інші проєкти цього КМ
є збудовані
Тип А
Тип А
6.37 млн грн
3 спальні
114.8 м²
Таунхаус
2 поверхи
є збудовані
Тип В
Тип В
6.27 млн грн
3 спальні
113 м²
Таунхаус
2 поверхи
є збудовані
Тип D
Тип D
6.13 млн грн
3 спальні
110.5 м²
Таунхаус
2 поверхи
Тип F+
Тип F+
від 13.32 млн грн
3 спальні
208.4 м²
Котедж
2 поверхи
Найважливіші оновлення КМ Липові Роси
Акції, знижки та спецпропозиції
Статус будівництва, аерообльоти
Оновлення цін від відділу продажу
Нові типові проєкти