Київ
Львів
Одеса
Вінниця
Дніпро
Житомир
Запоріжжя
Івано-Франківськ
Кропивницький
Луцьк
Миколаїв
Полтава
Рівне
Суми
Тернопіль
Ужгород
Харків
Херсон
Хмельницький
Черкаси
Чернівці
Чернігів
Так
Змінити місто
Головна
Новобудови
Продаж
Оренда
Мій ЛУН
Девелоперам: реклама на ЛУН
Рієлторам: розмістити оголошення
Власникам: розмістити оголошення через додаток ЛУН
Для ЗМІ
FAQ
Вакансії
Команда підтримки
Ми в соцмережах
Завантажити в
Завантажити в
Iнші проєкти
від
дослідження
міського простору
рієлторам: розміщення
оголошень на ЛУН
iOS App оренди
квартир
квартири у світі
від забудовника
спільнота девелоперів
житлових проєктів
подобова оренда
Клубний будинок Березинський
Клубний будинок Березинський
Про проєкт
Планування
Моніторинг будівництва
Документи
Аерообліт 360
Новини
1-кімнатні квартири
Продано
1 кімната
34 м²
Поверхи: 3
1 кв. 2022
Збудовано
Продано
1 кімната
40.8 м²
Поверхи: 2
1 кв. 2022
Збудовано
Продано
1 кімната
40.8 м²
Поверхи: 4
1 кв. 2022
Збудовано
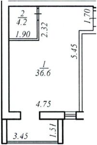
Продано
1 кімната
48.6 м²
Поверхи: 1
1 кв. 2022
Збудовано
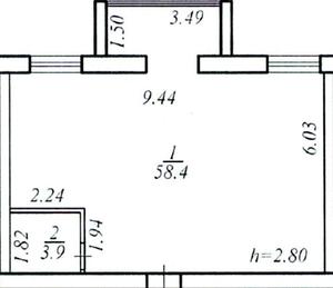
Продано
1 кімната
48.7 м²
Поверхи: 4
1 кв. 2022
Збудовано
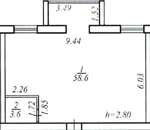
Продано
1 кімната
48.9 м²
Поверхи: 3
1 кв. 2022
Збудовано
2-кімнатні квартири
Продано
2 кімнати
62.3 м²
Поверхи: 4
1 кв. 2022
Збудовано
Продано
2 кімнати
62.6 м²
Поверхи: 5
1 кв. 2022
Збудовано
Житлові комплекси Дніпра
Нерухомість Індустріального району
Житло комфорт-класу
Квартири від забудовника Grand Family Estate
Клубний будинок Березинський
Планування
Планування