Київ
Львів
Одеса
Вінниця
Дніпро
Житомир
Запоріжжя
Івано-Франківськ
Кропивницький
Луцьк
Миколаїв
Полтава
Рівне
Суми
Тернопіль
Ужгород
Харків
Херсон
Хмельницький
Черкаси
Чернівці
Чернігів
Так
Змінити місто
Головна
Новобудови
Продаж
Оренда
Мій ЛУН
Девелоперам: реклама на ЛУН
Рієлторам: розмістити оголошення
Власникам: розмістити оголошення через додаток ЛУН
Для ЗМІ
FAQ
Вакансії
Команда підтримки
Ми в соцмережах
Завантажити в
Завантажити в
Iнші проєкти
від
дослідження
міського простору
рієлторам: розміщення
оголошень на ЛУН
iOS App оренди
квартир
квартири у світі
від забудовника
спільнота девелоперів
житлових проєктів
подобова оренда
Клубний будинок на Короленка
Клубний будинок на Короленка
Про проєкт
Планування
Моніторинг будівництва
Документи
Аерообліт 360
Контакти
Новини
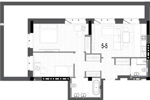
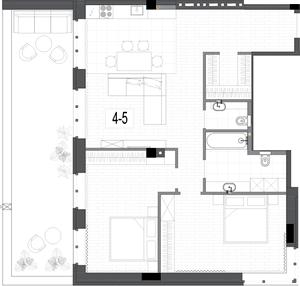
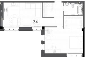
2-кімнатні квартири
2 кімнати
91.6 м²
Поверхи: 3-5
2 кв. 2024
Збудовано
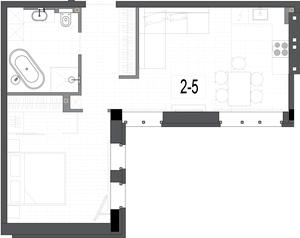
2 кімнати
98.3 м²
Поверхи: 2
2 кв. 2024
Збудовано
Житлові комплекси Дніпра
Квартира в новобудові Шевченківського району
Житло Дніпра бізнес-класу
Клубний будинок на Короленка
Планування
Найважливіші оновлення Клубний будинок на Короленка
Акції, знижки та спецпропозиції
Нові фотографії з будівництва, аерообльоти
Оновлення цін від відділу продажу
Оновлення документів в реєстрах
Щоденні оновлення в телеграм
Планування